Найти в Дзене

Дом «Шервуд»: каркасный дом для семьи в европейском стиле

«Шервуд» — новый проект от «Мастера», разработанный с фокусом на комфорт, функциональность и выразительную архитектуру. Он создавался как универсальное решение для семьи, которая планирует жить за городом постоянно и хочет получить красивый и практичный дом с выверенными решениями для повседневной жизни. Внешний облик «Шервуда» построен на современных архитектурных приемах. Четкие линии, лаконичные формы и выверенные пропорции делают дом визуально легким и аккуратным. Большие оконные проемы наполняют помещения естественным светом и усиливают связь с участком. Дом выполнен в современном европейском стиле с акцентом на теплую, жилую архитектуру. В основе образа — классическая форма дома с двускатной крышей, переосмысленная через современные пропорции и материалы. Такое решение делает дом гармоничным, но при этом актуальным и выразительным. Фасады оформлены в спокойной природной гамме, которая хорошо сочетается с окружающим ландшафтом и не теряет актуальности со временем. Теплые оттенки и
Оглавление

«Шервуд» — новый проект от «Мастера», разработанный с фокусом на комфорт, функциональность и выразительную архитектуру. Он создавался как универсальное решение для семьи, которая планирует жить за городом постоянно и хочет получить красивый и практичный дом с выверенными решениями для повседневной жизни.

Каркасный дом Шервуд 8х11м от компании «Мастер»
Каркасный дом Шервуд 8х11м от компании «Мастер»

Современная классика для загородной жизни

Внешний облик «Шервуда» построен на современных архитектурных приемах. Четкие линии, лаконичные формы и выверенные пропорции делают дом визуально легким и аккуратным. Большие оконные проемы наполняют помещения естественным светом и усиливают связь с участком.

Дом выполнен в современном европейском стиле с акцентом на теплую, жилую архитектуру. В основе образа — классическая форма дома с двускатной крышей, переосмысленная через современные пропорции и материалы. Такое решение делает дом гармоничным, но при этом актуальным и выразительным.

Фасады оформлены в спокойной природной гамме, которая хорошо сочетается с окружающим ландшафтом и не теряет актуальности со временем. Теплые оттенки и фактура отделки создают ощущение основательности и уюта, а деревянные элементы ограждений и террас подчеркивают загородный характер дома и добавляют архитектуре «живости».

Особое внимание в проекте уделено деталям, которые повышают качество жизни. Просторная терраса становится продолжением дома в теплое время года — здесь удобно отдыхать, собираться с семьей и принимать гостей. Крытое заднее крыльцо защищает входную зону от осадков и ветра и делает использование дома комфортным в любое время года.

Продуманная планировка для семьи

Планировка дома четко разделена на общественную и приватную зоны, что особенно важно для семейного проживания.

На первом этаже расположена просторная общественная зона — кухня-гостиная, объединяющая семью в повседневной жизни. Здесь же предусмотрена гостевая комната, которую при необходимости можно использовать как кабинет или спальню для старших членов семьи. Такое решение удобно и гибко — дом легко адаптируется под разные сценарии жизни.

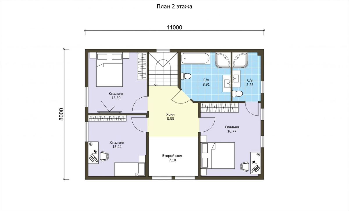
Второй этаж отведен под личное пространство. Здесь размещены три полноценные спальни и два санузла. Такое зонирование позволяет избежать утренних очередей и обеспечивает комфорт каждому члену семьи. Спальни изолированы и подходят как для взрослых, так и для детей, а наличие двух санузлов делает повседневную жизнь заметно удобнее.

Одно из ключевых решений проекта — второй свет в общественной зоне. Он визуально расширяет пространство, делает интерьер более объемным и наполненным воздухом. Высокие потолки и дополнительный свет создают ощущение настоящего загородного дома, в котором хочется проводить время.

Надежная конструкция и контроль качества

Как и во всех наших каркасных домах, каркас «Шервуда» выполнен из сухой строганой доски камерной сушки. Этот материал обеспечивает стабильную геометрию конструкции, снижает риск усадки и повышает долговечность дома.

Для утепления используются экологичные минераловатные утеплители, обеспечивающие энергоэффективность класса А и A+. Все элементы защищены паро‑ и ветрозащитными пленками, стыки проклеиваются скотчем Ondutis Fix Tape, что исключает теплопотери и повышает долговечность конструкций.

Домокомплект производится в собственном цеху компании «Мастер», что позволяет контролировать качество на каждом этапе и точно соблюдать проектные решения.

Возможность адаптации под ваши задачи

Проект «Шервуд» рассчитан на разные форматы проживания — от сезонного использования до постоянного с повышенными требованиями к комфорту и энергоэффективности. Доступны все наши комплектации, каждая из которых продумана с точки зрения конструкции, утепления и отделки.

«Комфорт»
Оптимальный вариант для дачного проживания и сезонного использования. Дом устанавливается на фундаменте на винтовых сваях, стены утепляются на 150 мм. В качестве наружной отделки используется вагонка — практичное и проверенное решение для каркасных домов.

«ПМЖ»
Решение для круглогодичного проживания. Свайный фундамент, стены толщиной 250 мм с перекрестным утеплением обеспечивают стабильный микроклимат в доме. Наружная отделка выполняется из имитации бруса, что придает фасаду более выразительный и «жилой» вид.

Комплектация «Премиум»
Повышенный уровень комфорта и готовности дома к эксплуатации. Стены толщиной 250 мм с утеплением Knauf 200 мм, внутренняя отделка вагонкой. Фасад — на выбор: сайдинг Docke или фасадная плитка Hauberk, которая предоставляется в подарок.

Жилой дом по СНиП
Максимально надежное и энергоэффективное исполнение для постоянного проживания. Дом устанавливается на железобетонных сваях длиной 3 метра, ниже глубины промерзания. Стены толщиной 300 мм с перекрестным утеплением, внутренняя отделка — имитация бруса, наружная — фасадная плитка Hauberk. В комплектацию также входят двухкамерные ПВХ-окна и двери с терморазрывом — в подарок.

Любое базовое исполнение дома «Шервуд» может быть доработано под ваши требования. Планировочные решения, инженерные системы и отдельные элементы дома обсуждаются индивидуально.

Такой подход позволяет учесть образ жизни семьи, состав, сценарии использования дома и получить результат, который действительно подходит для комфортной жизни, а не типовой проект без учета деталей.

Оптимальный дом для жизни за городом

«Шервуд» — это:

  • удобная планировка для семьи;
  • светлые, просторные помещения;
  • современные архитектурные решения;
  • терраса и защищенные входные зоны;
  • надежная каркасная технология.

И самое главное, каркасный дом «Шервуд» может быть приобретен с использованием семейной ипотеки, что делает его еще более доступным решением для молодых и растущих семей.

Хотите узнать больше о нашей новинке? Переходите на сайт. Здесь вы найдете «Шервуд» и еще 300+ готовых проектов комфортных и теплых каркасных домов под любые требования. Мы строим их для вас — с заботой и любовью!