Добавить в корзинуПозвонить
Найти в Дзене

Технический план: структура, требования и как избежать критических ошибок 📄⚖️

Технический план — это ключевой документ при постановке объекта недвижимости на кадастровый учёт. От его точности и соответствия требованиям напрямую зависит успех регистрации в Росреестре. Ошибки могут привести к приостановкам, отказам и финансовым потерям. В этой статье мы подробно разберём структуру технического плана, актуальные требования законодательства и дадим практические рекомендации, как избежать распространённых ошибок. Технический план — это документ, который содержит информацию об объекте недвижимости, необходимую для внесения сведений в Единый государственный реестр недвижимости (ЕГРН). Он составляется на основе данных кадастрового учёта и результатов геодезических измерений. Основные цели технического плана: Без правильно оформленного технического плана невозможно юридически закрепить права на объект или провести с ним любые сделки. Структура строго регламентирована законодательством. Документ состоит из текстовой и графической частей. Требования к техническому плану по
Оглавление
Технический план — это ключевой документ при постановке объекта недвижимости на кадастровый учёт. От его точности и соответствия требованиям напрямую зависит успех регистрации в Росреестре. Ошибки могут привести к приостановкам, отказам и финансовым потерям. В этой статье мы подробно разберём структуру технического плана, актуальные требования законодательства и дадим практические рекомендации, как избежать распространённых ошибок.

📐 Что такое технический план и зачем он нужен?

Технический план — это документ, который содержит информацию об объекте недвижимости, необходимую для внесения сведений в Единый государственный реестр недвижимости (ЕГРН). Он составляется на основе данных кадастрового учёта и результатов геодезических измерений.

Основные цели технического плана:

  • Постановка на учёт вновь созданного объекта (дома, квартиры после перепланировки).
  • Внесение изменений в характеристики уже учтённого объекта (например, после реконструкции).
  • Исправление реестровых ошибок.
  • Формирование части объекта (например, для выдела доли).

Без правильно оформленного технического плана невозможно юридически закрепить права на объект или провести с ним любые сделки.

🏗️ Структура технического плана: из чего состоит документ?

Структура строго регламентирована законодательством. Документ состоит из текстовой и графической частей.

📝 Текстовая часть: ключевые разделы

  1. Титульный лист. Содержит основные сведения: вид объекта, кадастровый номер (если есть), адрес, сведения о заказчике и исполнителе (кадастровом инженере).
  2. Исходные данные. Указываются документы, на основании которых составлен план: правоустанавливающие документы на землю, разрешение на строительство, проектная документация, акт ввода в эксплуатацию.
  3. Сведения о выполненных измерениях и расчётах. Описываются методы и средства геодезических работ, подтверждающие точность определения координат объекта.
  4. Описание местоположения объекта. Привязка к земельному участку и характерным точкам границ.
  5. Характеристики объекта. Основные параметры: площадь, этажность, высота, материал стен, год ввода в эксплуатацию и т.д.
  6. Заключение кадастрового инженера. Вывод о соответствии объекта установленным требованиям.

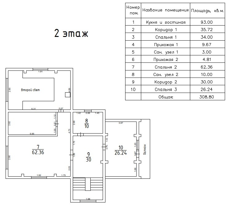
🗺️ Графическая часть: визуальное отображение

  1. Схема расположения объекта на земельном участке.
  2. Поэтажные планы с указанием площадей помещений.
  3. Контур объекта в виде замкнутой ломаной линии, определённой по координатам характерных точек.
Пример графической части технического плана с поэтажным планом и схемой
Пример графической части технического плана с поэтажным планом и схемой

⚠️ Требования законодательства и типичные ошибки

Требования к техническому плану постоянно обновляются. Важно следить за актуальными приказами Минэкономразвития. Основные нормативные акты: Федеральный закон № 218-ФЗ "О государственной регистрации недвижимости" и Приказ Минэкономразвития № 953.

Распространённые ошибки, ведущие к отказу:

  1. Несоответствие исходных данных. Предоставление неполного пакета документов или документов с ошибками (например, неактуальная выписка из ЕГРН).
  2. Неточности в геодезических измерениях. Использование несертифицированного оборудования, нарушения методики измерений. Это приводит к расхождениям координат.
  3. Ошибки в графической части. Несоответствие контура объекта фактическим границам, наложение на контуры соседних объектов или красные линии.
  4. Неверное определение площади. Арифметические ошибки, включение в площадь неучтённых помещений (лоджий, балконов без коэффициентов).
  5. Нарушение порядка согласования. Для некоторых объектов (например, квартир в МКД) требуется согласование с управляющей компанией.

Подробнее о правовых нюансах и требованиях можно прочитать в статье Структура и требования к техническому плану: как избежать ошибок.

🛡️ Как гарантированно избежать проблем? Критерии выбора исполнителя

Доверять составление технического плана стоит только профессионалам. Вот на что стоит обратить внимание:

  • Действующий аттестат кадастрового инженера. Проверить его можно в реестре на сайте Росреестра.
  • Опыт работы с объектами аналогичного типа.
  • Наличие профессионального оборудования (электронные тахеометры, GPS-приёмники) и страховки ответственности.
  • Прозрачность процесса и договорных условий.

Почему клиенты выбирают нас для кадастровых работ? 💎

Наша команда в TOP-GEO обеспечивает безупречное качество и юридическую чистоту документов. Мы не просто составляем бумаги — мы гарантируем успешный результат в Росреестре.

Наши ключевые преимущества:

  1. Высококвалифицированные специалисты в штате. Каждый кадастровый инженер обладает обширным опытом и регулярно повышает квалификацию.
  2. Высокоточное новое оборудование. Используем современные геодезические комплексы для безупречной точности измерений.
  3. Опытные геодезисты, которые проходят регулярное обучение. Следим за всеми изменениями в законодательстве и методиках.
  4. Работаем без выходных с оперативным выездом. Выезд специалиста в удобное для вас время, даже в выходные дни.
  5. Электронный документооборот для юридических лиц (ЭДО). Ускоряем процесс согласования и подписания документов.
  6. Прямая подача документов в ЕГРН. Наши кадастровые инженеры имеют право на электронную подачу, что ускоряет процесс, минимизирует ошибки и позволяет оперативно отслеживать статус и реагировать на замечания от госорганов.

Ваш следующий шаг к юридической чистоте объекта

Технический план — это не формальность, а основа ваших имущественных прав. Экономия на его подготовке или выбор непрофессионала часто оборачивается многомесячными задержками, судебными разбирательствами и дополнительными расходами. Правильный подход — это инвестиция в спокойствие и юридическую безопасность.

Доверьте задачу специалистам, которые знают все подводные камни и обеспечат положительный результат с первого раза. Свяжитесь с нами для консультации и расчёта стоимости работ.

Контакты для связи:

  • Телефон: +7 930 959-39-56
  • Telegram / WhatsApp: +7 985 762-25-03
  • Сайт: Top-Geo.ru