Добавить в корзинуПозвонить
Найти в Дзене

Проект бани ручной рубки из кедра Альпийская

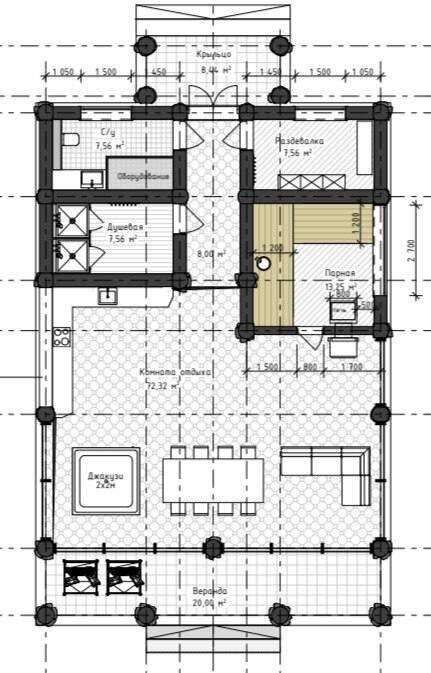
Ключевая особенность проекта — гибкая адаптация планировки. Наш отдел проектирования разрабатывает решения под потребности конкретной семьи, с учётом образа жизни, состава семьи и особенностей участка. Просторная, тёплая и функциональная баня с акцентом на комфорт и архитектурную выразительность. В конструкции использованы бревна трёх диаметров, что позволяет грамотно распределить нагрузку и подчеркнуть эстетику сруба. Планировка включает всё необходимое для отдыха: — кухню с лаунж-зоной, — санузел, — комнату отдыха, — две спальни — для хозяев и гостей. Со стороны входной группы бревна украшены резьбой в виде розочек — выразительный декоративный акцент. В парной предусмотрено панорамное окно. Характеристики проекта: ✔️ Кедр, 1 этаж ✔️ Бревно трёх диаметров: 38–50 см ✔️ Общая площадь здания — 168,4 м2 ✔️ Площадь помещений — 116,23 м2 ✔️ Террасы и крыльца — 28,44 м2 Приглашаем вас стать обладателем этого маленького оазиса комфорта и здоровья. Перейти на наш сайт

Ключевая особенность проекта — гибкая адаптация планировки.

Наш отдел проектирования разрабатывает решения под потребности конкретной семьи, с учётом образа жизни, состава семьи и особенностей участка.

Просторная, тёплая и функциональная баня с акцентом на комфорт и архитектурную выразительность.

В конструкции использованы бревна трёх диаметров, что позволяет грамотно распределить нагрузку и подчеркнуть эстетику сруба.

Планировка включает всё необходимое для отдыха: — кухню с лаунж-зоной, — санузел, — комнату отдыха, — две спальни — для хозяев и гостей.

Со стороны входной группы бревна украшены резьбой в виде розочек — выразительный декоративный акцент.

В парной предусмотрено панорамное окно.

Характеристики проекта:

✔️ Кедр, 1 этаж

✔️ Бревно трёх диаметров: 38–50 см

✔️ Общая площадь здания — 168,4 м2

✔️ Площадь помещений — 116,23 м2

✔️ Террасы и крыльца — 28,44 м2

-2
-3
-4

Приглашаем вас стать обладателем этого маленького оазиса комфорта и здоровья.

Перейти на наш сайт