Найти в Дзене
Мастерская дизайнера

Как выбрать светильники для кухни-гостиной и коридоров в частном доме с высоким скошенным потолком. Визуализация в Nano Banana Pro.

В этой заметке я представляю план с расположением светильников для зон кухни, гостиной, прихожей и коридоров в частном доме. Работа ведется в рамках разработки комплексного дизайн-проекта. Я создаю чертежи для этого проекта в программе Remplanner. Она помогает составить детальный и точный план, добавить аннотации с количеством и характеристиками светильников прямо на схеме, а также разместить изображения светильников на листе. Рекомендую загрузить документ в формате PDF. В нем вы сможете подробно изучить все детали. Также в документе есть ссылки на выбранные модели светильников. Опишу основной принцип освещения. При высоких, в среднем от 4 до 5 метров, и скошенных потолках я использую трековую подвесную систему. Ее главная особенность — возможность двустороннего освещения. Светодиодные светильники, встроенные в верхнюю часть трека, направляют свет на потолок. Ниже представлены фото светильников для проекта, взятые с сайта Maytoni. Подвесные светильники в форме стеклянных шаров визуальн
Обложка статьи выполнена в Pixlr
Обложка статьи выполнена в Pixlr

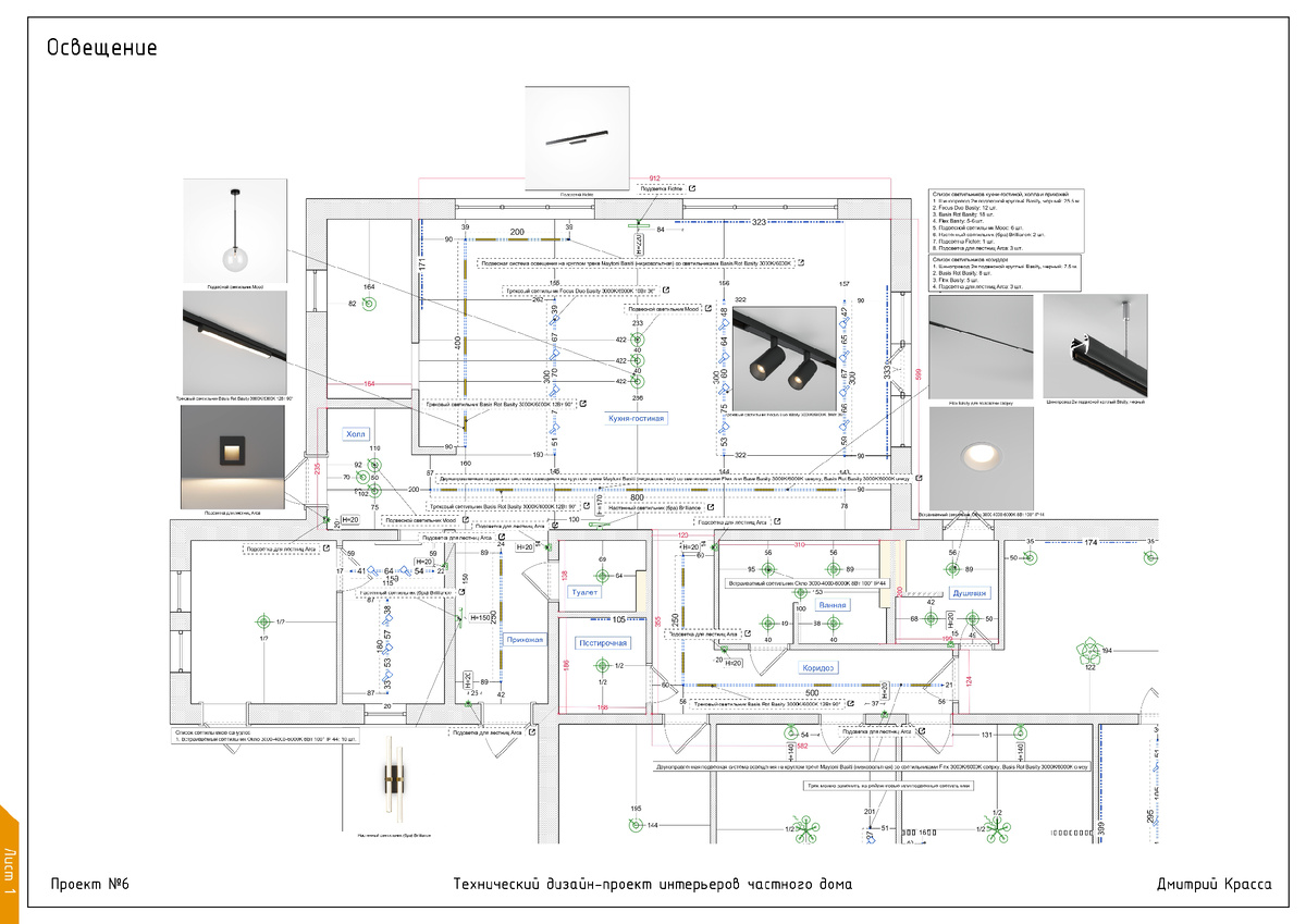
В этой заметке я представляю план с расположением светильников для зон кухни, гостиной, прихожей и коридоров в частном доме. Работа ведется в рамках разработки комплексного дизайн-проекта.

Я создаю чертежи для этого проекта в программе Remplanner. Она помогает составить детальный и точный план, добавить аннотации с количеством и характеристиками светильников прямо на схеме, а также разместить изображения светильников на листе.

Схема освещения общественной части частного дома в Remplanner
Схема освещения общественной части частного дома в Remplanner

Рекомендую загрузить документ в формате PDF. В нем вы сможете подробно изучить все детали. Также в документе есть ссылки на выбранные модели светильников.

Опишу основной принцип освещения. При высоких, в среднем от 4 до 5 метров, и скошенных потолках я использую трековую подвесную систему. Ее главная особенность — возможность двустороннего освещения. Светодиодные светильники, встроенные в верхнюю часть трека, направляют свет на потолок.

Ниже представлены фото светильников для проекта, взятые с сайта Maytoni.

Подвесные светильники в форме стеклянных шаров визуально расширяют пространство, придавая интерьеру легкость и воздушность. Настенные бра добавляют второй уровень освещения, а подсветки у пола помогают ориентироваться ночью, когда основное освещение выключено.

Чтобы лучше представить, как будет выглядеть кухня-гостиная, я доработал модель в SketchUp с учетом пожеланий заказчиков. Для ускорения процесса визуализации я использовал нейросеть Nano Banana Pro и эскизы из SketchUp.

Визуализация в Nano Banana Pro
Визуализация в Nano Banana Pro

Моему заказчику в прошлый раз особенно понравилась эта визуализация, которую я сделал в Планоплане:

Визуализация кухни-гостиной в Планоплане
Визуализация кухни-гостиной в Планоплане

Я тоже сделал ее микс с новыми версиями при помощи Nano Banana:

Визуализация в Nano Banana Pro
Визуализация в Nano Banana Pro

Я использую материалы, которые публикую здесь, для расчета освещения и составления коммерческих предложений от поставщиков. Чертежи, спецификации и визуализации помогают создать полную картину для этих расчетов.

p.s.

Услуги по дизайну интерьеров:

Дмитрий Красса - отзывы, фото проектов, сайт, Архитекторы, Гардеробные и кладовые комнаты, Декораторы и стилисты интерьера, Детские и пеленальные, Дизайнеры интерьера, Корпусная мебель, Лестницы и перила, Освещение, Проектирование и строительство, Производство и установка кухонь, Ремонт и отделка квартир и домов, Специалисты по ремонту кухни, Москва

Уроки по Планоплану и Remplanner:

Дмитрий Красса, дизайнер интерьера и преподаватель