Добавить в корзинуПозвонить
Найти в Дзене

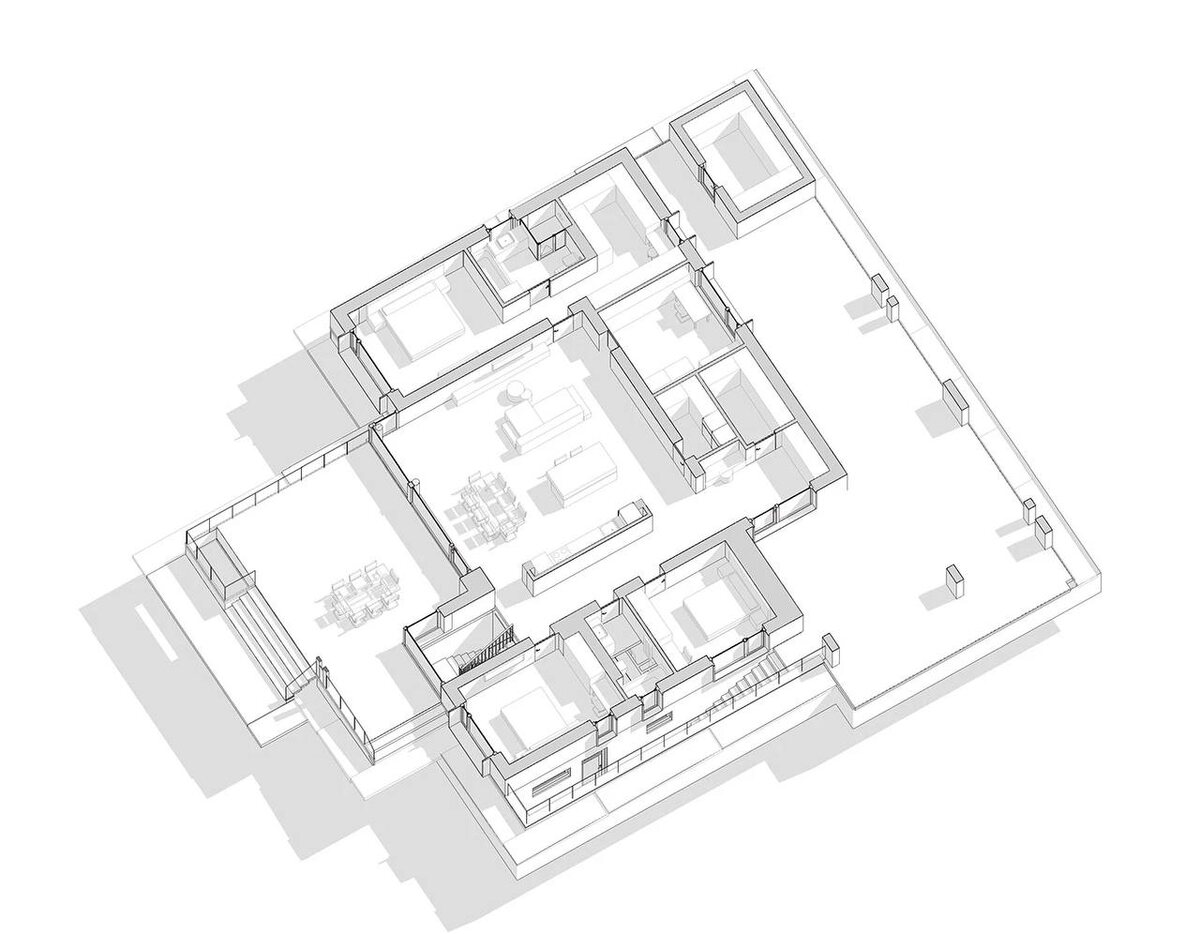
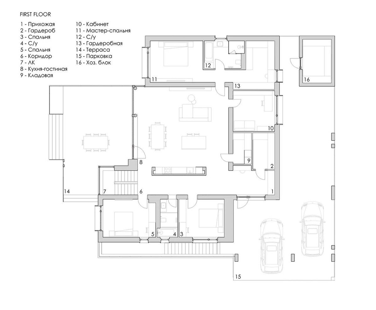
Проект SHADE изнутри

Внутри акцент сделан на просторную гостиную с выходом на террасу. Планировка объединяет функциональность и эстетику. Приватные спальни изолированы от шумных зон, а продуманная система освещения и панорамные окна делают интерьер светлым и живым в любое время дня. Проект: #shade_archdepo

Проект SHADE изнутри

Внутри акцент сделан на просторную гостиную с выходом на террасу. Планировка объединяет функциональность и эстетику.

Приватные спальни изолированы от шумных зон, а продуманная система освещения и панорамные окна делают интерьер светлым и живым в любое время дня.

Проект: #shade_archdepo

-2
-3