Найти в Дзене

ЛУЧШИЕ ПЛАНИРОВКИ РОЖДАЮТСЯ В НЕУДОБНЫХ ПРОСТРАНСТВАХ

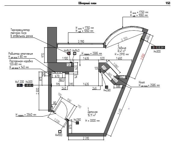
Сейчас работаю над планировочным решением в комнате необычной формы.

ЛУЧШИЕ ПЛАНИРОВКИ РОЖДАЮТСЯ В НЕУДОБНЫХ ПРОСТРАНСТВАХ

Сейчас работаю над планировочным решением в комнате необычной формы.

-2
-3