Найти в Дзене
Futuris Architects

Интерьер как единое пространство: Проект «Монохромный пепел» от Futuris Architects

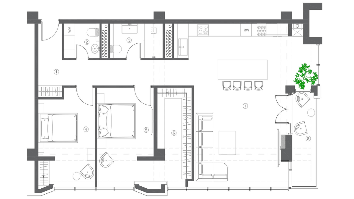
Проект «Монохромный пепел» посвящен современной жизни, основанной на балансе и тепле. Созданный для повседневной жизни, проект превращает недавно построенную квартиру в Ереване в тихий и гармоничный дом, где минимализм ощущается мягким и гостеприимным, а не строгим и грубым. Интерьер построен на сдержанности. Формы просты, линии чистые, и каждый материал выбран за свою текстуру и оттенок. Вместо контраста пространство опирается на свет, пропорции и детали для создания глубины. Квартира представляет собой единое, непрерывное пространство. Встроенные системы хранения, гладкие поверхности и скрытые детали позволяют интерьеру оставаться визуально чистым. Ничто не отвлекает внимание. Архитектура и атмосфера выходят на первый план. Вдохновленный эстетикой минимализма, дизайн в основном выполнен в серой цветовой гамме. Чтобы избежать монотонности, в оформлении использованы декоративные краски для стен, текстуры бетона и камня, а также рельефные поверхности. Теплое освещение и мягкие потолки

Проект «Монохромный пепел» посвящен современной жизни, основанной на балансе и тепле. Созданный для повседневной жизни, проект превращает недавно построенную квартиру в Ереване в тихий и гармоничный дом, где минимализм ощущается мягким и гостеприимным, а не строгим и грубым.

Интерьер построен на сдержанности. Формы просты, линии чистые, и каждый материал выбран за свою текстуру и оттенок. Вместо контраста пространство опирается на свет, пропорции и детали для создания глубины. Квартира представляет собой единое, непрерывное пространство. Встроенные системы хранения, гладкие поверхности и скрытые детали позволяют интерьеру оставаться визуально чистым. Ничто не отвлекает внимание. Архитектура и атмосфера выходят на первый план.

-2

Вдохновленный эстетикой минимализма, дизайн в основном выполнен в серой цветовой гамме. Чтобы избежать монотонности, в оформлении использованы декоративные краски для стен, текстуры бетона и камня, а также рельефные поверхности. Теплое освещение и мягкие потолки создают атмосферу уюта.

-3
-4
-5
-6
-7
-8

На кухне темные матовые шкафы полностью интегрированы в стены, создавая спокойную и гармонизированную атмосферу. Теплая деревянная ниша добавляет контраста и глубины. Остров расположен в центре композиции, выполняя функции как рабочей зоны, так и места для общения. Мягкое освещение и минималистичные детали подчеркивают чистый, сдержанный вид пространства.

-9
-10
-11

Спальня задумана как место для отдыха и расслабления. Мягкие тона, простые формы и приятные на ощупь материалы создают спокойную и умиротворяющую обстановку. Встроенные системы хранения позволяют сохранить пространство свободным от лишних вещей и безмятежным.

-12
-13
-14
-15
-16

Ванная комната продолжает ту же дизайнерскую концепцию. Каменная текстура, теплый свет и чистые линии создают спокойную, почти спа-подобную атмосферу. Темная сантехника добавляет выразительности, а встроенные шкафы позволяют поддерживать порядок и простоту в пространстве.

-17
-18
-19

«Монохромный пепел» отражает подход Futuris Architects к современным интерьерам: сдержанный, точный и созданный с учетом реальной жизни. Пространство, где простота позволяет комфорту проявиться естественным образом.

Перейдите по ссылке на наш канал YouTube, чтобы посмотреть видео о проекте. 
https://youtu.be/kGF6OzXuBkg?si=XlmEMS2sMqGXrfcZ

-20