Найти в Дзене
КП Миронцево

Большая семья всегда про несколько сценариев жизни одновременно

  Работа, учёба, отдых, гости, личное пространство – всё в одном доме. Он должен выдерживать разный ритм, возраст, привычки и желание иногда побыть одному. Юнит 335 в Миронцево как раз про это 🏡 Самый просторный дом в посёлке, рассчитанный на семью до 7 человек, без ощущения тесноты и компромиссов. ▫️На первом этаже: просторная кухня-столовая с панорамными окнами, гостиная с выходом на террасу, мастер-спальня с гардеробной, кабинет, прачечная и санузел. Здесь удобно собираться вместе, принимать гостей и жить активной дневной жизнью. ▫️Второй этаж про личное пространство: ещё три спальни с гардеробными зонами, ванная, отдельный санузел и кладовая. У каждого есть своё место и это очень чувствуется в повседневной жизни. ▫️Плюс гибкость. Вместо спальни на первом этаже можно сделать гараж, а кабинет легко превратить в сауну или зону отдыха. Дом адаптируется под семью, не наоборот. Планировку юнита 335 мы показали в карточках, листайте карусель, чтобы рассмотреть всё подробнее ☝️ Важ

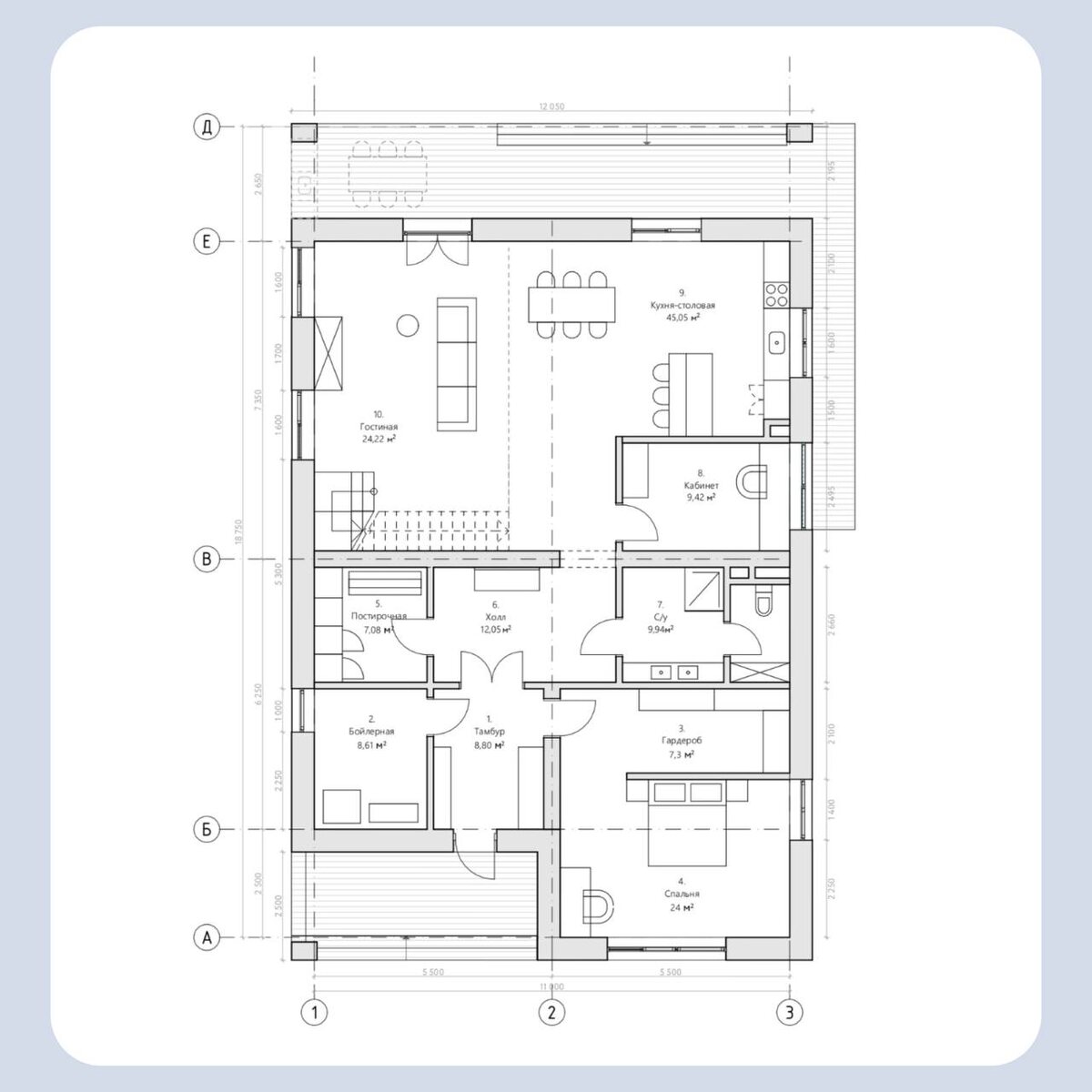
Большая семья всегда про несколько сценариев жизни одновременно. 

Работа, учёба, отдых, гости, личное пространство – всё в одном доме. Он должен выдерживать разный ритм, возраст, привычки и желание иногда побыть одному.

Юнит 335 в Миронцево как раз про это 🏡

Самый просторный дом в посёлке, рассчитанный на семью до 7 человек, без ощущения тесноты и компромиссов.

▫️На первом этаже:

просторная кухня-столовая с панорамными окнами, гостиная с выходом на террасу, мастер-спальня с гардеробной, кабинет, прачечная и санузел. Здесь удобно собираться вместе, принимать гостей и жить активной дневной жизнью.

▫️Второй этаж про личное пространство:

ещё три спальни с гардеробными зонами, ванная, отдельный санузел и кладовая. У каждого есть своё место и это очень чувствуется в повседневной жизни.

▫️Плюс гибкость.

Вместо спальни на первом этаже можно сделать гараж, а кабинет легко превратить в сауну или зону отдыха. Дом адаптируется под семью, не наоборот.

Планировку юнита 335 мы показали в карточках, листайте карусель, чтобы рассмотреть всё подробнее ☝️

Важно напомнить: до конца месяца на готовые дома действует акция −25%. Если вы присматривались к большому дому для семьи и ждали подходящий момент – он сейчас.

Цена юнита зависит от внешней отделки, размера и расположения участка. 

Мы всегда на связи: поможем сориентировать по цене, обсудить планировки и записать на просмотр дома 🤍 +74958186470

-2
-3
-4
-5