Найти в Дзене
Войти
План Нехорошковой
9 подписчиков
Подписаться
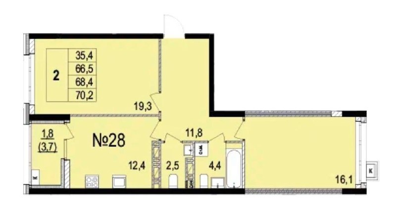
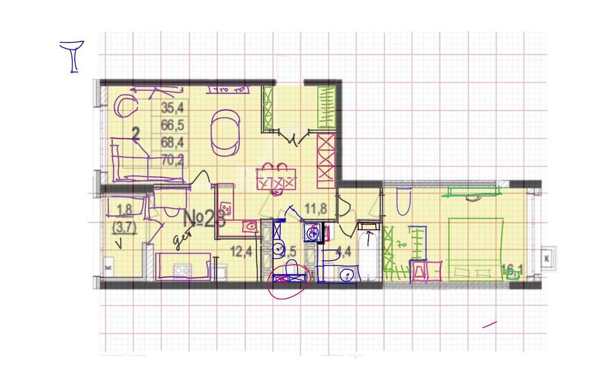
До/после
14 января
14 янв
~1 мин
Консультацию провела.
Консультацию провела.
...
Читать далее
До/после
Консультацию провела.