Добавить в корзинуПозвонить
Найти в Дзене

Что такое дизайн-проект интерьера

В последнее время мало кого удивишь словами "дизайн-проект". Интерьеры создаются не только в новостройках, но и во вторичном жилом фонде, что объясняется появлением новых строительных и отделочных материалов, новых требований к комфорту жилого помещения. И всё чаще ремонт перестают делать самостоятельно - проще и выгодней заказать проект у дизайнера интерьеров и реализовать его силами квалифицированной ремонтной бригады. Дизайн-проект интерьера - это масштабная работа. Дизайнер не просто рисует картинку на бумаге - он просчитывает каждый сантиметр пространства и делает его максимально функциональным. Дизайн-проект - это не просто красивый интерьер. Вся его суть - внутри. Работая над проектом вашего интерьера дизайнер делает планировку и визуализацию интерьера, создаёт функциональное и эстетичное пространство. В "красивой" части дизайн-проекта - общая концепция, цветовая гамма и стиль интерьера. А внутри красивой картинки - планировочное решение и сложный технический проект - то есть
Оглавление

В последнее время мало кого удивишь словами "дизайн-проект". Интерьеры создаются не только в новостройках, но и во вторичном жилом фонде, что объясняется появлением новых строительных и отделочных материалов, новых требований к комфорту жилого помещения.

И всё чаще ремонт перестают делать самостоятельно - проще и выгодней заказать проект у дизайнера интерьеров и реализовать его силами квалифицированной ремонтной бригады.

А что входит в дизайн-проект интерьера?

Дизайн-проект интерьера - это масштабная работа. Дизайнер не просто рисует картинку на бумаге - он просчитывает каждый сантиметр пространства и делает его максимально функциональным.

Дизайн-проект - это не просто красивый интерьер. Вся его суть - внутри.

Работая над проектом вашего интерьера дизайнер делает планировку и визуализацию интерьера, создаёт функциональное и эстетичное пространство.

В "красивой" части дизайн-проекта - общая концепция, цветовая гамма и стиль интерьера.

А внутри красивой картинки - планировочное решение и сложный технический проект - то есть то, что сделает ваш дом продуманным, функциональным, удобным и безопасным.

На этих этапах проводится детальная проработка всех инженерных, конструктивных и функциональных аспектов интерьера, создается удобная организация помещений с учетом потребностей жильцов и особенностей интерьера.

-2

Поиск и координацию всех участников ремонта мы берем на себя. Производим подбор и закупку материалов, мебели и декора, сэкономив ваше время и гарантируя идеальный результат.

Это трудоемкий процесс, так как появляется множество нюансов и согласований с заказчиками.

-3

При реализации дизайн-проекта мы всегда рекомендуем заказывать и Авторский надзор. Это супер-полезная штука, чтобы ремонтники сделали всё точно так, как хочет дизайнер и заказчик. Дизайнер контролирует полностью весь процесс и обеспечивает точное соответствие реализации проекта его первоначальному замыслу и проектной документации.

Безупречное выполнение проекта

На дизайнера интерьера в процессе реализации проекта возлагается много серьезных задач:

  • Проработка нескольких вариантов планировочного решения, учитывая нормы эргономики
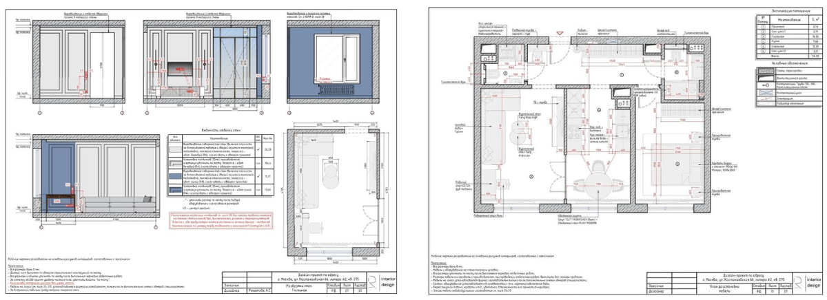
  • Подготовка полной технической документации (комплект чертежей, планов, схем, необходимых для строительно-отделочных работ: от обмерочного плана и расстановки мебели до планов электрики, освещения и отделки)
  • Выезд совместно с клиентом для подбора идеальных материалов и предметов интерьера
  • Выезд на объект для проверки визуального соответствия результатов ремонтных работ с проектом
  • Заранее продумать все детали, системы хранения, функциональность и расположение мебели
  • Придерживаться обозначенного заказчиком бюджета, прогнозировать риски и дать полную информацию по финансам
  • Подбирать наиболее подходящих для клиента производителей, материалы и мебель, а также подрядчика для отдельных видов работ
-4

Студия дизайна интерьеров Re-Va design обеспечиваеn максимальное соответствие между ценой и качеством.

С 2019 года наша студия дизайна интерьеров превращает мечты в реальность, создавая уникальные пространства, которые отражают индивидуальность каждого клиента. Мы не просто разрабатываем интерьер - мы погружаемся в ваш мир, чтобы понять и воплотить ваши желания. Для нас каждый проект - это возможность рассказать вашу историю через дизайн, объединяя эстетику, комфорт и функциональность.

Цель - превратить вашу идею в реальность, которая будет вдохновлять!

-5
-6
-7

Понравилась статья? Ставьте лайк!

Подписывайтесь на наш канал, приходите в гости в соцсетях!

Re-Va design — воплощение индивидуальности в авторском дизайне интерьера.

От замысла до реализации — создаём интерьер мечты с безупречной точностью!

— У нас работают только опытные и дипломированные дизайнеры, готовые воплощать в жизнь самые смелые решения
— Гарантируем на 100% реализацию ремонта по дизайн-проекту
— Авторский надзор
— Сопровождение ремонта
— Комплектация
Мы выполняем заказы самого высокого уровня сложности, за которые опасаются браться наши конкуренты, поэтому мы стабильно привлекаем большое количество как частных, так и корпоративных клиентов.

Наш сайт: https://re-va.ru/
RuTube: https://rutube.ru/channel/30271709/
Telegram: https://t.me/annareshetovaiam
VKontakte: https://vk.com/revadesign