Найти в Дзене
Аксенов Сервис

Проект, который покорил уже тысячи сердец в Нельзяграмме

😍 Начинаю обзор завершенного ремонта в квартире 75м2 в ЖК Архитектор. Современное, «умное» и очень стильное пространство для семьи с ребенком — идем смотреть? Начнем с кухни-гостиной 20,75м2: — На полу — пвх-плитка + микроплинтус. — Потолок — натяжной. — На стенах — декоративная штукатурка. Кстати, проектирование, ремонтные работы и комплектацию этого проекта выполняла наша команда «под ключ». Как вам результат? Есть вопросы по кухне-гостиной или движемся дальше? Если вы задумываетесь о ремонте своей мечты и хотите узнать его предварительную стоимость, получите бесплатную консультацию у нашего менеджера @kirillaxenof В этом посте есть большое видео, которое не загрузилось в Дзен. Откройте оригинал поста в телеграме, чтобы его посмотреть

Проект, который покорил уже тысячи сердец в Нельзяграмме😍

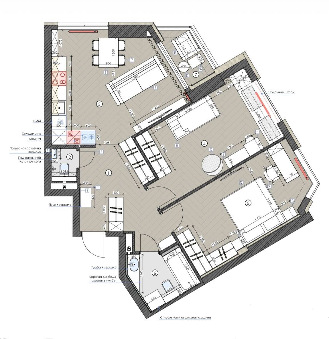
Начинаю обзор завершенного ремонта в квартире 75м2 в ЖК Архитектор.

Современное, «умное» и очень стильное пространство для семьи с ребенком — идем смотреть?

Начнем с кухни-гостиной 20,75м2:

— На полу — пвх-плитка + микроплинтус.

— Потолок — натяжной.

— На стенах — декоративная штукатурка.

Кстати, проектирование, ремонтные работы и комплектацию этого проекта выполняла наша команда «под ключ».

Как вам результат? Есть вопросы по кухне-гостиной или движемся дальше?

Если вы задумываетесь о ремонте своей мечты и хотите узнать его предварительную стоимость, получите бесплатную консультацию у нашего менеджера @kirillaxenof

В этом посте есть большое видео, которое не загрузилось в Дзен. Откройте оригинал поста в телеграме, чтобы его посмотреть