Добавить в корзинуПозвонить
Найти в Дзене

«Усадьба городская», кон. XIX-нач. XX вв. (г. Тверь, ул. Достоевского, 12)

Выдержки из историко-культурных исследований, посвящённых выявленному объекту культурного наследия «Усадьба городская», кон. XIX-нач. XX вв., расположенный по адресу: Тверская область, г. Тверь, ул. Достоевского, 12. Экспертиза по включению выявленного объекта культурного наследия была проведена в декабре 2025 года. Выявленный объект культурного наследия «Усадьба городская» представляет собой ансамбль, состоящий из двух строений: «Дом жилой», 1-ая пол. XIX – нач. ХХ вв. и «Флигель», 1-ая пол. XIX – нач. ХХ вв. Жилой дом представляет собой прямоугольный в плане объем (сруб-пятистенок) с прирубом сеней с западной стороны, возведенный на белокаменном цоколе- полуподвале. Крыша основного объема – двускатная, сеней- односкатная. Архитектурный облик Объекта решен в стиле модерна с элементами в стиле народной резьбы. Главный южный фасад Объекта, выходящий на линию застройки улицы Достоевского, ассиметричен за счет плоскости сеней и решен в три оконных проема и дверной проем сеней. Оконные про
Наличник Жилого дома. Изображение Стародубцевой Т.В.
Наличник Жилого дома. Изображение Стародубцевой Т.В.

Выдержки из историко-культурных исследований, посвящённых выявленному объекту культурного наследия «Усадьба городская», кон. XIX-нач. XX вв., расположенный по адресу: Тверская область, г. Тверь, ул. Достоевского, 12.

Экспертиза по включению выявленного объекта культурного наследия была проведена в декабре 2025 года.

Выявленный объект культурного наследия «Усадьба городская» представляет собой ансамбль, состоящий из двух строений: «Дом жилой», 1-ая пол. XIX – нач. ХХ вв. и «Флигель», 1-ая пол. XIX – нач. ХХ вв.

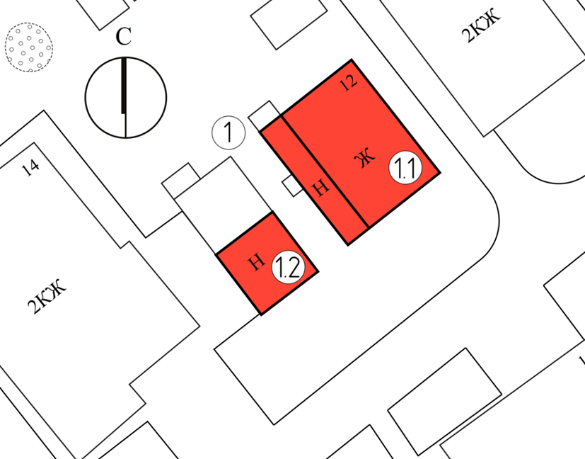
Ситуационная схема, где 1.1 – Жилой дом, 1.2 – Флигель, выполнена Стародубцевой Т.В.
Ситуационная схема, где 1.1 – Жилой дом, 1.2 – Флигель, выполнена Стародубцевой Т.В.
Общий вид городской усадьбы, 1988 г. (из паспорта памятника истории и культуры СССР «Усадьба городская. Комплекс», первая половина XIX века, конец XIX – начало XX веков (Калининская обл., г. Калинин, ул. Достоевского, 12)/ сост. арх. П.Н. Шармин. 1988 г.)
Общий вид городской усадьбы, 1988 г. (из паспорта памятника истории и культуры СССР «Усадьба городская. Комплекс», первая половина XIX века, конец XIX – начало XX веков (Калининская обл., г. Калинин, ул. Достоевского, 12)/ сост. арх. П.Н. Шармин. 1988 г.)

Жилой дом представляет собой прямоугольный в плане объем (сруб-пятистенок) с прирубом сеней с западной стороны, возведенный на белокаменном цоколе- полуподвале. Крыша основного объема – двускатная, сеней- односкатная.

Архитектурный облик Объекта решен в стиле модерна с элементами в стиле народной резьбы. Главный южный фасад Объекта, выходящий на линию застройки улицы Достоевского, ассиметричен за счет плоскости сеней и решен в три оконных проема и дверной проем сеней. Оконные проемы прямоугольной формы, обрамлены в резные наличники со щипцовым навершием (сандриком) с плечиками. Сандрик имеет профилированный карниз и украшен резным ступенчатым подзором. На плечиках сандрика установлены пропильные очелья. Навершие опирается на фигурные стойки боковины и широкие фартуки под подоконником, декорированные подзорами ажурной пропильной резьбы. Обрамляют фартуки подвесы с капельками.

План первого этажа Жилого дома, выполнена Стародубцевой Т.В.
План первого этажа Жилого дома, выполнена Стародубцевой Т.В.
Вид на нлавный фасад,  автор фотографии Тарновский А.В.
Вид на нлавный фасад, автор фотографии Тарновский А.В.
Оконные проемы, обрамленные наличниками, фотография Тарновский А.В.
Оконные проемы, обрамленные наличниками, фотография Тарновский А.В.
Дверное полотно,  автор фотографии Тарновский А.В.
Дверное полотно, автор фотографии Тарновский А.В.

Флигель представляет собой прямоугольный в плане объем на белокаменном цоколе, состоящий из разновременных объемов: квадратный в плане объем 1-ой пол. XIX в. и прямоугольный объем начала ХХ в.

Главный южный фасад Объекта ассиметричный за счет конфигурации крыши и решен в три оконных проема прямоугольной формы, обрамленные в наличники. Наличники выполнены со щипцовыми сандриками на плечиках с зубчиками и пропильной резьбой подзора. Наличники рамочные с камельками на подвесах.

Вид на флигель, автор фотографии Тарновский А.В.
Вид на флигель, автор фотографии Тарновский А.В.