Добавить в корзинуПозвонить
Найти в Дзене

Стоимость одноэтажного дома из газобетона площадью 75 кв.м.

Большая кухня-гостинная, большой санузел, котельная, 2 спальные комнаты, холл-тамбур. Такой дом отлично подойдет для небольшой семьи или в качестве дома выходного дня. Идеальное решение газоблок 400 мм, плотностью D400. У клиента не было средств на отделку наружного фасада. Данное решение позволяет жить в доме: комфортно и тепло. А некоторые заводы сухих смесей, например, Церезит, рекомендует выполнять наружную отделку фасада дома после проведения внутренних работ. И после того как лишняя влажность выйдет наружу. Коробка из газобетона заняло до 1 месяца (неделя +- 2-3 дня коробка), потом 2-3 недели арматурный каркас, заливка бетона. Стоимость дома составила 6,5 миллионов рублей (материалы и работа строителей). Включает второй свет (необычные перекрытия). Не включена в стоимость наружная и внутренняя отделка. Весь ролик смотрите здесь ________________________ Завод стеновых материалов "Поревит", г. Ялуторовск, Тюменская область Сайт https://porevit.ru/ Адреса офисов продаж завода и
Оглавление
Стоимость одноэтажного дома из газобетона площадью 75 кв.м.
Стоимость одноэтажного дома из газобетона площадью 75 кв.м.

Большая кухня-гостинная, большой санузел, котельная, 2 спальные комнаты, холл-тамбур. Такой дом отлично подойдет для небольшой семьи или в качестве дома выходного дня.

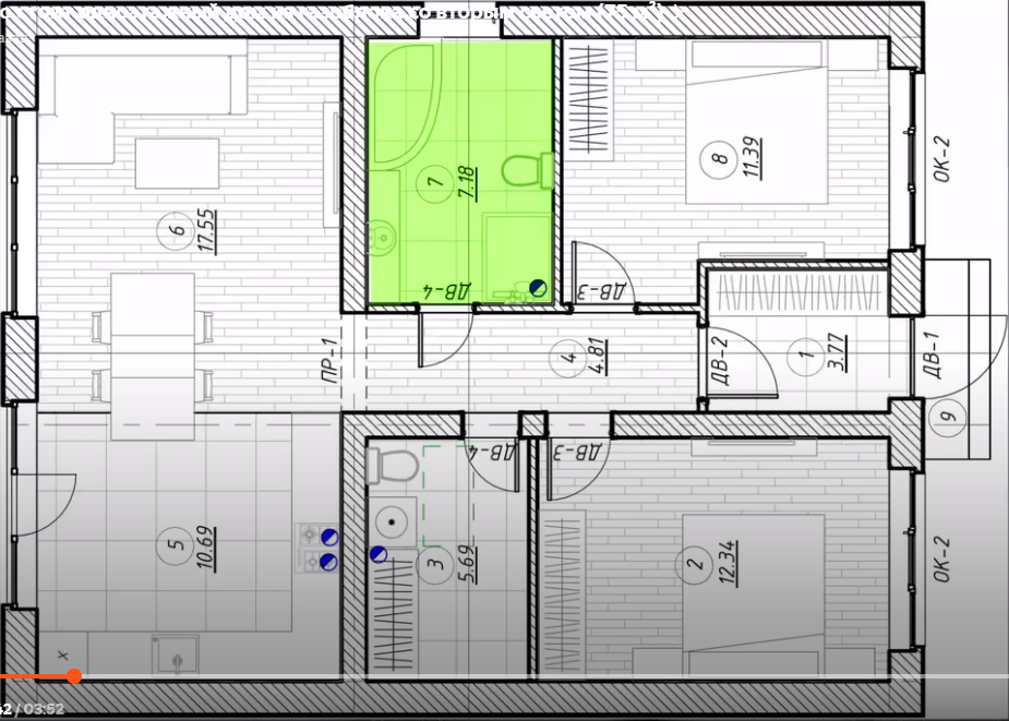
Планировка дом 75 кв.м.
Планировка дом 75 кв.м.

Из чего построен дом и почему?

Идеальное решение газоблок 400 мм, плотностью D400. У клиента не было средств на отделку наружного фасада. Данное решение позволяет жить в доме: комфортно и тепло.

А некоторые заводы сухих смесей, например, Церезит, рекомендует выполнять наружную отделку фасада дома после проведения внутренних работ. И после того как лишняя влажность выйдет наружу.

Алексей, компания СитиСтрой, Тюмень
Алексей, компания СитиСтрой, Тюмень

Срок строительства коробки из газоблока

Коробка из газобетона заняло до 1 месяца (неделя +- 2-3 дня коробка), потом 2-3 недели арматурный каркас, заливка бетона.

Сколько стоит дом из газоблока?

Стоимость дома составила 6,5 миллионов рублей (материалы и работа строителей). Включает второй свет (необычные перекрытия). Не включена в стоимость наружная и внутренняя отделка.

Небольшой дом из газобетона в Тюмени
Небольшой дом из газобетона в Тюмени
-5

Весь ролик смотрите здесь

________________________

Завод стеновых материалов "Поревит", г. Ялуторовск, Тюменская область

Сайт https://porevit.ru/

Адреса офисов продаж завода и партнеров в УРФО и за его пределами https://porevit.ru/gde-kupit/

⠀⠀

Социальные сети:

Телеграм https://t.me/zavodporevit

Вконтакте https://vk.com/porevit

Группа Вконтакте Карьера в Поревит https://vk.com/porevit_hr