Найти в Дзене
METALWELL GLAMPING

Мы продолжаем знакомить наших подписчиков и друзей с модельным рядом наших Домокомплектов

Сегодня представляем Вам дом производства JJM HOUSE China самого небольшого размера 18,5 кв.м. (10 футов). Несмотря на небольшие габариты домик оснащен всем необходимым для отдыха и круглогодичного проживания. Минимальная цена на дом стартует от 950 тысяч рублей. Описание товара. Модульный мобильный дом производства Tangshan Jinjiama Supply Chain Management Co» (JJM House TM) (далее «Домокомплект») представляет собой инновационную концепцию мобильного жилого помещения, которая состоит из металлического целостного каркаса, выполненного из черной стали и обработанного горячим цинкованием (для защиты от эрозии), покрашенной декоративным лакокрасочным покрытием, со встроенной инженерной системой (вода, канализация и электричество) , с нормальными панелями теплоизоляции по стенам, потолку и полу не менее 100 мм, позволяющей при должной эксплуатации выдерживать температурные и климатические условия средней полосы России. Базовая конструкция модуля 10 футов (18,5 кв.м)  Каркас: цельносвар

Мы продолжаем знакомить наших подписчиков и друзей с модельным рядом наших Домокомплектов. Сегодня представляем Вам дом производства JJM HOUSE China самого небольшого размера 18,5 кв.м. (10 футов). Несмотря на небольшие габариты домик оснащен всем необходимым для отдыха и круглогодичного проживания. Минимальная цена на дом стартует от 950 тысяч рублей. Описание товара.

Модульный мобильный дом производства Tangshan Jinjiama Supply Chain Management Co» (JJM House TM) (далее «Домокомплект») представляет собой инновационную концепцию мобильного жилого помещения, которая состоит из металлического целостного каркаса, выполненного из черной стали и обработанного горячим цинкованием (для защиты от эрозии), покрашенной декоративным лакокрасочным покрытием, со встроенной инженерной системой (вода, канализация и электричество) , с нормальными панелями теплоизоляции по стенам, потолку и полу не менее 100 мм, позволяющей при должной эксплуатации выдерживать температурные и климатические условия средней полосы России.

Базовая конструкция модуля 10 футов (18,5 кв.м)

 Каркас: цельносварной металлический из горячекатаной стали С235 оцинкованной

 Внешняя отделка: стеновые сэндвич-панели (стальной лист + утеплитель). Выбор цветовой гаммы фасада из каталога на усмотрение клиента. (доплата только за полный стеклянный фасад)

 Утепление: минеральная вата/пенополиуретан, 75-100 мм (ROCKWOLL)

 Кровля: плоская или скатная, с гидроизоляцией

 Стандартная комплектация: предустановленные оконные и дверные блоки, санузел с сантехников, инженерные системы.

 Теплые полы (два контура): медный провод в изоляции внутри пола (под ламинатом). Пол: ламинат, в санузле керамическая плитка. Выбор цвета на усмотрение клиенты.

 Дверь и окна двухблочное (три стекла) с доводчиками. Выбор модели на усмотрение клиента. Возможна дополнительная комплектация защитными ставнями (антивандальными)

Модель 10 футов (18.5 кв.м)

Габаритные размеры (в транспортировочном положении): Длина: 3 м., Ширина: 2,4 м., Высота: 2,40 м.

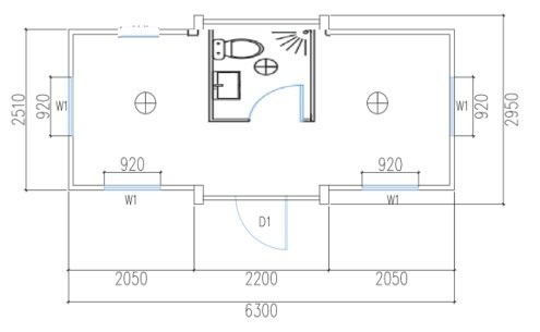
Габаритные размеры (в раскрытом положении): Длина: 2,95 м., Ширина: 6,3 м., Высота: 2,4м.

Внутренние размеры (раскрытое положение): Длина: 2.8 м., Ширина: 6 м., Высота: 2,30 м

Инженерные системы: Электропроводка: предустановленная, ввод через заднюю стенку. Водоснабжение: входные отверстия Ø20 мм в полу., Канализация: выходное отверстие Ø110 мм в полу, отводной слив для кухни Ø50 мм.

Доступные комплектации: Эконом и Базовая (с зимним пакетом). Пригодно для: летней дачи, круглогодичного проживания, туристических баз и глэмпингов, небольших торговых точек. Больше информации:

Наш сайт: www.metalwell.ru

Мы в ВК: https://vk.com/metalwellrus

Мы в ТГ: https://dzen.ru/id/68acc1804bb1e802d3eb3b2a

Мы в MAX: https://web.max.ru/-70013999276168

Заявки на почту: metalwell@yandex.ru 

или по телефонам: +7 901 705 4862 +7 993 697 1045

Добро Пожаловать в METALWELL FAMILY !

ИП КОЗЛОВ В.И.

М.О. г. Солнечногорск ул. Промышленная 7., 4 этаж

(Демонстрационный офис, склад).