Найти в Дзене
Берег Песочной

Представляем наш проект ПБ-159

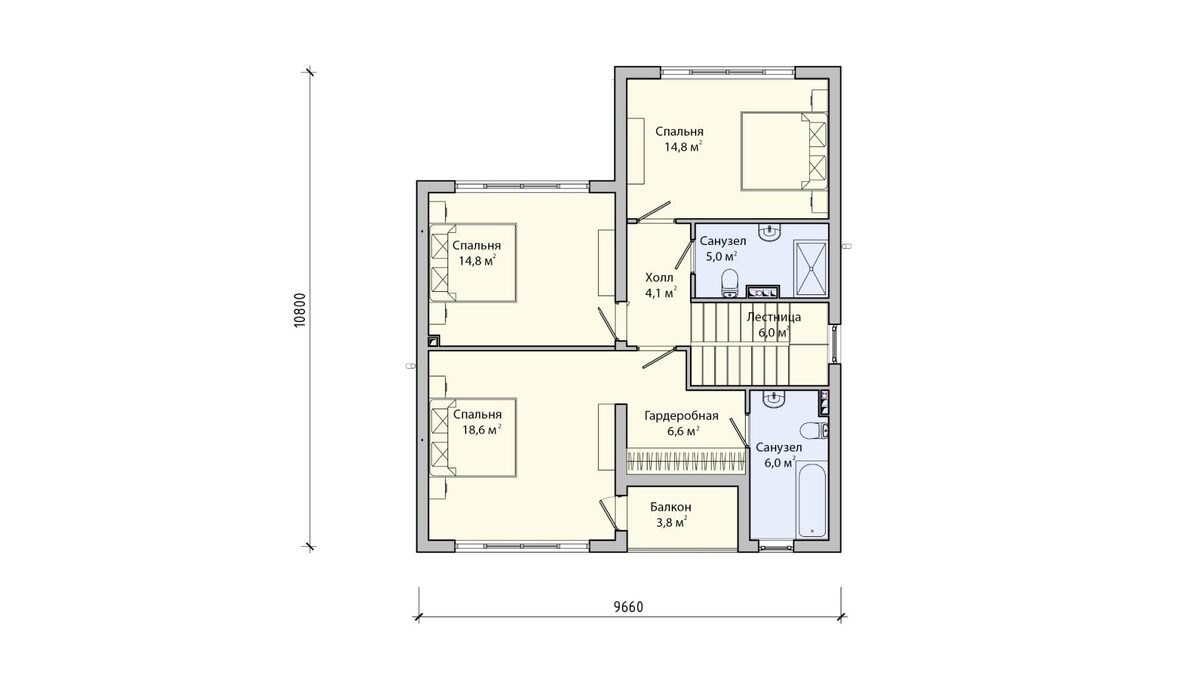
Представляем наш проект ПБ-159 — просторный двухэтажный дом площадью 155,8 м², созданный для комфортной жизни семьи из 6–8 человек. Современный дизайн делает его стильным и функциональным! 🎨🏠 🚪 Входная группа украшена удобным западающим крыльцом. Отдельные двери ведут в дом и в котельную — практично и удобно! 🔑 🛋 Первый этаж встречает просторным тамбуром и уютным холлом. В планировке предусмотрены все необходимые помещения: ✅ санузел ✅ большая гостиная, объединенная с кухней — место для всей семьи и дружеских посиделок ✅ отдельная спальня для гостей с собственным санузлом 🛏 Второй этаж включает просторный холл и три спальни. Особое внимание уделено мастер-спальне с собственной гардеробной и санузлом. 🚿👗 Из мастер-спальни есть выход на балкон — наслаждайтесь видом и тишиной! 🌅🧘‍♂️ Этот дом — идеальное сочетание комфорта и практичности для большой семьи, где каждому найдется свое уютное место! ❤️🏡 Узнайте больше о проекте: https://beregpesochnoy.ru/house/lot-no13
📞 +7 (495)

Представляем наш проект ПБ-159 — просторный двухэтажный дом площадью 155,8 м², созданный для комфортной жизни семьи из 6–8 человек.

-2
-3
-4

Современный дизайн делает его стильным и функциональным! 🎨🏠

🚪 Входная группа украшена удобным западающим крыльцом. Отдельные двери ведут в дом и в котельную — практично и удобно! 🔑

🛋 Первый этаж встречает просторным тамбуром и уютным холлом. В планировке предусмотрены все необходимые помещения:

✅ санузел

✅ большая гостиная, объединенная с кухней — место для всей семьи и дружеских посиделок

✅ отдельная спальня для гостей с собственным санузлом

🛏 Второй этаж включает просторный холл и три спальни. Особое внимание уделено мастер-спальне с собственной гардеробной и санузлом. 🚿👗

Из мастер-спальни есть выход на балкон — наслаждайтесь видом и тишиной! 🌅🧘‍♂️

Этот дом — идеальное сочетание комфорта и практичности для большой семьи, где каждому найдется свое уютное место! ❤️🏡

Узнайте больше о проекте: https://beregpesochnoy.ru/house/lot-no13
📞 +7 (495) 260-98-32

Этот уютный и современный дом отлично подойдет для семейной жизни в окружении природы и комфорта!

#ЗагородныйДом #ПроектПБ159 #Строительство #ЖильеМечты #СовременныйКоттедж #Энергоэффективность #ДомМечты #ЖБПанели