Добавить в корзинуПозвонить
Найти в Дзене

ЭРГОНОМИКА РАБОЧЕГО МЕСТА

Сегодня одна из самых популярных рубрик - #эргономика_byiolanta. Будем говорить о рабочем месте или домашнем кабинете. Это вам пригодится как на работе, так и дома. Особенно в период локдаунов и карантинов.
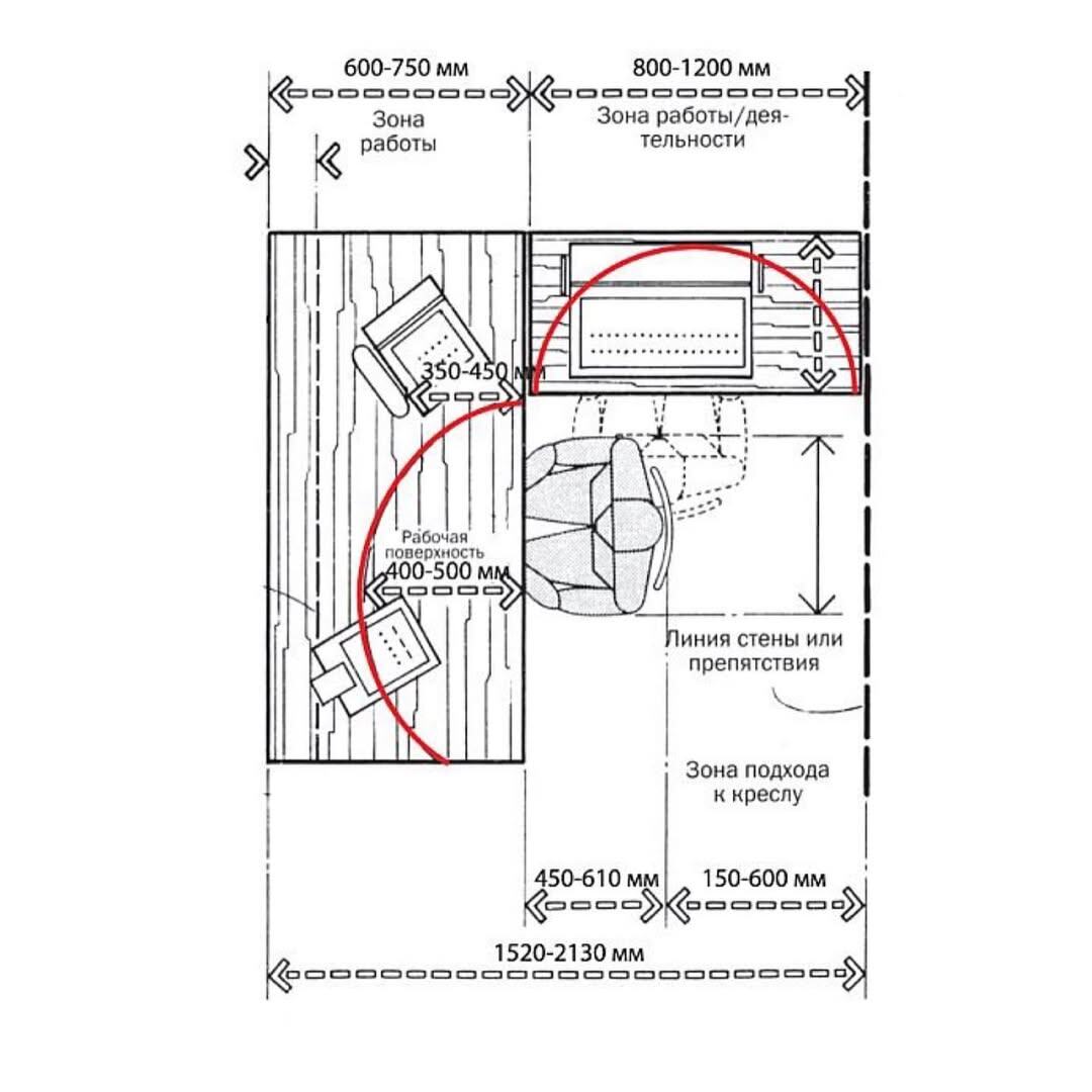
👩🏻‍💻Итак, начнём с рабочего стола. Оптимальная глубина письменного стола должна быть 80см. Минимальная глубина - 55-60см. Это расстояние, требуемое для размещения монитора и клавиатуры. 👩🏻‍💻Ширина письменного стола - минимально 70см. А вот оптимально - 120см. Максимально лучше не превышать 160-170см. Если, конечно, это не представительский кабинет. Там столы и 200-250см бывают. Но на самом деле, человек, сидящий в кресле - охватывает пространство только в радиусе 70-80см вокруг себя (не вставая). 👩🏻‍💻Для кресла нужно расстояние минимум 100см. Учтите это, когда ставите стол так, что человек сидит спиной к стене. Либо когда позади ставите тумбы или шкафы. 👩🏻‍💻Высота рабочего стола варьируется от 73,5 до 75,5см. Выше можно делать, если будет работать человек выше среднего

Сегодня одна из самых популярных рубрик - #эргономика_byiolanta. Будем говорить о рабочем месте или домашнем кабинете. Это вам пригодится как на работе, так и дома. Особенно в период локдаунов и карантинов.

👩🏻‍💻Итак, начнём с рабочего стола. Оптимальная глубина письменного стола должна быть 80см. Минимальная глубина - 55-60см. Это расстояние, требуемое для размещения монитора и клавиатуры.

-2

👩🏻‍💻Ширина письменного стола - минимально 70см. А вот оптимально - 120см. Максимально лучше не превышать 160-170см. Если, конечно, это не представительский кабинет. Там столы и 200-250см бывают. Но на самом деле, человек, сидящий в кресле - охватывает пространство только в радиусе 70-80см вокруг себя (не вставая).

-3

👩🏻‍💻Для кресла нужно расстояние минимум 100см. Учтите это, когда ставите стол так, что человек сидит спиной к стене. Либо когда позади ставите тумбы или шкафы.

-4
-5

👩🏻‍💻Высота рабочего стола варьируется от 73,5 до 75,5см. Выше можно делать, если будет работать человек выше среднего роста (выше 185-190см).

-6

👩🏻‍💻Если делаете навесные полки - учтите, что в идеале доступ к ним должен быть, не вставая с кресла.

-7

👩🏻‍💻Зональная подсветка не должна бить в глаза и не должна быть непосредственно над компьютером. В идеале либо над головой сидящего, либо чуть за монитором.

-8

👩🏻‍💻Смотрите фото, там все понятно. Информация была полезна? Дома планируете организовать рабочее место?

🔥А если хотите больше знать про ремонт в доме, пройдите мой мини-курс "8 шагов к идеальному ремонту" 👉https://iolanta.in/mk-ideal-remont