Добавить в корзинуПозвонить
Найти в Дзене
Правда ПФО

Около мечети «Ихлас» в Уфе построят жилой комплекс и соцобъекты

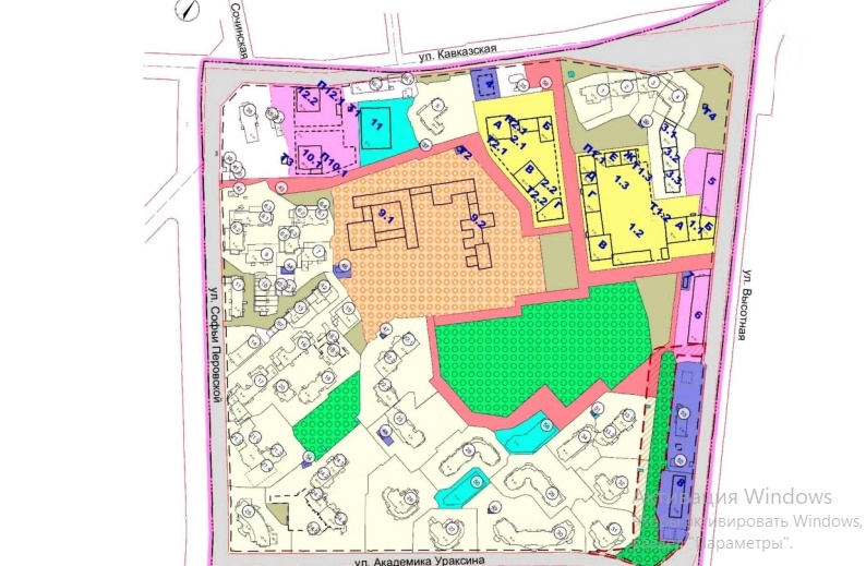
Мэр Уфы Ратмир Мавлиев утвердил проект планировки квартала в границах улиц Софьи Перовской, Кавказской, Высотной и Академика Ураксина в Кировском районе городского округа город Уфа Республики Башкортостан. Площадь территории составляет 37,43 га. Сохранят 25 многоквартирных и частных домов, гаражи и паркинги, мечеть на Сочинской, торговое и административные здания. Под снос пойдут ветхий частный сектор и гаражи общей площадью около 15 тыс. кв. м. На освободившемся месте планируют возвести пять высоток до 32 этажей с магазинами и сервисными предприятиями на первых уровнях, подземными паркингами, а также два 20-этажных офисных центра. Новая застройка составит 103,5 тыс. кв. м, а население территории увеличится с нынешних 7 тыс. до 10,5 тыс. человек. Кроме того, в квартале планируется строительство многофункционального образовательного центра, который включает школу на 1 750 мест и детского сада на 434 воспитанника. Также здесь построят поликлинику для взрослых и детей по 80 посещений в см

Мэр Уфы Ратмир Мавлиев утвердил проект планировки квартала в границах улиц Софьи Перовской, Кавказской, Высотной и Академика Ураксина в Кировском районе городского округа город Уфа Республики Башкортостан. Площадь территории составляет 37,43 га.

Сохранят 25 многоквартирных и частных домов, гаражи и паркинги, мечеть на Сочинской, торговое и административные здания. Под снос пойдут ветхий частный сектор и гаражи общей площадью около 15 тыс. кв. м.

На освободившемся месте планируют возвести пять высоток до 32 этажей с магазинами и сервисными предприятиями на первых уровнях, подземными паркингами, а также два 20-этажных офисных центра. Новая застройка составит 103,5 тыс. кв. м, а население территории увеличится с нынешних 7 тыс. до 10,5 тыс. человек.

Кроме того, в квартале планируется строительство многофункционального образовательного центра, который включает школу на 1 750 мест и детского сада на 434 воспитанника. Также здесь построят поликлинику для взрослых и детей по 80 посещений в смену и фитнес-центр.

Почти треть территории (11,85 га) займёт ландшафтный парк. Основу рекреационного пространства составят существующие деревья. Их дополнят прогулочные аллеи, площадки для тихого отдыха и смотровые точки, велодорожки вдоль улиц Кавказской, Высотной и Ураксина, для пешеходов ─ сеть бульваров от жилых домов к парку и школе. Для автомобилистов построят 8-этажный паркинг и подземные стоянки на 2,1 тыс. мест.

Фото: проектная документация