Найти в Дзене
Inremonte.ru

Сегодня посмотрим вот такой проект дома

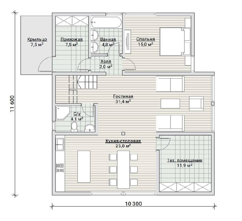
Всегда надо смотреть планы а не картинки, которые кстати сделаны неверно и в реальности так выглядеть не будут. Но фасады дело хозяйское - смотрим планы. Первый этаж необходимо перепроектировать. Лестницу сделать центральнее, убраить из гостинной техническое помещение оно там не нужно. Убрать второй свет. И вот получается что все надо переделать чтобы дом стал красивым и удобным для вашей семьи. Вообще проектировать дом надо от участка - от его расположения и формы будет зависеть какой дом там будет.

Сегодня посмотрим вот такой проект дома. Всегда надо смотреть планы а не картинки, которые кстати сделаны неверно и в реальности так выглядеть не будут. Но фасады дело хозяйское - смотрим планы. Первый этаж необходимо перепроектировать. Лестницу сделать центральнее, убраить из гостинной техническое помещение оно там не нужно. Убрать второй свет. И вот получается что все надо переделать чтобы дом стал красивым и удобным для вашей семьи. Вообще проектировать дом надо от участка - от его расположения и формы будет зависеть какой дом там будет.

-2
-3
-4
-5
-6
-7