Найти в Дзене
Войти
Дизайнер Оксана Шихранова
106 подписчиков
Подписаться
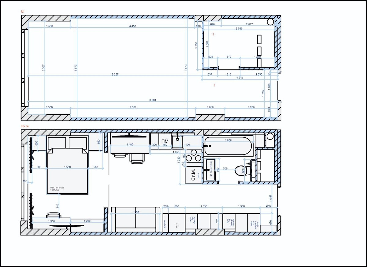
Интерьер студии 30.5 кв.м
2 дня назад
2 дня назад
~1 мин
...
Читать далее
Интерьер студии 30.5 кв.м