Найти в Дзене
Войти
Виталий Ананченко (Творческая группа Architipai)
23 подписчика
Подписаться
“3Д ПЛАНИТЫ” – Интерьер квартиры
9 января
9 янв
~1 мин
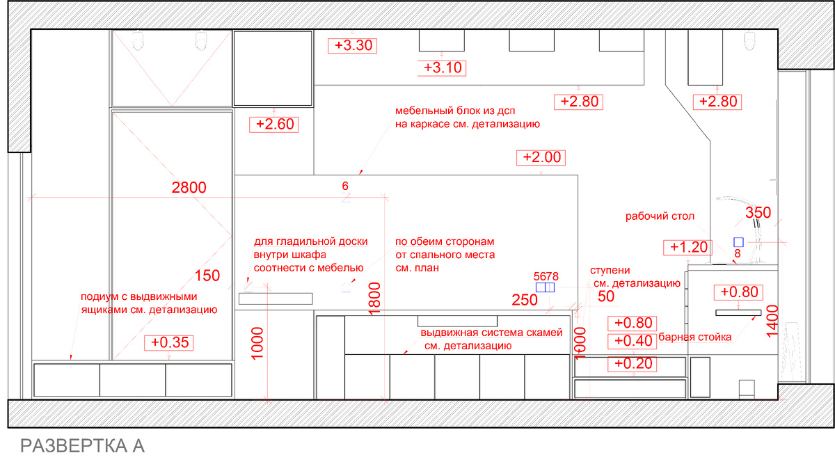
Разработка проекта идет полным ходом, развертки и детали
Разработка проекта идет полным ходом, развертки и детали
...
Читать далее
Разработка проекта идет полным ходом, развертки и детали