Добавить в корзинуПозвонить
Найти в Дзене

Из однушки в двушку: Интерьер для уверенной в себе женщины

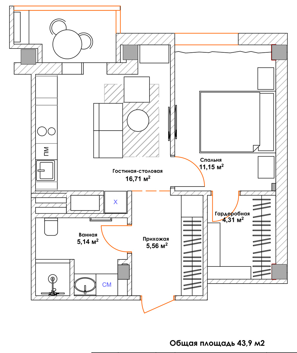
Расскажу про мой проект, квартиру в новостройке, расположенную в Одинцовском районе. Заказчица - уверенная в себе женщина. Которая знает цену себе и деньгам, которые она заработала. Есть большой пес - любимец семьи. Он живет с дочерью, но ему нужно место в этой небольшой квартирке, когда они приедут в гости. Желание иметь отдельную спальню стало отправной точкой для преображения этой однокомнатной квартиры. Поскольку заказчица не увлекается готовкой, большая кухня не требовалась, и зону столовой перенесли на лоджию. Так удалось создать отдельную спальню, гардеробную и уютную гостиную в "бывшей кухне", которая при этом сохранила свои функциональные возможности. Кухонная мебель подобрана таким образом, чтобы не привлекать к себе внимания, а служить фоном. Из однокомнатной квартиры мы сотворили уютную двухкомнатную обитель, где каждый уголок продуман до мелочей. Ванная комната, избавившись от прежней угловатости, обрела гармоничную форму. Благодаря переносу входа в гардеробную в спальню,
Оглавление

Расскажу про мой проект, квартиру в новостройке, расположенную в Одинцовском районе. Заказчица - уверенная в себе женщина. Которая знает цену себе и деньгам, которые она заработала. Есть большой пес - любимец семьи. Он живет с дочерью, но ему нужно место в этой небольшой квартирке, когда они приедут в гости.

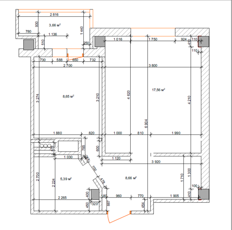
Планировка

Желание иметь отдельную спальню стало отправной точкой для преображения этой однокомнатной квартиры. Поскольку заказчица не увлекается готовкой, большая кухня не требовалась, и зону столовой перенесли на лоджию. Так удалось создать отдельную спальню, гардеробную и уютную гостиную в "бывшей кухне", которая при этом сохранила свои функциональные возможности. Кухонная мебель подобрана таким образом, чтобы не привлекать к себе внимания, а служить фоном.

Из однокомнатной квартиры мы сотворили уютную двухкомнатную обитель, где каждый уголок продуман до мелочей. Ванная комната, избавившись от прежней угловатости, обрела гармоничную форму. Благодаря переносу входа в гардеробную в спальню, в прихожей удалось разместить вместительный шкаф с хозяйственным отделением. Гостиная, хоть и стала чуть компактнее ради полноценной спальни, идеально подходит для жизни одного человека. Открытый проем из прихожей плавно перетекает в гостиную, а затем в столовую. Дверь из кухни-гостиной ведет в спальню, которая, несмотря на скромные размеры, кажется просторной и уютной.

Фишки интерьера

Этот интерьер искусно сочетает в себе актуальные тенденции и авторские находки. "Латунные" акценты в фурнитуре, обрамлении розеток и светильниках добавляют изысканности, а сложный сине-серый цвет дверей и обоев в спальне создает атмосферу спокойствия. Авторские "фишки", такие как панно в ванной, имитирующее арт-объект, латунная перегородка, разделяющая зоны, и оригинальный рисунок плитки на полу, превращают маленькую квартиру в драгоценную шкатулку, уютное гнездышко, где можно отдохнуть от городской суеты.

Тот самый рисунок на полу в прихожей, я разработала сама. А воплотили мы его, путем нарезки готового керамогранита на нужные детали.

Также тут использован винтаж. На блошином рынке купили столик с очаровательными ножками, отреставрировали и перекрасили его в мастерской. Теперь он - украшение спальни.

Еще несколько слов по панно в ванной комнате. Выглядит, как срез камня, но на самом деле - это рисунок из залитой смолы. Оригинально смотрится, вы находите?

Отделка

Практичность и эстетика гармонично сочетаются в отделке этой квартиры. Стены выкрашены, за исключением ванной комнаты (где использована плитка), и спальни, где потрясающие "облачные" обои от Eijffinger создают атмосферу роскошного отеля на морском побережье Бретани. Керамогранит с моим авторским рисунком на полу в прихожей и гостиной-кухне не только практичен, но и визуально расширяет пространство. В спальне и гардеробной уложена паркетная доска, добавляющая уюта.

Так, шаг за шагом, мы создали не просто квартиру, а личное пространство, отражающее индивидуальность и вкус заказчицы. Здесь гармонично сочетаются функциональность и эстетика, практичность и уют. Каждая деталь, от латунных акцентов до авторского рисунка на полу, работает на создание атмосферы комфорта и спокойствия. Эта маленькая квартира стала настоящим убежищем от городской суеты, местом, куда хочется возвращаться снова и снова. И всем гостям найдется место!

Как вам этот интерьер? Если хотите воплотить что-то интересное, я подберу вам время для первой консультации