Найти в Дзене

Апартаменты в Livingston, Сочи: Почему эта студия 20.3 м² — предмет детального рассмотрения

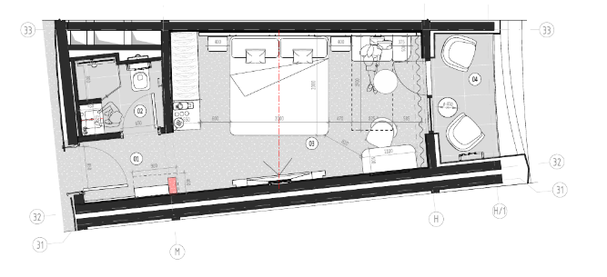
Если вы изучаете предложения на сочинском побережье, вы наверняка встречали Livingston Grand Resort & Spa. Разберем конкретный лот — апартаменты-студию 20.3 м² на 1 этаже — не с точки зрения рекламы, а как практик, который помогает клиентам находить оптимальные решения. Моя задача — структурировать факты, чтобы вы оценили их значимость. Что мы имеем по факту: технические и коммерческие параметры Давайте отталкиваться от точных данных, которые и формируют основу для принятия решения: · Объект: Апартаменты-студия в ЖК «Livingston». · Локация: Сочи, р-н Центральный, мкр. Мамайка, ул. Крымская, 44с1. Ключевой факт — комплекс позиционируется на первой береговой линии. · Площадь: 20,3 м². Компактный формат. · Цена за метр: 1 513 880 ₽/м². Это текущий рыночный показатель объекта, от которого можно вести расчеты. · Финансовые условия: Свободная продажа. Это важно для скорости сделки и отсутствия дополнительных обременений. · Конкретика объекта: o Этаж: 1 из 11. o Высота потолков: 3,5 м — зна

Если вы изучаете предложения на сочинском побережье, вы наверняка встречали Livingston Grand Resort & Spa. Разберем конкретный лот — апартаменты-студию 20.3 м² на 1 этаже — не с точки зрения рекламы, а как практик, который помогает клиентам находить оптимальные решения. Моя задача — структурировать факты, чтобы вы оценили их значимость.

Что мы имеем по факту: технические и коммерческие параметры

Давайте отталкиваться от точных данных, которые и формируют основу для принятия решения:

· Объект: Апартаменты-студия в ЖК «Livingston».

· Локация: Сочи, р-н Центральный, мкр. Мамайка, ул. Крымская, 44с1. Ключевой факт — комплекс позиционируется на первой береговой линии.

· Площадь: 20,3 м². Компактный формат.

-2

· Цена за метр: 1 513 880 ₽/м². Это текущий рыночный показатель объекта, от которого можно вести расчеты.

· Финансовые условия: Свободная продажа. Это важно для скорости сделки и отсутствия дополнительных обременений.

· Конкретика объекта:

o Этаж: 1 из 11.

o Высота потолков: 3,5 м — значительный параметр, визуально расширяющий пространство.

o Отделка: Под ключ. Фактор готовности и отсутствия дополнительных вложений на ремонт.

o Балкон: 1.

o Санузел: 1 совмещенный.

o Год сдачи: 2024 (новостройка с актуальными стандартами).

· Данные по дому: Монолитная конструкция, 6 пассажирских и 3 грузовых лифта, есть пандус.

Анализ контекста: чем живет комплекс Livingston Grand Resort & Spa

Здесь важно перейти от цифр к среде. Заявленная концепция — гостиничный комплекс премиум-уровня, где можно приобрести номер или апартамент в собственность.

-3

1. Территория и локация: Упоминаемая площадь территории — 5,6 га. Для курортного объекта это серьезный размер, предполагающий место для инфраструктуры. Расположение в историческом районе Мамайка на первой линии — это не просто строчка, это главный тезис для курортной недвижимости, определяющий и ценность, и потенциальную востребованность аренды.

2. Инфраструктура «всё внутри»: Заявлено, что гостям не обязательно покидать территорию. Упоминаются бары, рестораны, wellness-центр, салоны, магазины, паркинг, консьерж-служба. С практической точки зрения: Для владельца это означает, что объект управляется как единый сервисный комплекс, что может упростить сдачу в аренду и повысить привлекательность для отдыхающих.

-4

Для кого этот лот может быть стратегически верным шагом?

Исходя из вышеперечисленного, рассмотрим две основные стратегии покупки:

1. Инвестиция с пассивным доходом.

o Аргументы «за»: Компактная площадь (20.3 м²) часто означает более доступный портрет входа и оптимальную стоимость суточной аренды. Управление объектом как единым отелем (через потенциальную управляющую компанию) может снять с владельца вопросы поиска арендаторов, уборки, консьерж-сервиса. Локация на первой линии — ключевой драйвер спроса на аренду в Сочи. Отделка «под ключ» позволяет сразу вывести объект в доходный оборот после сдачи дома.

2. Личная курортная резиденция.

o Аргументы «за»: Готовность под ключ и высокие потолки 3.5 м создают ощущение простора даже в студии. Наличие всей инфраструктуры на территории решает вопрос досуга и быта. Первая линия — личный доступ к морю и виду. Статус апарт-отеля предполагает сервисный уровень обслуживания на территории.

Что проверить перед решением (ваш чек-лист):

Как ваш советчик, направлю ваше внимание на пункты для уточнения:

· Документы: Договор долевого участия (ДДУ), проектную декларацию. Особое внимание — вид разрешенного использования земли и помещений. Это определит правовой режим.

· Управление и аренда: Если рассматриваете доходность, запросите предложения от управляющей компании по эксплуатации и сдаче в аренду: условия, процент, гарантии.

· Эксплуатационные расходы: Уточните размер ежемесячных платежей за обслуживание территории, охрану, коммунальные ресурсы (для апартаментов часто действуют тарифы, близкие к коммерческим).

Резюме

Данная студия в Livingston — это конкретное предложение с четкими параметрами в крупном заявленном проекте формата «apart-hotel». Ее сильные стороны для рассмотрения: актуальная стадия строительства (2024), готовность под ключ, сильная локация и комплексная инфраструктура.

-5

Объект выглядит логичным выбором для инвестора, нацеленного на курортную аренду, или для покупателя, ищущего готовую личную резиденцию у моря без хлопот с ремонтом.

Ваш следующий шаг — перенести оценку с уровня фактов и концепции на уровень документов и конкретных договоренностей с управляющей стороной. Запросите полный пакет документов и детализированные условия будущей эксплуатации.

Подробности и заявки — в профиле канала.