Найти в Дзене

Щит АВР 100А: универсальное решение для бесперебойного электроснабжения

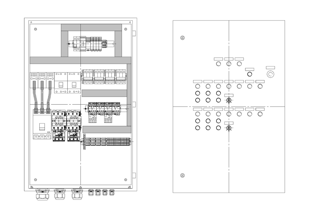
В современном мире, где от стабильной подачи электроэнергии зависит не только комфорт, но и безопасность, работоспособность оборудования и сохранность данных, проблема внезапных отключений электричества стоит особенно остро. Решением, которое кардинально меняет ситуацию, является установка щита АВР — устройства Автоматического Ввода Резерва. АВР — это интеллектуальная электротехническая система, основное назначение которой — автоматическое, без участия человека, переключение питания потребителей с основного источника (например, городской сети) на резервный (генератор, вторая независимая линия) при аварии на основном вводе. Как только напряжение в основной сети восстанавливается и стабилизируется, система в автоматическом режиме, с заданной временной задержкой, возвращает нагрузку на штатный источник. Пример АВР производства «НТК Приборэнерго» Щит АВР представляет собой компактный металлический шкаф, внутри которого собрана вся необходимая аппаратура для реализации этой логики. Основным
Оглавление

Что такое щиты АВР и принцип их работы

В современном мире, где от стабильной подачи электроэнергии зависит не только комфорт, но и безопасность, работоспособность оборудования и сохранность данных, проблема внезапных отключений электричества стоит особенно остро. Решением, которое кардинально меняет ситуацию, является установка щита АВР — устройства Автоматического Ввода Резерва.

АВР — это интеллектуальная электротехническая система, основное назначение которой — автоматическое, без участия человека, переключение питания потребителей с основного источника (например, городской сети) на резервный (генератор, вторая независимая линия) при аварии на основном вводе. Как только напряжение в основной сети восстанавливается и стабилизируется, система в автоматическом режиме, с заданной временной задержкой, возвращает нагрузку на штатный источник.

Пример АВР производства «НТК Приборэнерго»

Щит АВР представляет собой компактный металлический шкаф, внутри которого собрана вся необходимая аппаратура для реализации этой логики. Основными компонентами являются:

  • Коммутационные аппараты. Чаще всего это пара мощных контакторов с механической блокировкой (для исключения одновременного включения) или реверсивный автоматический выключатель.
  • Контроллер («мозг» системы). Специализированное реле контроля фаз или программируемый логический контроллер (ПЛК). Он непрерывно мониторит напряжение, частоту и последовательность фаз на обоих вводах.
  • Цепи защиты. Автоматические выключатели или предохранители для защиты силовых цепей и цепей управления.
  • Органы управления и индикации. Переключатель режимов «Авто/Ручной/Выкл.», кнопки, светосигнальные лампы, информирующие о состоянии системы.

Принцип работы основан на постоянном сравнении. Контроллер АВР отслеживает параметры основного ввода. При выходе напряжения за установленные пределы (например, падение ниже 170 В, превышение выше 250 В, обрыв фазы) он формирует команду: отключает контактор основного ввода, а после короткой технологической паузы включает контактор резервного ввода. Весь процесс занимает секунды, что делает устройство АВР незаменимым для питания ответственной нагрузки.

Назначение и технические особенности щита АВР 100А

Цифра 100А в обозначении щита АВР указывает на номинальный рабочий ток устройства. Это ключевой параметр, определяющий максимальную нагрузку, которую может коммутировать и защищать данная система. Щит АВР 100А предназначен для автоматического переключения между двумя независимыми трехфазными источниками питания с максимальным коммутируемым током до 100 Ампер.

Что это означает в практическом плане? При трехфазном напряжении 380В и стандартном коэффициенте мощности (cos φ) 0.9, такой шкаф АВР 100А способен обеспечить бесперебойное электроснабжение нагрузки общей мощностью примерно до 60 кВт. Это делает его одним из самых востребованных решений на рынке.

Конструктивные и технические особенности АВР на 100А:

  • Схема коммутации: Для токов до 100А оптимальной и наиболее распространенной является схема на трехполюсных контакторах с принудительной механической и электрической блокировкой. Она обеспечивает высокую скорость переключения, надежность и относительно низкую стоимость.
  • Блок управления: В качестве управляющего элемента чаще всего применяются реле контроля напряжения и фаз (такие как EL-11, EFR-01, Carlo Gavazzi). Они обладают необходимым набором функций: регулируемые пороги срабатывания по напряжению, настраиваемые задержки на включение/отключение, контроль чередования фаз.
  • Дополнительные функции: Многие щиты АВР 100А поддерживают функцию управления генератором (сигналы «Старт», «Стоп»). При пропаже сети контроллер отправляет команду на запуск резервной электростанции, дожидается выхода ее напряжения на номинал и только затем переключает нагрузку.
  • Исполнение: Обычно устройство монтируется в навесной металлический шкаф с защитной панелью. Степень защиты корпуса может быть IP31 для сухих отапливаемых помещений (щитовых) или IP54 для установки в условиях возможного попадания пыли и влаги (котельные, гаражи).

Основное назначение щита АВР 100А — обеспечить полную автономность и непрерывность электроснабжения объектов средней мощности, чувствительных к перебоям в сети.

Области применения шкафов АВР на 100А

Универсальность по мощности и надежность делают шкаф АВР 100А идеальным выбором для широкого спектра коммерческих, бытовых и промышленных объектов.

1. Частный сектор и загородная недвижимость:

  • Коттеджи и дома с высоким энергопотреблением: Это основная сфера применения. Щит АВР 100А прекрасно справляется с нагрузкой от электрического котла (15-25 кВт), системы теплых полов, водонагревателя, насосной станции, кухонного оборудования, кондиционеров и освещения. При отключении сети он автоматически запустит генератор и переключит на него весь дом.
  • Гостевые дома, мини-отели, фермерские хозяйства.

2. Коммерческая недвижимость и малый бизнес:

  • Небольшие офисные центры и бизнес-помещения: Обеспечение работы серверного оборудования, рабочих мест, систем безопасности и связи.
  • Торговые точки: Магазины, аптеки, салоны красоты. Защита холодильного оборудования, кассовых терминалов, систем видеонаблюдения от внезапных отключений.
  • Кафе и рестораны: Бесперебойная работа холодильных камер, плит, систем вентиляции, кассового узла.

3. Промышленность и инфраструктура:

  • Небольшие производственные цеха и мастерские: Питание станков, компрессоров, сварочного оборудования, систем ЧПУ.
  • Котельные и насосные станции: Критически важно для поддержания работы циркуляционных насосов, систем управления, предотвращения аварий и разморозки.
  • Медицинские кабинеты, стоматологии, лаборатории: Для питания диагностической и лечебной аппаратуры.
  • Телекоммуникационные шкафы и узлы связи.

Ключевые преимущества установки АВР 100А:

  • Полная автоматизация: Система работает самостоятельно, 24/7, не требуя присутствия человека.
  • Защита оборудования: Предотвращает поломки дорогостоящей техники из-за скачков напряжения, фазовых перекосов и «рывков» при ручном запуске генератора.
  • Комфорт и безопасность: В доме не гаснет свет, не отключается отопление, работают системы охраны. В бизнесе — не останавливаются процессы, не теряются данные.
  • Экономическая эффективность: Предотвращает убытки от простоя, порчи товаров (в холодильниках), срыва сделок.

Часто задаваемые вопросы (FAQ) по щитам АВР 100А

Как долго работает переключение АВР 100А?

Общее время переключения зависит от настроек и наличия генератора. При использовании готового резервного ввода (вторая линия) процесс занимает 1-5 секунд. Если система управляет генератором, к этому времени добавляется период запуска и выхода генсета на рабочий режим (обычно 10-30 секунд).

Что будет, если пропадет напряжение на резервном вводе (например, кончится бензин в генераторе)?

Контроллер АВР зафиксирует неисправность резервного источника. Нагрузка останется без питания. При восстановлении напряжения на приоритетном (основном) вводе система автоматически подключит его к потребителям.

Можно ли сделать АВР 100А для однофазной сети?

Да, существуют однофазные аналоги. Однако в маркировке тогда будет указан номинальный ток для одной фазы (например, 50А или 63А). Для однофазных нагрузок большой мощности (обычно свыше 15 кВт) часто целесообразнее переходить на трехфазное питание и использовать трехфазный АВР 100А.

Нужен ли отдельный вводной автомат перед щитом АВР?

Да, обязательно. Перед щитом АВР 100А на каждом вводе (основном и резервном) должен быть установлен собственный защитный автомат или рубильник. Это требование ПУЭ, необходимое для безопасного отключения всего щита для обслуживания и для дополнительной защиты кабельных линий.

Требуется ли обслуживание щита АВР?

Периодическое техническое обслуживание необходимо для долговечной и безотказной работы. Рекомендуется 1-2 раза в год: проводить визуальный осмотр, проверять затяжку силовых клемм, тестировать работу системы в ручном режиме и имитировать аварию основного ввода для проверки автоматического срабатывания.

Купить шкафы АВР 100А от производителя НТК Приборэнерго

Компания «НТК Приборэнерго» — это гарантия качества и надежности в производстве электрощитового оборудования. Компания предлагает профессиональные решения в области резервного электроснабжения, включая проектирование и изготовление щитов АВР 100А любой конфигурации.

Выгодные преимущества сотрудничества:

  • Индивидуальный подход. Каждый шкаф АВР собирается с учетом специфики вашего объекта, типа резервного источника (генератор, вторая линия) и ваших пожеланий к функционалу.
  • Качество сборки и комплектующих. Используется только сертифицированная аппаратура от проверенных производителей. Все монтажные работы выполняются квалифицированными специалистами в строгом соответствии с ПУЭ.
  • Исполнение на любой случай. Сборка щитов в корпусе с необходимой степенью защиты IP, нужного размера и цвета.
  • Гарантия и тестирование. Каждое устройство АВР перед отгрузкой проходит комплексное тестирование на специальном стенде, имитирующем все режимы работы. Официальная гарантия на все изделие.
  • Доставка «под ключ» по Москве и всей России.

Не ждите, пока авария в сети парализует ваш дом или бизнес. Примите упреждающие меры для обеспечения энергонезависимости.

Обратитесь к специалистам «НТК Приборэнерго» сегодня, чтобы получить детальную консультацию, расчет стоимости и заказать изготовление надежного щита АВР 100А, который станет гарантом стабильности и непрерывности вашего электроснабжения.