Найти в Дзене

Реверс ведра с отжимом

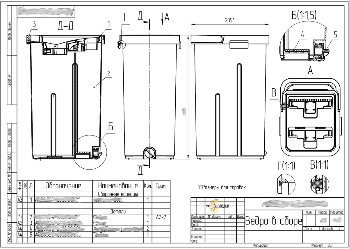
Продуктивной недели, коллеги! 🔧 Новый пример работы в портфолио: ведро с отжимом Заказчик обратился с запросом разработки чертежей на пластиковое ведро с отжимом и системой очистки, так как документация была утеряна. Наша задача была восстановить документацию в соответствии с образцом и внести изменения по размещению логотипа и информационных значков и адаптировать КД под европейские стандарты. ✅ Выходные данные: Конструкторская документация по ГОСТ и ISO в формате PDF, 3D-модели в формате STP 👉 Посмотреть пример полностью https://in-cad.ru/portfolio/vedro-s-otzhimom/ #портфолио #реверсинжиниринг #конструкторскаядокументация #чертежиназаказ #инкад #импортозамещение

Продуктивной недели, коллеги!

🔧 Новый пример работы в портфолио: ведро с отжимом

Заказчик обратился с запросом разработки чертежей на пластиковое ведро с отжимом и системой очистки, так как документация была утеряна. Наша задача была восстановить документацию в соответствии с образцом и внести изменения по размещению логотипа и информационных значков и адаптировать КД под европейские стандарты.

Образец изделия (ведра) для обратного инжиниринга
Образец изделия (ведра) для обратного инжиниринга

✅ Выходные данные:

Конструкторская документация по ГОСТ и ISO в формате PDF, 3D-модели в формате STP

👉 Посмотреть пример полностью https://in-cad.ru/portfolio/vedro-s-otzhimom/

#портфолио #реверсинжиниринг

#конструкторскаядокументация #чертежиназаказ #инкад #импортозамещение