Найти в Дзене

У нас в студии появилась отдельная услуга — «Консультация перед покупкой квартиры

». Это формат для тех, кто не хочет ошибиться с выбором и потом тратить деньги на переделки и неудачные метры. ​ Зачем нужна такая консультация. 🖇️Помогает трезво сравнить несколько вариантов, а не выбирать только по «красивому виду из окна».🪟 ​ 🖇️Сразу понятно, где есть потенциал для удобной планировки, а где вас ждут проблемы с расстановкой мебели, хранением, светом или перепланировкой. ​ 🖇️Экономит бюджет: вы вкладываетесь один раз в более удачную квартиру, а не платите дважды — за покупку и последующие переделки.🤑 ​ Как устроена услуга. Онлайн‑консультация — 5000 ₽ ➰Клиент присылает 3 планировки, которые ему нравятся (планы от застройщика/БТИ). ➰Рассказывает про образ жизни, привычки и состав семьи (кто живёт, дети, питомцы, как проводите время дома). ​ ➰На онлайн‑созвоне мы подробно разбираем каждую планировку: плюсы, минусы, возможности перепланировки, варианты расстановки мебели и хранения, потенциальные «узкие места». ​ В финале у клиента остаётся понимание, какая кварти

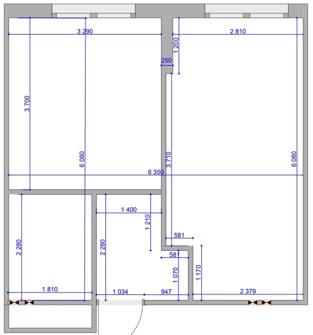
У нас в студии появилась отдельная услуга — «Консультация перед покупкой квартиры». Это формат для тех, кто не хочет ошибиться с выбором и потом тратить деньги на переделки и неудачные метры.

Зачем нужна такая консультация.

🖇️Помогает трезво сравнить несколько вариантов, а не выбирать только по «красивому виду из окна».🪟

🖇️Сразу понятно, где есть потенциал для удобной планировки, а где вас ждут проблемы с расстановкой мебели, хранением, светом или перепланировкой.

🖇️Экономит бюджет: вы вкладываетесь один раз в более удачную квартиру, а не платите дважды — за покупку и последующие переделки.🤑

Как устроена услуга.

Онлайн‑консультация — 5000 ₽

➰Клиент присылает 3 планировки, которые ему нравятся (планы от застройщика/БТИ).

➰Рассказывает про образ жизни, привычки и состав семьи (кто живёт, дети, питомцы, как проводите время дома).

➰На онлайн‑созвоне мы подробно разбираем каждую планировку: плюсы, минусы, возможности перепланировки, варианты расстановки мебели и хранения, потенциальные «узкие места».

В финале у клиента остаётся понимание, какая квартира подходит его сценарию жизни больше всего.

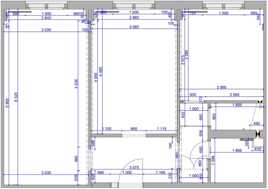
Выезд на объект — 5000 ₽

Когда заказчик определился с конкретной квартирой, возможен выезд дизайнера на объект.

🟠На месте оцениваем реальное состояние, геометрию, инженерные узлы, свет, нюансы, которые не видны на плане.

🟠Это помогает принять окончательное решение перед покупкой и понимать, во что вы реально инвестируете.

О каждой услуге студии будет отдельный подробный пост с примерами и разборами — следите за новостями, чтобы не пропустить разбор типичных ситуаций при выборе квартиры.

#КвАртАлОбъясняет

-2
-3