Добавить в корзинуПозвонить
Найти в Дзене

Электромонтаж в частном доме: Грамотное расположение розеток и выключателей в каждой комнате

Правильное распределение розеток и выключателей — это не просто вопрос удобства, а основа безопасной и комфортной жизни в доме на долгие годы. Плохо продуманная схема приводит к вечному дефициту свободных гнёзд, опасным удлинителям под ногами и неудобным поискам выключателя в темноте. Разберем золотые правила и конкретные рекомендации для каждой комнаты. Здесь важно разбить помещение на зоны и следовать принципу: «Розеток не бывает много». Главное — безопасность! Используется фурнитура со степенью защиты не ниже IP44. Итог: Лучшая стратегия — нарисовать подробный план каждого помещения в масштабе, расставить всю будущую мебель и технику, и только потом отмечать точки для розеток и выключателей. Учитывайте не только сегодняшние, но и завтрашние потребности. Помните: скупой при планировании электропроводки платит дважды — деньгами за переделку и нервами от неудобств.
Оглавление

Правильное распределение розеток и выключателей — это не просто вопрос удобства, а основа безопасной и комфортной жизни в доме на долгие годы. Плохо продуманная схема приводит к вечному дефициту свободных гнёзд, опасным удлинителям под ногами и неудобным поискам выключателя в темноте. Разберем золотые правила и конкретные рекомендации для каждой комнаты.

Общие принципы и правила безопасности

  1. Зонирование: Перед составлением схемы определите функциональные зоны в каждой комнате (рабочий стол, зона отдыха, место для телевизора, кухонный фартук).
  2. «Запас»: Количество розеток, рассчитанное на этапе проекта, стоит увеличить на 20-30%. Техники со временем становится только больше.
  3. Безопасность: Вся фурнитура должна соответствовать степени защиты IP (Ingress Protection):
    Для обычных сухих помещений: IP20 (защита от крупных частиц).
    Для ванных комнат, душевых, зон около раковин: IP44 (защита от брызг) и выше. Устанавливаются на расстоянии не менее 60 см от источников воды (ванна, душ, раковина).
    Для улицы, открытых балконов, неотапливаемых помещений: IP54-IP65.
  4. Высота установки:
    Выключатели:
    Стандарт — 80-90 см от чистого пола. Все выключатели на одном этаже должны быть на одной высоте.
    Розетки: Универсальный стандарт — 30 см от пола (так они менее заметны). Однако для рабочих зон (кухня, офис) высота определяется исходя из эргономики.

Распределение по комнатам

1. Прихожая / Холл

  • Выключатели: Один общий при входе (желательно двухклавишный: для света в прихожей и для общего света в соседнем помещении, например, в гостиной). Датчик движения для автоматического освещения — отличное решение.
  • Розетки:
    1-2 розетки на 30 см от пола для пылесоса, зарядки устройств, сушилки для обуви.
    Розетка для видеодомофона (обычно у двери).
    Розетка для Wi-Fi роутера, если здесь будет стоять коммутационный шкаф.

2. Гостиная / Зал

  • Выключатели: При входе в комнату (часто проходные, если несколько входов). Отдельные выключатели для зонального освещения (бра, подсветка TV-зоны).
  • Розетки:
    TV-зона:
    Блок из минимум 3-4 розеток + вывод для телевизионного (антенного) кабеля и интернета (UTP). Высота: 120-140 см от пола (за панелью телевизора).
    Диванная зона: По 1-2 розетки с каждой стороны дивана (для зарядки, торшера, ноутбука) на высоте 30 см или 15 см от уровня пола (встречается в современных интерьерах).
    Возле рабочих/хобби-зон: Для настольной лампы, принтера, зарядки гаджетов.

3. Спальня

  • Выключатели: Классика — общий выключатель у входа и светильники с выключателями у кровати (настенные или в розетках). Идеальное решение — проходные выключатели: один у двери, два по бокам кровати, чтобы лежа выключать весь свет.
  • Розетки:
    По бокам кровати:
    Блок из 2-3 розеток + USB-порты на высоте 70-90 см (над прикроватными тумбами) для ламп, гаджетов.
    У туалетного столика/комода: 1-2 розетки для фена, утюга.
    У рабочего стола (если есть): Блок розеток на высоте 30 см от пола или на уровне столешницы.

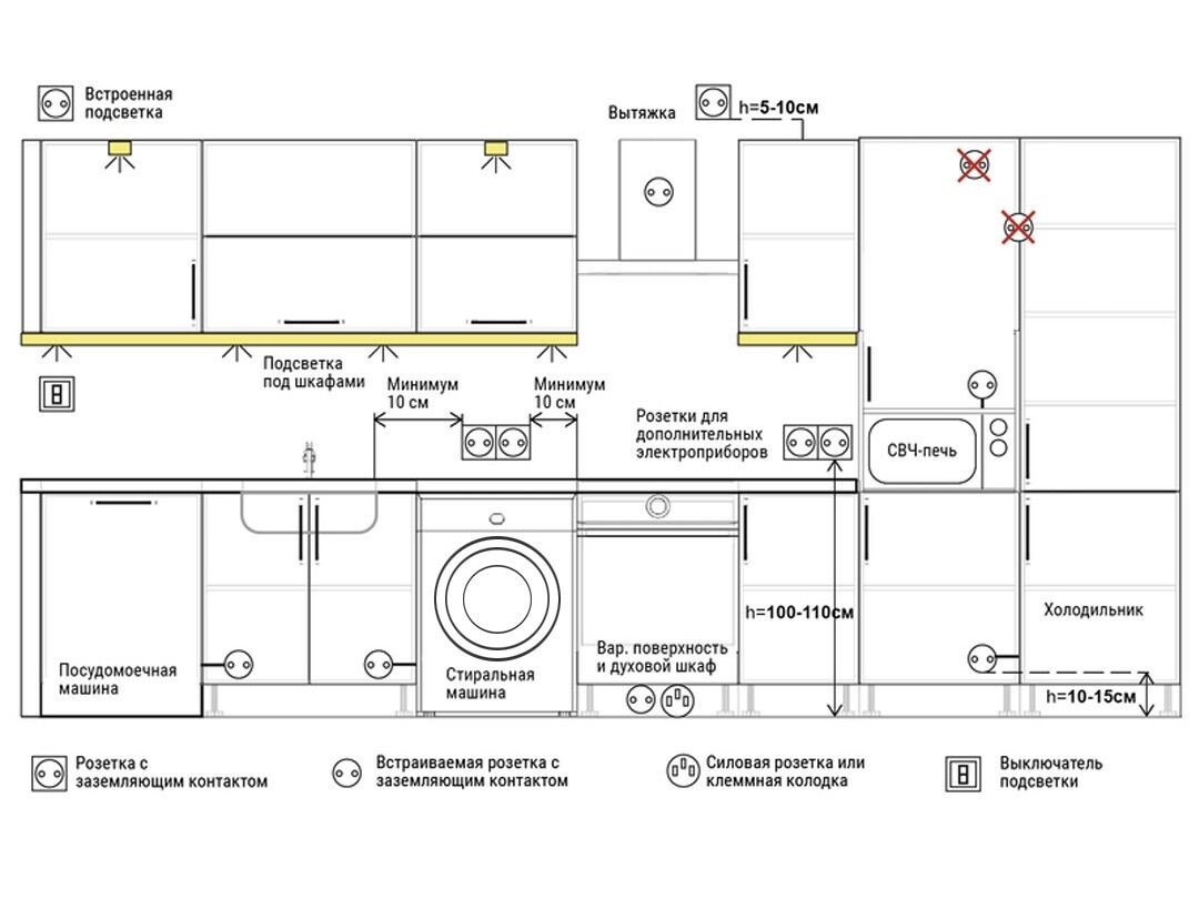
4. Кухня (самое ответственное место)

Здесь важно разбить помещение на зоны и следовать принципу: «Розеток не бывает много».

  • Выключатели: Общий у входа + отдельные для подсветки рабочей зоны и обеденной группы.
  • Розетки (требуется влагозащита IP44 для зоны мойки):
    Фартук рабочей зоны:
    Не менее 4-6 розеток с интервалом 90-120 см. Располагаются на высоте 105-115 см от пола (над столешницей). Это для чайника, кофемашины, блендера, миксера и т.д.
    Зона встраиваемой техники: Отдельные силовые розетки (16А) за соответствующими шкафами (не за самой техникой!) для:
    Варочной панели и духового шкафа (часто два отдельных вывода).
    Посудомоечной машины.
    Холодильника (можно обычную розетку).
    Вытяжки (обычно на высоте 180-200 см).
    Обеденная зона: 1-2 розетки на высоте 30 см для ноутбука, устройства для зарядки, праздничной иллюминации.

5. Ванная комната и санузел

Главное — безопасность! Используется фурнитура со степенью защиты не ниже IP44.

  • Зоны безопасности (ПУЭ 7.1.47-7.1.53):
    Зона 0
    (внутри ванны/душа): Любые электроприборы запрещены.
    Зона 1 (над ванной до 2.25 м): Только бойлеры и светильники для ванны (низкого напряжения).
    Зона 2 (на расстоянии 60 см от края ванны/душа): Розетки запрещены, можно светильники, вытяжки.
    Зона 3 (от 60 см до 2.4 м): Разрешены розетки, но только через УЗО на 30 мА и желательно с защитными шторками.
  • Выключатели: Располагаются снаружи, в коридоре или в зоне 3, если позволяет площадь.
  • Розетки:
    Для стиральной машины
    — отдельная влагозащищенная розетка (IP44) на высоте 30-50 см от пола, не прямо за машинкой, а сбоку.
    Для фена, бритвы, полотенцесушителя — 1-2 розетки у раковины на высоте 110-130 см от пола, на расстоянии не менее 60 см от края ванны/душа.
    Для бойлера/проточного водонагревателя — отдельная силовая розетка (IP44) в месте установки.

6. Кабинет / Рабочее место

  • Выключатели: Общий и у стола.
  • Розетки: Плотная концентрация! Планируйте блок из 6-8 розеток под или над столом:
    Для компьютера (системный блок, монитор), принтера, роутера.
    Для настольной лампы, зарядки гаджетов.
    Розетка для кондиционера/обогревателя (отдельная линия).

7. Хозяйственные помещения (котельная, гараж, мастерская)

  • Выключатели: У входа, снаружи помещения (если есть взрывоопасные пары).
  • Розетки: С расчетом на мощное оборудование (сварка, компрессор, станки). Много розеток на высоте 90-100 см. Используются влагозащищенные модели (IP44) и отдельные силовые линии с УЗО.

Итог: Лучшая стратегия — нарисовать подробный план каждого помещения в масштабе, расставить всю будущую мебель и технику, и только потом отмечать точки для розеток и выключателей. Учитывайте не только сегодняшние, но и завтрашние потребности. Помните: скупой при планировании электропроводки платит дважды — деньгами за переделку и нервами от неудобств.