Найти в Дзене
ДОМ с умом

Проект "Лана" - классический дом для семьи из трех человек

Коттедж отличается минимализмом архитектуры и простым, но в то же время, элегантным оформлением фасадов. Площадь дома 126,6 кв.м, планировка подходит для комфортной жизни семьи из трех человек. Общая площадь - 143 кв.м
Жилая площадь - 126,6
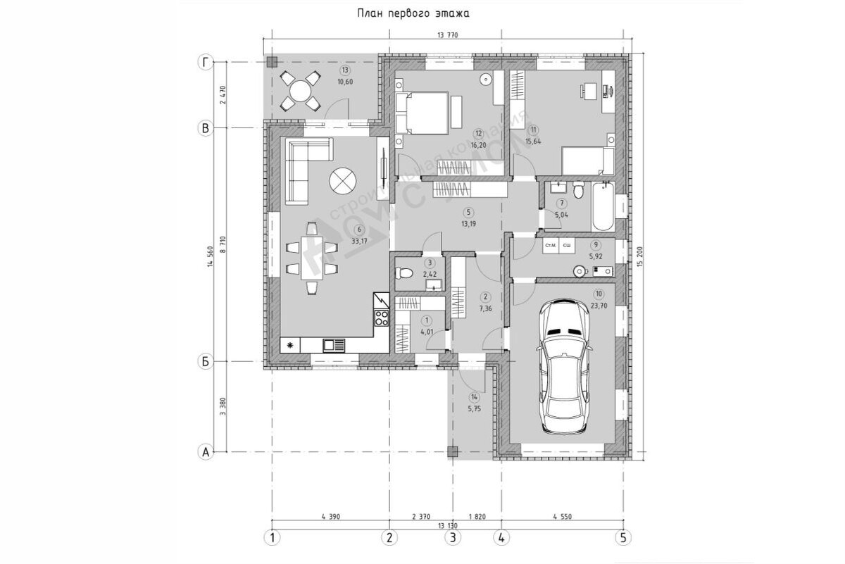
Габариты - 13,8 х 15,2 м
Фундамент: буронабивные сваи с ростверком
Стены: керамзитоблок 400 мм, утеплитель 100 мм
Отделка фасада: облицовочный кирпич
Перекрытия цоколя - полы по грунту, чердачное по деревянным балкам
Крыша - из металлочерепицы по деревянной стропильной системе. Центральное место в доме занимает кухня-гостиная. Это объединённое помещение, выполняющее несколько функций: зону для приготовления пищи, столовую и гостиную. Из неё открывается панорамный вид на задний двор и выход на террасу. Спальная зона включает две комфортабельные спальни,также в доме есть все необходимые хозяйственные помещения: котельная, гардеробная и гараж на 1 авто. 📌Жилая площадь - 126,6 кв.м
📌Кухня-гостиная – 33,1 кв.м
📌Спальни – 2 шт.
📌Терраса – 10,6 кв.м
Оглавление

Коттедж отличается минимализмом архитектуры и простым, но в то же время, элегантным оформлением фасадов. Площадь дома 126,6 кв.м, планировка подходит для комфортной жизни семьи из трех человек.

Характеристики:

Общая площадь - 143 кв.м
Жилая площадь - 126,6
Габариты - 13,8 х 15,2 м
Фундамент: буронабивные сваи с ростверком
Стены: керамзитоблок 400 мм, утеплитель 100 мм
Отделка фасада: облицовочный кирпич
Перекрытия цоколя - полы по грунту, чердачное по деревянным балкам
Крыша - из металлочерепицы по деревянной стропильной системе.

Планировка:

Центральное место в доме занимает кухня-гостиная. Это объединённое помещение, выполняющее несколько функций: зону для приготовления пищи, столовую и гостиную. Из неё открывается панорамный вид на задний двор и выход на террасу. Спальная зона включает две комфортабельные спальни,также в доме есть все необходимые хозяйственные помещения: котельная, гардеробная и гараж на 1 авто.

-2

📌Жилая площадь - 126,6 кв.м
📌Кухня-гостиная – 33,1 кв.м
📌Спальни – 2 шт.
📌Терраса – 10,6 кв.м

▪️▪️▪️▪️▪️▪️▪️▪️▪️▪️▪️▪️▪️▪️▪️▪️▪️▪️▪️▪️▪️▪️▪️▪️▪️▪️▪️▪️▪️▪️▪️▪️▪️

Стоимость проектной документации (серии АР, КР) - 27 000 руб.