Добавить в корзинуПозвонить
Найти в Дзене
KPD Дизайн Интерьера

Я давно хотела проговорить одну тему — потому что вопросы про смарт-планировки у меня звучат постоянно

Почему планировку лучше заказать у меня, а не у начинающего архитектора? Даже если у него красивое портфолио, МАРХИ, “3 года опыта” и всё такое. Потому что планировка — это не место для экспериментов. Это база. Фундамент. Ошибка в планировке = потом ошибки в ремонте, быту, хранении, инженерии. И это уже не история “ой, поправим”. Это история “переделывать дорого”. У меня много проектов, и физически я одна не могу вычерчивать всё сама. Поэтому я работаю с исполнителями — кто-то делает чертежи, кто-то 3Дэ, кто-то подключается на отдельные этапы. Исполнители бывают разные. И вот что важно: Я никогда не искала “идеальных”. Я искала нормальных, с которыми комфортно и которые "горят" дизайном также как я. Нормальный исполнитель должен уметь думать. Самостоятельно. Ответственно. С пониманием логики. И у меня здесь ключевая роль не “поставить задачу”, а сделать то, что умеют далеко не все: ✅ быстро понять, кто годится, а кто — нет. Если это новый человек. Потому что иногда “мало опыта”

Я давно хотела проговорить одну тему — потому что вопросы про смарт-планировки у меня звучат постоянно.

Почему планировку лучше заказать у меня, а не у начинающего архитектора?

Даже если у него красивое портфолио, МАРХИ, “3 года опыта” и всё такое.

Потому что планировка — это не место для экспериментов.

Это база. Фундамент.

Ошибка в планировке = потом ошибки в ремонте, быту, хранении, инженерии.

И это уже не история “ой, поправим”. Это история “переделывать дорого”.

У меня много проектов, и физически я одна не могу вычерчивать всё сама.

Поэтому я работаю с исполнителями — кто-то делает чертежи, кто-то 3Дэ, кто-то подключается на отдельные этапы.

Исполнители бывают разные. И вот что важно:

Я никогда не искала “идеальных”. Я искала нормальных, с которыми комфортно и которые "горят" дизайном также как я.

Нормальный исполнитель должен уметь думать. Самостоятельно. Ответственно. С пониманием логики.

И у меня здесь ключевая роль не “поставить задачу”, а сделать то, что умеют далеко не все:

✅ быстро понять, кто годится, а кто — нет. Если это новый человек.

Потому что иногда “мало опыта” выглядит так, что это уже не мало опыта, а профнепригодность.

В прошлом году я дала тестовое (оплачиваемое!) задание молодой исполнительнице: хороший вуз, красивое портфолио, “3 года опыта”.

Кто давно не искал работу, сейчас некоторые работодатели просят заполнить анкету перед самим собеседованием. Заполнение занимает больше часа, а в конце просят снять себя на видео и рассказать о себе. 😃☝🏻 то есть это явно больше часа подготовки.

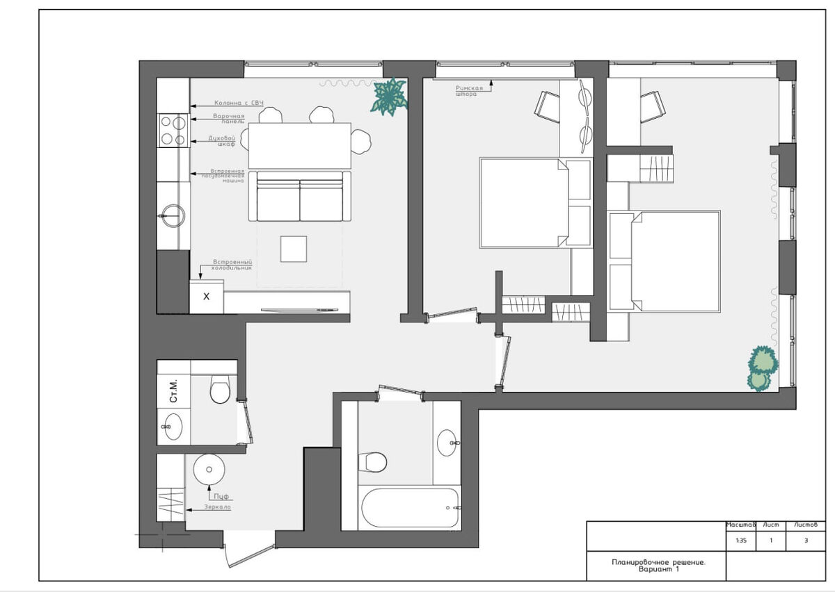
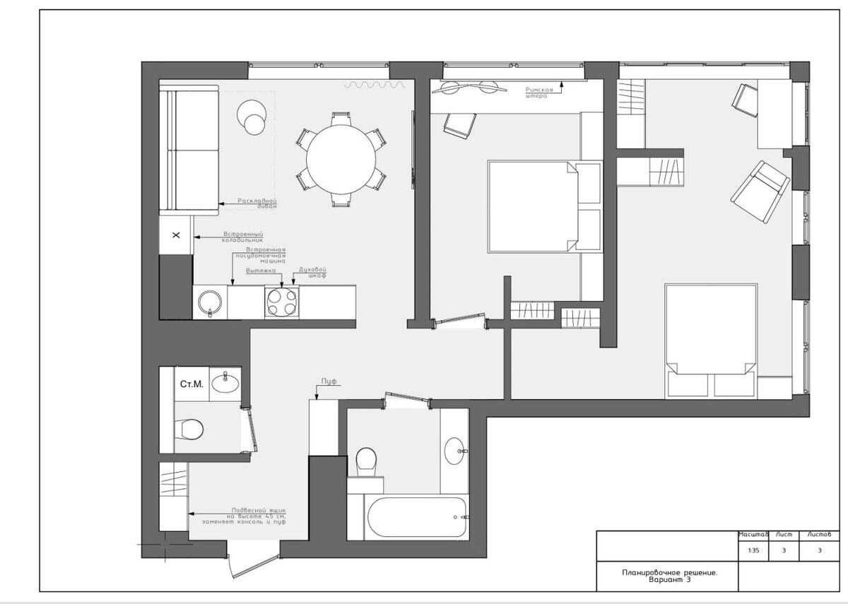
Задача была максимально адекватная: сделать планировочное решение для квартиры просто идеальной для планировочных решений: двушка + кухня-гостиная, мама и ребёнок.

Перепланировку не делаем. Стены остаются. Нужно просто грамотно распланировать жизнь семьи и хранение, добавить встроенные шкафы.

Критерии выполнения задания: планировка должна быть простая, легко реализуемая, с минимумом заказных мебельных позиций.

Через сутки я получаю варианты - они в фото к посту.

☝🏻 Шкаф для одежды глубиной 30 см.

Плечики требуют минимум 45–50 см.

То есть шкаф просто “нарисован”.

☝🏻 Кровать посреди комнаты 13 м², так что вокруг неё нужно обходить кругами.

Где хранение? Где переодеваться? Где жизнь? Или мы входим прямо на изголовье кровати. Банально не уютно.

То же самое в гостиной — мебель стоит так, как будто квартира выставочная, а не живая.

☝🏻 Унитаз с несколькими поворотами канализации под 90 градусов.

Инженерия так не работает.

Это потом не “ой”. Это потом засоры, проблемы и переделки.

И вот это — не вопрос вкуса и придирок типа "я бы сделала по-другому”. Это то, что так жить нельзя.

Потому что это ошибки, которые потом превращаются в ремонт, который люди переделывают и долго вспоминают.

☝🏻 И теперь самое главное:

Мне часто говорят: “Ну ты же можешь дотянуть исполнителя?”

Могу. И дотягивала. Но мне это не нужно. Зачем мне тратить время на обучение взрослого человека базовым вещам, еще и зарплату ему платить? Великий Гетсби умер...🥹

Потому что моя задача — не воспитывать специалистов.

Моя задача — чтобы ваш проект был сделан правильно, быстро и без сюрпризов.

И именно поэтому, когда вы заказываете смарт-планировку у меня, вы покупаете не только план. Вы покупаете мой опыт как фильтр.

Я умею:

🌱 за 1–2 дня понять, кто реально умеет работать, а кто просто красиво оформляет

🌱 видеть ошибки до того, как они станут “болью”

🌱 отсекать неопытность на входе

Планировка — это не про “красиво”.

Это про “удобно жить каждый день”.

🌱 Помимо того, что я сама могу отложить одно, чтобы самой сделать так, как будет точно удобно.

Нажмите "+", если хотите увидеть, жизненную планировку от меня 👌

Трости и гвозди

-2
-3