Добавить в корзинуПозвонить
Найти в Дзене
DIVAN.RU

Одноэтажный дом в Воронеже: 160 кв.м современной классики для жизни и отдыха

В этом доме будет жить семья из трех человек: супруги с пятилетней дочерью и любимый кот Шурик. Интерьер получился уютным и одновременно функциональным, с разумной эргономикой. Заглянем в гости. Одноэтажный дом был куплен с черновой отделкой и стандартной планировкой. Здесь есть просторная кухня-гостиная, мастер-спальня с мастер-санузлом, отдельная детская спальня и выделенная игровая зона. 42-метровая комната разделена на кухню с островом и обеденной зоной, а также гостиную. Скрытая дверь ведет из кухни в кладовку-постирочную. Шкаф-витрина у окна с подсветкой «облегчает» конструкцию. В простенке между окнами расположен высокий шкаф с антресолями. Обратите внимание: для фартука кухни использовали керамогранит из той же коллекции, что и напольное покрытие, что позволило избежать цветовых и фактурных несоответствий. Прием: акцентная стена за телевизором в гостиной оформлена рейками из ЛДСП и мебельным листом под камень. Тумба под ТВ, стеллаж и шкаф изготовлены из тех же материалов. Это п
Оглавление

В этом доме будет жить семья из трех человек: супруги с пятилетней дочерью и любимый кот Шурик. Интерьер получился уютным и одновременно функциональным, с разумной эргономикой. Заглянем в гости.

  • Объект: дом 160 кв.м в п. Отрадное, Воронежская область (потолки 3 м)
  • Автор проекта: дизайнер Анастасия Воронина, автор фото Анастасия Кобелева
  • Бюджет: 7 млн рублей

Пожелания заказчиков

  • Современный интерьер в графитовых и бежевых оттенках.
  • Эргономичные системы хранения.
  • Обустроить санузлы с учетом существующей разводки.

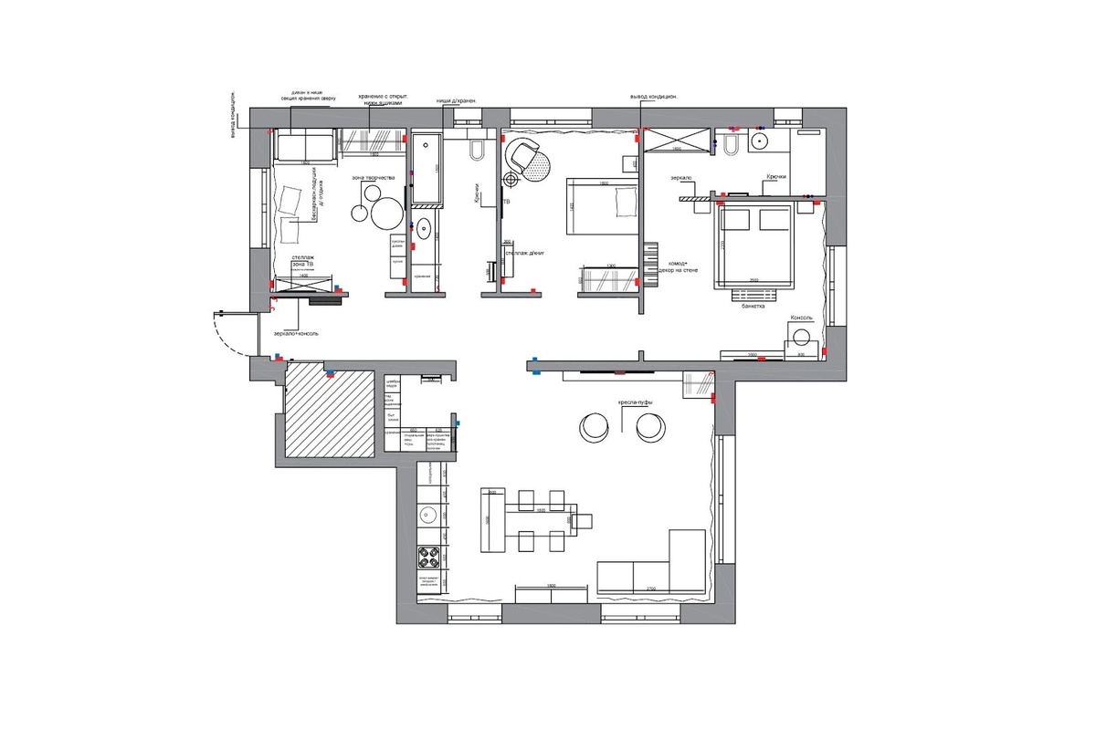
Планировочное решение

Одноэтажный дом был куплен с черновой отделкой и стандартной планировкой. Здесь есть просторная кухня-гостиная, мастер-спальня с мастер-санузлом, отдельная детская спальня и выделенная игровая зона.

Планировочное решение и расстановка мебели
Планировочное решение и расстановка мебели

Кухня-гостиная

42-метровая комната разделена на кухню с островом и обеденной зоной, а также гостиную. Скрытая дверь ведет из кухни в кладовку-постирочную. Шкаф-витрина у окна с подсветкой «облегчает» конструкцию. В простенке между окнами расположен высокий шкаф с антресолями.

Обратите внимание: для фартука кухни использовали керамогранит из той же коллекции, что и напольное покрытие, что позволило избежать цветовых и фактурных несоответствий.

Прием: акцентная стена за телевизором в гостиной оформлена рейками из ЛДСП и мебельным листом под камень. Тумба под ТВ, стеллаж и шкаф изготовлены из тех же материалов. Это подчеркивает единство композиции.

Угловой диван Спейс от divan.ru в гостиной — семейный центр притяжения. Удобный, стильный, с мягкими формами. Особо ценю divan.ru за обширный выбор тканей и оттенков, что незаменимо для создания сложных интерьеров с тонкой игрой полутонов и фактур.

➡️Товары бренда divan.ru

Мастер-спальня

«Главной целью при обустройстве спальни было создание спокойной, умиротворяющей обстановки. Шоколадные тона текстиля и рельефная штукатурка стен гармонично сочетаются, а приглушенное освещение и плотные шторы создают камерную атмосферу для комфортного отдыха», — делится автор проекта.

Мастер-санузел

Санузел при спальне отделан темным серым керамогранитом. Функциональное хранение обеспечивают тумба под раковиной и полка над унитазом. Графитовые смесители, профиль душевой и полотенцесушитель расставляют акценты.

Обратите внимание на вариативность освещения: от камерного теплого до яркого дневного.

Детская спальня и игровая

Спальня девочки была оформлена в стиле принцессы. Стены украшены перламутровыми обоями. За изголовьем кровати Молсон от divan.ru размещена полукруглая панель с подсветкой. Полусферы также использованы в дизайне шкафа и прикроватного столика. Теплый розовый цвет способствует созданию уютной и девичьей атмосферы.

Деталь: чтобы сделать потолки визуально выше, кант портьеры был «перенесен» на стену в виде окрашенного в тот же цвет потолочного карниза.

Хозяйка комнаты полюбила кресло Тилар от divan.ru, особенно его обивку из искусственного меха.
Кресло Тилар divan.ru
Кресло Тилар divan.ru

➡️Товары бренда divan.ru

Чтобы создать для девочки идеальное место для игр и отдыха, игровую зону отделили от спальни. Для этого у окна установили диван Слипсон Мини от divan.ru, который легко трансформируется в спальное место.

Обратите внимание: рисунок на обоях с  маленькими лисичками придает комнате очарование и создает ощущение детской беззаботности.

Прихожая

Прихожая светлая, с ярким освещением. Реечная стена создает динамику. Крупноформатный керамогранит на полу практичен и оттеняет стены.

Основной санузел

В санузле использовали три вида керамогранита: акцентный гофрированный у зеркала и на полках, с фактурой камня и бежевый основной на полу и стене. Санузел оснащен ванной, подвесной тумбой, шкафом для хранения. Освещение обеспечивают круглое зеркало с подсветкой и потолочные светильники.

😴 Спать гораздо приятнее, когда знаешь, что купил все со скидками. Выбирайте кровать и матрас комплектом с дополнительной скидкой -15% на divan.ru >>

-12

============================

Оцените интерьер в комментариях, а если материал понравился — не забудьте поставить лайк👍

🖤divan.ru — не только блог про интерьеры, но и производитель доступной дизайнерской мебели. Ищите новые идеи и переходите на сайт, чтобы воплотить их в жизнь.

*Цены указаны на момент публикации