Найти в Дзене

Представляем наш новый проект — МС-77!

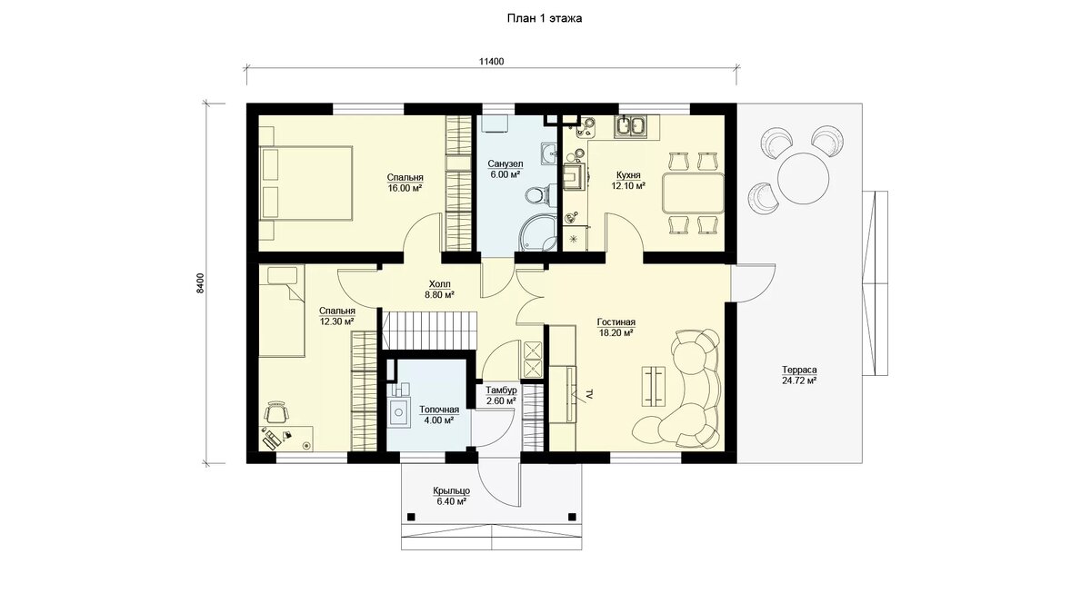
Это небольшой и уютный одноэтажный дом площадью 80 м² (8x11), идеально подходящий для семей из 3-4 человек. В нем есть 2 спальни, двускатная крыша и просторный чердак — всё, чтобы создать комфортное пространство для вашей семьи. 🏠 Планировка дома МС-77: Тамбур + техпомещение для отопительного оборудования Небольшой холл (8,8 м²) с лестницей на чердак Две спальни (12,3 м² и 16 м²) Ванная комната (6 м²) Гостиная (18,2 м²) с выходом на террасу (26,4 м²) Кухня (12,1 м²) Высота потолков: 2.73 м 🔧 В проекте есть возможность вариантов перепланировки: объединение спален, расширение техпомещения и другие идеи, чтобы сделать дом максимально удобным под ваши нужды. 🌟 Хотите узнать больше о проекте МС-77? Перейдите по ссылке: https://benpan.ru/project/ms-77-odnoehtazhnyj-dom-s-dvuskatnoj-kryshej/
📞 Звоните прямо сейчас: +7 (495) 260-98-32 А какой дизайн дома мечтаете вы? Поделитесь в комментариях! 💬✨ #домМечты #строительство #частныйдом #проектыдомов #уютныйдом #минимализм #загороднаяжизнь

Это небольшой и уютный одноэтажный дом площадью 80 м² (8x11), идеально подходящий для семей из 3-4 человек. В нем есть 2 спальни, двускатная крыша и просторный чердак — всё, чтобы создать комфортное пространство для вашей семьи.

-2
-3
-4
-5

🏠 Планировка дома МС-77:

Тамбур + техпомещение для отопительного оборудования

Небольшой холл (8,8 м²) с лестницей на чердак

Две спальни (12,3 м² и 16 м²)

Ванная комната (6 м²)

Гостиная (18,2 м²) с выходом на террасу (26,4 м²)

Кухня (12,1 м²)

Высота потолков: 2.73 м

🔧 В проекте есть возможность вариантов перепланировки: объединение спален, расширение техпомещения и другие идеи, чтобы сделать дом максимально удобным под ваши нужды.

🌟 Хотите узнать больше о проекте МС-77? Перейдите по ссылке: https://benpan.ru/project/ms-77-odnoehtazhnyj-dom-s-dvuskatnoj-kryshej/

📞 Звоните прямо сейчас: +7 (495) 260-98-32

А какой дизайн дома мечтаете вы? Поделитесь в комментариях! 💬✨

#домМечты #строительство #частныйдом #проектыдомов #уютныйдом #минимализм #загороднаяжизнь #МС77