Добавить в корзинуПозвонить
Найти в Дзене

Кубинский вайб в московской квартире

Как то мне ко мне обратились заказчики из ЖК Сердце Столицы, в котором я уже реализовала полноценный проект. Они увидели его в моем блоге. На тот момент черновой ремонт был завершен, стадия "подготовка под чистовую отделку". Мне предстояло декорировать квартиру. Заказчик мой обожает Кубу и сразу заявил, что хотел бы квартиру с таким вайбом. Я ликовала -ведь я тоже это все очень люблю. В детстве я жила на острове Свободы несколько лет с родителями (папа там был в длительной командировке). И кто же, как не я, знает очень много о том, какое настроение должно быть в этой квартире? Однако тут важно было не перестараться и не создать декорации к фильму. Это должна быть уютная, в первую очередь, комфортная квартира. И только детали, форма некоторых предметов мебели, текстуры, цвета должны навевать тот самый колорит. Мною было предложена такая подборка для общих зон: 🧿 Уже с порога эта квартира окутывает атмосферой кубинского колорита. Маленькая плитка с контрастным черно-белым рисунком с

Декорирование квартиры для небольшой семьи

Как то мне ко мне обратились заказчики из ЖК Сердце Столицы, в котором я уже реализовала полноценный проект. Они увидели его в моем блоге. На тот момент черновой ремонт был завершен, стадия "подготовка под чистовую отделку".

Мне предстояло декорировать квартиру. Заказчик мой обожает Кубу и сразу заявил, что хотел бы квартиру с таким вайбом. Я ликовала -ведь я тоже это все очень люблю. В детстве я жила на острове Свободы несколько лет с родителями (папа там был в длительной командировке). И кто же, как не я, знает очень много о том, какое настроение должно быть в этой квартире?

Однако тут важно было не перестараться и не создать декорации к фильму. Это должна быть уютная, в первую очередь, комфортная квартира. И только детали, форма некоторых предметов мебели, текстуры, цвета должны навевать тот самый колорит.

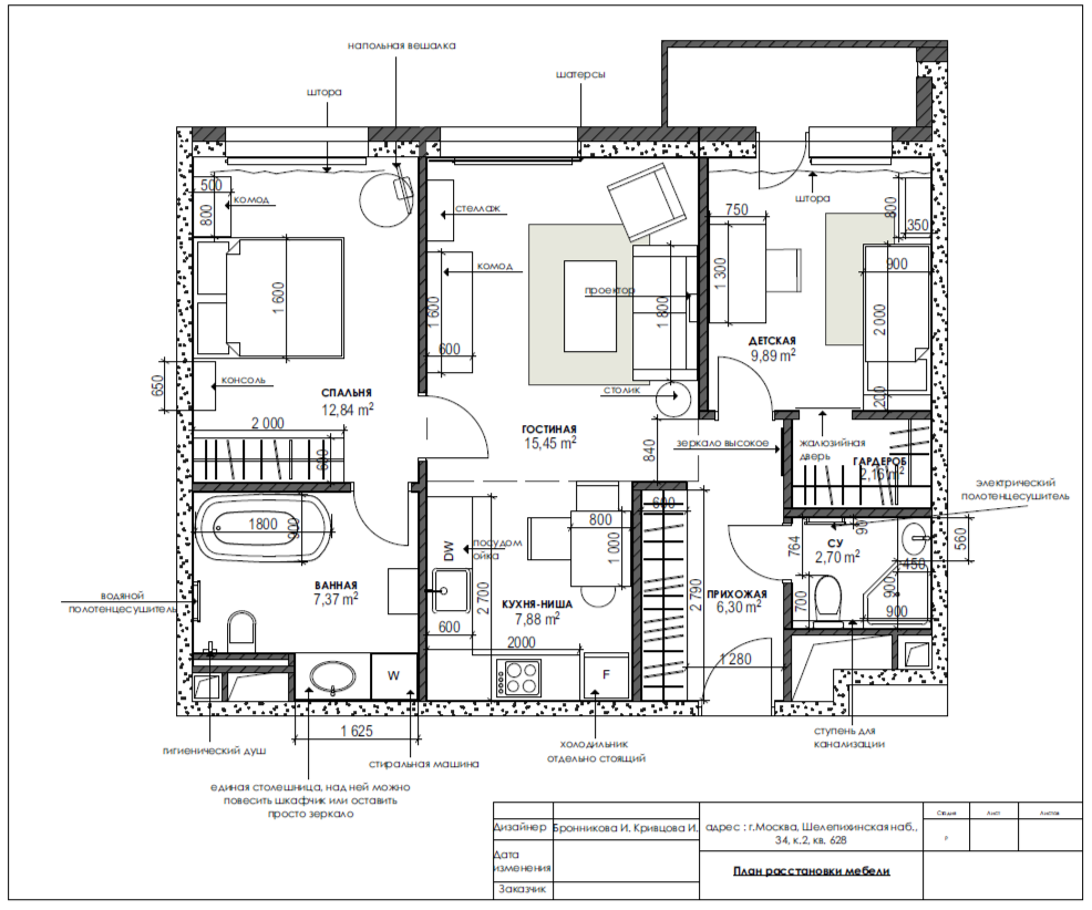
Мною было предложена такая подборка для общих зон:

🧿 Уже с порога эта квартира окутывает атмосферой кубинского колорита. Маленькая плитка с контрастным черно-белым рисунком создает нужное настроение, а плетеный светильник, зеркало в винтажной раме и жалюзийные дверцы шкафа добавляют интерьеру неповторимый шарм, словно перенося в эпоху процветания и роскоши.

🧿 В маленьком санузле хозяева могут ощутить атмосферу роскошной латиноамериканской жизни, словно перенесенной из лучших особняков - дерево, красивая плитка, ковка и классические формы санфаянса.

🧿 Кухонный гарнитур имеет простую форму, но мы снова видим ту же очаровательную плитку на полу и роскошные гнутые стулья. Светильник -вентилятор тут же намекает на жаркий климат.

🧿 В гостиной мы встречаем необычную мебель - плетенный диван, резной комод, уютное кресло, в которое так и хочется забраться с ногами. Но самое интересное тут кроется в деталях: винтажная ширма с кофейным столиком и жалюзи на окнах. Они то и "делают" весь интерьер! Забегая вперед, скажу, что с этими жалюзи заказчику пришлось повозиться. Долго не могли найти производителей, чтобы и цена устроила, и качество. Но результат того стоил!

Давайте рассмотрим приватные зоны:

🧿 В спальне хозяев я предложила акцентную стену с полосками нюансных цветов. Я обожаю этот прием, наверное, вы заметили? Даже у себя дома такое сделала. Тут более простая обстановка, но тем не менее, мы считываем все тот же латиноамериканский вайб.

🧿 Мастер ванная решена по тому же принципу, что и маленький санузел - дерево, классическая форма унитаза, колоритная плитка.

🧿 Детская комната расцветает тропической атмосферой, благодаря обоям с пышной южной зеленью, создающим ощущение оазиса. Жалюзи на окнах, гнутый стул, кованая софа и люстра-вентилятор добавляют интерьеру экзотический шарм.

Как вам такой проект, понравился? Если хотите себе нечто похожее или что-то уникальное, пишите мне, я обязательно вам помогу!