Найти в Дзене
AI это просто

AI дизайн интерьера

Хочется обновить интерьер квартиры, офиса или дачи, но мысль о найме дизайнера пугает. Расскажи про более удобный вариант, он конечно не даст готовый дизайн проект с ссылками на товары и чертежами, но может дать пример как обставить квартиру, дачу, офис и уже самостоятельно искать мебель материалы на маркетплейсах. Речь пойдет про генерацию интерьера через AI, покажу на примере. Допустим, у нас есть общая схема нашей квартиры: Заходим в бота для генерации изображений, и пишем ему такой промт: Based on the uploaded 2D floor plan, generate a professional interior design presentation board in a single image. Layout : The final image should be a collage with one large main image at the top, and several smaller images below it. Content of Each Panel : 1. Main Image (Top) : A wide-angle perspective view of the main living area , showing the connection between the living room and dining area. 2. Small Image (Bottom Left) : A view of the Master Bedroom , focusing on the bed and window. 3. Sma

Хочется обновить интерьер квартиры, офиса или дачи, но мысль о найме дизайнера пугает.

  1. Это не дешево
  2. Это долго, нужно мониторить кучу исполнителей, читать отзывы
  3. Результат не всегда ожидаем

Расскажи про более удобный вариант, он конечно не даст готовый дизайн проект с ссылками на товары и чертежами, но может дать пример как обставить квартиру, дачу, офис и уже самостоятельно искать мебель материалы на маркетплейсах.

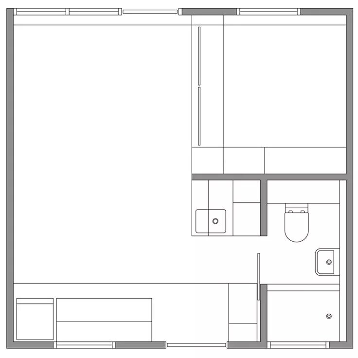
Речь пойдет про генерацию интерьера через AI, покажу на примере. Допустим, у нас есть общая схема нашей квартиры:

Схема квартиры
Схема квартиры

Заходим в бота для генерации изображений, и пишем ему такой промт:

Based on the uploaded 2D floor plan, generate a professional interior design presentation board in a single image. Layout : The final image should be a collage with one large main image at the top, and several smaller images below it. Content of Each Panel :

1. Main Image (Top) : A wide-angle perspective view of the main living area , showing the connection between the living room and dining area.

2. Small Image (Bottom Left) : A view of the Master Bedroom , focusing on the bed and window.

3. Small Image (Bottom Right) : A 3D top-down floor plan view showing the furniture layout. Overall Style : Apply a consistent Modern Minimalist style with warm oak wood flooring and off-white walls across ALL images. Quality : Photorealistic rendering, soft natural lighting.

Получаем готовый результат меньше чем за минуту:

Как минимум мы получили вариант расстановки мебели в квартире, можно поиграться с промтом и добиться результата с конкретными цветами, материалами.

Еще пример использования, возьмем фото обычной комнаты и попробуем изменить интерьер

Комната
Комната

Напишем вот такой промт:

Redesign this bedroom photo in Scandinavian style: light wood furniture, neutral colors, lots of natural light, cozy textiles, high detail, photorealistic

Результат:

Для генерации дизайн интерьера я использовал бот в Telegram. Включайте фантазию, изменяйте готовые промты под свои запросы, создавайте свои промты (можно написать просто русским текстом).

Делитесь своими вариантами :)