Найти в Дзене

Хранение в доме: где чаще всего не хватает места

Одна из самых частых проблем, которую мы слышим от владельцев загородной недвижимости:
«Вроде дом большой, а места всё равно не хватает».
Проблема почти всегда не в метраже, а в том, что зоны хранения либо не продуманы, либо их изначально недооценили. Делимся наблюдениями из практики — где чаще всего возникает дефицит места и как этого избежать ещё на этапе проектирования дома.
Прихожая: главный

Одна из самых частых проблем, которую мы слышим от владельцев загородной недвижимости:

«Вроде дом большой, а места всё равно не хватает».

Проблема почти всегда не в метраже, а в том, что зоны хранения либо не продуманы, либо их изначально недооценили. Делимся наблюдениями из практики — где чаще всего возникает дефицит места и как этого избежать ещё на этапе проектирования дома.

Прихожая: главный «узкий» участок

Даже в большом доме прихожая часто оказывается самой перегруженной зоной.

Чего обычно не хватает:

- места для сезонной одежды;

- хранения обуви (особенно зимней);

- шкафов для гостей;

- отдельного пространства для сумок, рюкзаков, детских вещей.

В итоге куртки и обувь «расползаются» по дому.

Мы всегда рекомендуем закладывать полноценную гардеробную при входе, а не ограничиваться шкафом-купе.

-2

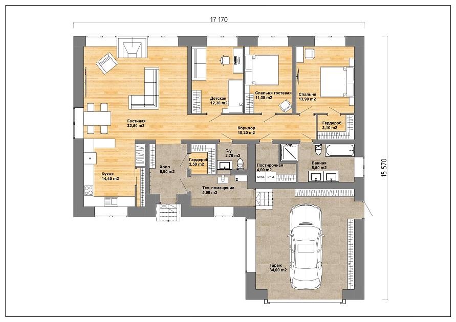
Обратите внимание, на наш дом «Бора», он сочетает в себе сразу несколько зон: гардероб в прихожей, гардероб в спальне, зону хранения для кухни!  

На этапе проектирования мы можем:

- заложить гардеробные;

- продумать кладовые;

- распределить хранение по зонам;

- организовать чердачное место где можно хранить же старые вещи, которые жалко вбрасывать;

- сделать дом удобным для жизни, а не только красивым.  

Кухня: техника есть, а хранить некуда

Кухня — одна из самых насыщенных зон по количеству вещей.

-3

-4

Чаще всего не хватает места для:

- крупной техники (мультиварки, миксеры, кофемашины);

- запасов продуктов;

- бытовой химии;

- редко используемой посуды.

Решение — это не только большие кухни, но и:

• кладовая рядом с кухней;

• продуманная высота и глубина шкафов;

• отдельные зоны хранения для техники.

Кладовая: «вроде не нужна», но потом очень нужна

Кладовую часто вычеркивают из проекта, чтобы сэкономить метры.

А потом именно её и не хватает.

В кладовой обычно хранят:

- консервацию;

- бытовые запасы;

- мелкую технику;

- сезонные вещи.

Даже 2–3 м² кладовой могут снять огромную нагрузку со всего дома.

Например, в нашем доме «Ирбис» предусмотрена отдельная кладовая, где модно разместить всё необходимое. 

-5

-6

-7

Такая кладовая расположена рядом с кухней, что для многих хозяек будет очень удобно 

Хозяйственные помещения и постирочная

Стиральная машина в ванной — это удобно, но недостаточно.

Чего обычно не хватает:

- места для хранения бытовой химии;

- гладильной доски;

- сушилки;

- корзин для белья.

Отдельная постирочная или хозблок делает дом визуально чище и избавляет от хаоса в санузлах.

Спальни и детские: «потом разберёмся» не работает

В спальнях часто:

- недооценивают количество одежды;

- не закладывают гардеробные;

- делают слишком маленькие шкафы.

В детских ситуация ещё сложнее — дети растут, вещей становится больше, появляются игрушки, спортинвентарь, учебные принадлежности.

Мы всегда советуем:

• либо полноценную гардеробную,

• либо заранее продуманные встроенные системы хранения.

Идеальным решением будет сочетание мастер-спальни, например как в нашем доме «Арси»

-8

-9

-10

Санузлы: мелочь, которая создаёт беспорядок

В санузлах не хватает:

- мест для полотенец;

- бытовой химии;

- запасов косметики;

- скрытых шкафчиков.

В результате всё стоит на виду, и даже дорогой интерьер выглядит перегруженным.

Гараж и котельная — не «склад всего подряд»

Гараж и котельную часто используют как универсальный склад, но без систем хранения там быстро появляется хаос.

Часто не хватает:

- стеллажей;

- закрытых шкафов;

- зон для инструментов и садового инвентаря.

Эти помещения тоже нужно проектировать, а не оставлять «на потом».

Почему важно продумывать хранение ещё на этапе проекта

Когда дом уже построен, возможности ограничены.

А на этапе проектирования мы можем:

- заложить гардеробные;

- продумать кладовые;

- распределить хранение по зонам;

- сделать дом удобным для жизни, а не только красивым.

Именно поэтому мы всегда обсуждаем с заказчиками образ жизни, состав семьи и привычки — чтобы через несколько лет не пришлось думать, куда деть вещи.