Найти в Дзене
Сканди | Интерьер

Всего 26 лет, а уже живет в такой квартире! Показываю однушку с невероятным видом на Москву

Эта 1-комнатная квартира в одной из новостроек на Дмитровском проезде в Москве удивляет своим строгим интерьером и нестандартной планировкой. На небольшой площади удалось разместить все необходимое, а спальня спроектирована так, что хозяйка каждое утро просыпается с красивым видом на столицу — панорамное окно находится напротив кровати. Кто и как здесь живет? Расскажу чуть ниже. На фото выше: так выглядит дом, в который мы с вами сегодня заглянем. Площадь квартиры 35 квадратных метров. Она расположена в жилом комплексе из трех небоскребов высотой от 30 до 60 этажей. Судя по свежим объявлениям на ЦИАН, стоимость квартир здесь начинается от 21 миллиона рублей за студию и 23 миллионов рублей за однушку. Хозяйка этой 1-комнатной квартиры — 26-летняя девушка, работающая на руководящей должности в банковской сфере. Кстати, этот факт сильно удивил подписчиков в моем Телеграм-канале. Вот что пишут люди: «В 26 лет — руководитель в банковской сфере в Москве? Мои поздравления, такая стремительная

Эта 1-комнатная квартира в одной из новостроек на Дмитровском проезде в Москве удивляет своим строгим интерьером и нестандартной планировкой.

На небольшой площади удалось разместить все необходимое, а спальня спроектирована так, что хозяйка каждое утро просыпается с красивым видом на столицу — панорамное окно находится напротив кровати.

Кто и как здесь живет? Расскажу чуть ниже.

На фото выше: так выглядит дом, в который мы с вами сегодня заглянем.

Площадь квартиры 35 квадратных метров. Она расположена в жилом комплексе из трех небоскребов высотой от 30 до 60 этажей. Судя по свежим объявлениям на ЦИАН, стоимость квартир здесь начинается от 21 миллиона рублей за студию и 23 миллионов рублей за однушку.

Хозяйка этой 1-комнатной квартиры — 26-летняя девушка, работающая на руководящей должности в банковской сфере. Кстати, этот факт сильно удивил подписчиков в моем Телеграм-канале.

Вот что пишут люди:

«В 26 лет — руководитель в банковской сфере в Москве? Мои поздравления, такая стремительная карьера! Наверное, она гений в банковском деле. И, наверное, она так устает от людей и работы, что дома хочется только прийти и упасть в кровать, не отвлекаясь ни на что».

И вердикт большинства по поводу интерьера — отрицательный. Почти никому не понравилось, как выглядит квартира. А мне она приглянулась. Спокойный, умиротворенный интерьер. И очень классная планировка для 35 квадратов.

Поэтому буду с нетерпением ждать ваших комментариев. Понравится ли вам ремонт?

Эту однушку девушка купила с отделкой от застройщика. Зонирование и интерьер пришлось продумывать с нуля (эту задачу взяла на себя дизайнер интерьеров Юлия Баршевская).

-2

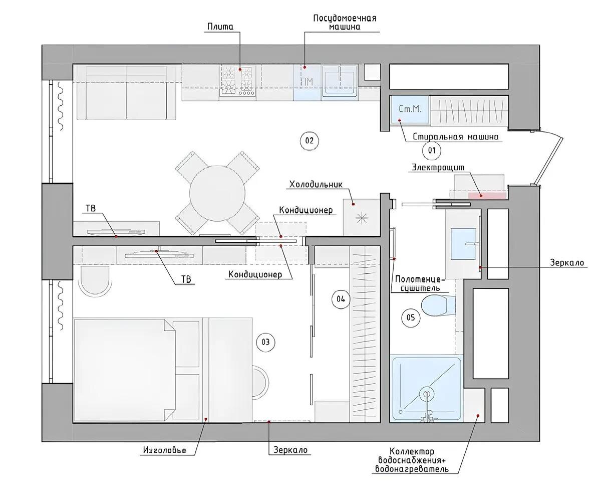
В изначальной планировке от застройщика в квартире предполагалось 2 маленьких комнаты. Хозяйка захотела сделать отдельную спальню с гардеробной, а кухню объединить с гостиной — получилось просторное пространство для отдыха.

Гардеробную обустроили на месте прежнего коридора, который вел из прихожей в одну из комнат.

Из-за специфики компании хозяйка квартиры часто работает удаленно, поэтому она попросила предусмотреть в квартире полноценное рабочее место.

Как она живет на 50-м этаже (с ума сойти!) с красивым видом на Москву — смотрите ниже.

-3

Площадь кухни — 14 квадратов. За счет объединения двух пространств удалось создать просторное помещение с несколькими функциональными зонами.

-4

Хозяйка захотела обустроить квартиру в сдержанном стиле: минимум вещей и декора, никаких ярких предметов.

Также она попросила дизайнера не использовать оттенки «желтого» дерева в интерьере (это ее нелюбимый цвет).

-5

Особенность кухонного гарнитура — фартук из состаренного зеркала, в котором отражается солнечный свет и роскошный вид из окна.

-6

Рядом с панорамным окном разместили зону отдыха с небольшой оттоманкой. Здесь можно читать книги, отдыхать с чашкой кофе или работать за ноутбуком.

-7

Этот комод напротив зоны отдыха приспособили под дополнительное хранение.

-8

Кровать разместили таким образом, чтобы с нее открывался панорамный вид на Москву. Слева виден строящийся дом, на сегодняшний день стройка уже закончена.

-9

Под спальню выделили также 14 квадратных метров.

По функционалу комнату разделили на 3 части: вместительная гардеробная со встроенными шкафами за стеклянными перегородками, рабочее место (оно находится за изголовьем кровати) и спальное место.

-10

Удалось даже найти место для макияжа с зеркалом и подсветкой. Туалетный столик гармонично вписан в интерьер и является частью встроенного многофункционального стеллажа.

-11

Так выглядит рабочее место, где хозяйка квартиры работает за ноутбуком. Автор картины на стене — современный художник Егор Левко.

Все три зоны в спальне дополнительно выделены цветом не только на стенах, но и на потолке. Это видно на фотографии выше.

«Спальное место целиком выделено оттенком индиго. Это любимый цвет хозяйки. А рабочее место имеет скругление, которое «отражается» скруглением серого пятна на потолке. Такие детали создают ощущение по-настоящему индивидуального дизайна, как скроенное по фигуре у портного пальто», — объясняет дизайнер.
-12

Для санузла выбрали благородный монохром. Но такую цветовую гамму вряд ли можно назвать скучной: здесь много разных фактур.

Помимо этого удалось продумать незаметные места хранения. Их фасады сливаются по цвету со стенами, за счет этого достигается эффект невидимости.

-13

В шкафу прихожей разместили стирально-сушильную машинку, для которой не нашлось места в санузле.

Вот такая интересная квартира на 50-м этаже в Москве.

💬 Какой вердикт вынесете, дорогие подписчики? Интересно посмотреть, как разделятся мнения. Пишите в комментариях!

И ПРОСЬБА ОТ АВТОРА!

У меня вчера вышла статья: ЧТО Я ХОЧУ В 2026 ГОДУ? Почитайте, буду рада вашим откликам. Делитесь своими планами, желаниями, хотелками и покупками! Ваша Мария