Добавить в корзинуПозвонить
Найти в Дзене
DIVAN.RU

Секрет стиля: как однушка 50 кв.м стала воплощением ар-деко

В дизайне этой квартиры использованы фрески, латунь, сложные цветовые решения, арки и мрамор. Заглянем в гости. Исходная планировка квартиры была сохранена. Здесь есть кухня-гостиная, отдельная спальня, прихожая, постирочная и совмещенный санузел. Квартира сдавалась с отделкой от застройщика. Поскольку она находится в ЖК бизнес-класса, отделка была выполнена на высоком уровне: В ходе ремонта: Кухонный гарнитур имеет Г-образную форму. Модули, расположенные напротив окна, доходят до потолка. Они вмещают всю встроенную технику (кроме варочной панели) и служат основным местом для хранения. Вдоль торцевой стены разместили нижний ряд кухонных шкафов. В небольших ящиках хранятся посуда и столовые приборы. Вытяжка и сушилка для посуды скрыты в подвесном шкафу оттенка латуни. Обратите внимание: кухонный фартук и ТВ-зона в гостиной отделаны крупноформатным керамогранитом (120 х 260 см), имитирующим натуральный оникс. Столешница изготовлена из камня, а мойка встроена под столешницу. В гостиной у
Оглавление

В дизайне этой квартиры использованы фрески, латунь, сложные цветовые решения, арки и мрамор. Заглянем в гости.

  • Объект: однокомнатные апартаменты 50 кв.м в ЖК Поклонная, г. Москва (потолки 2,7 м в зоне кухни и прихожей 2,5 м)
  • Авторы проекта и декораторы: дизайнер Юнна Лукинских, автор съемки Алексеев Роман, декоратор Ануфриенко Евгения
  • Бюджет проекта: 2,1 млн рублей

Пожелания заказчиков

  • Светлое и «воздушное» пространство, темные акценты.
  • Натуральные материалы в отделке и меблировке.
  • Множество мест для хранения вещей.

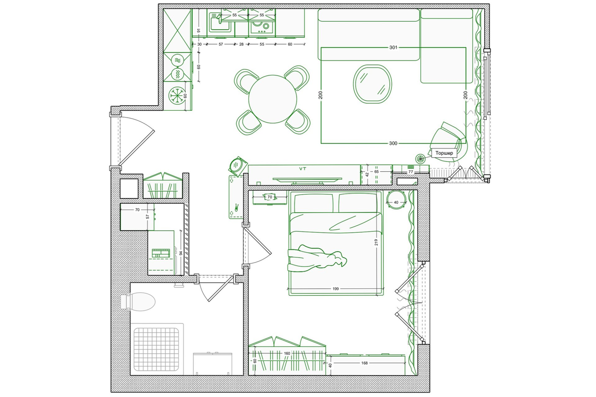
Планировочное решение

Исходная планировка квартиры была сохранена. Здесь есть кухня-гостиная, отдельная спальня, прихожая, постирочная и совмещенный санузел.

Планировочное решение и расстановка мебели
Планировочное решение и расстановка мебели

Квартира сдавалась с отделкой от застройщика. Поскольку она находится в ЖК бизнес-класса, отделка была выполнена на высоком уровне:

  • стены в светлых тонах, полы из инженерной доски и натурального камня;
  • напольные плинтусы скрытого монтажа и межкомнатные двери с эмалевым покрытием;
  • потолочная система центрального кондиционирования;
  • теплые полы с терморегуляторами;
  • потолочная подсветка для гостиной, спальни и ванной комнаты.

В ходе ремонта:

  • все стены перекрасили в светлые и сложные оттенки;
  • добавили дополнительные розетки и скорректировали расположение выключателей.

Кухня-гостиная

Кухонный гарнитур имеет Г-образную форму. Модули, расположенные напротив окна, доходят до потолка. Они вмещают всю встроенную технику (кроме варочной панели) и служат основным местом для хранения.

Вдоль торцевой стены разместили нижний ряд кухонных шкафов. В небольших ящиках хранятся посуда и столовые приборы. Вытяжка и сушилка для посуды скрыты в подвесном шкафу оттенка латуни.

Обратите внимание: кухонный фартук и ТВ-зона в гостиной отделаны крупноформатным керамогранитом (120 х 260 см), имитирующим натуральный оникс. Столешница изготовлена из камня, а мойка встроена под столешницу.

В гостиной установлена мягкая мебель округлых форм и журнальный столик. Дизайнер отмечает, что такие плавные линии придают интерьеру элегантность, мягкость и дорогой вид.

В коллекции divan.ru мое предпочтение безоговорочно отдается дивану Риббл. Он идеально соответствует современным трендам благодаря своему дизайну, а комфорт посадки просто невероятен — ощущаешь себя как в облаке.
-5

➡️Товары бренда divan.ru

Прием: за диваном стену украсили арочной композицией из гибких молдингов. Этот прием перекликается с арками в экстерьере здания и интерьерах холлов и лобби ЖК. Композицию окрасили в светло-серый цвет.

Контрастную вертикаль слева от ТВ-зоны создает глухой пенал. Рядом расположен стеллаж, который скрыл дефекты стены от застройщика. Он логично дополнил мебельную линию вдоль стены.

-7

Дизайнер подчеркивает, что вся мебель и декор — от «пухлого» кресла и обеденных стульев из рогожки до монументального стола из массива, латунного журнального столика, больших ламп, зеркал и консоли в прихожей с арочным основанием формируют цельное впечатление от пространства.

Спальня

Для создания умиротворяющей обстановки в спальне предпочли максимальный простор. Центральное место занимает кровать. Ее изголовье, выполненное в насыщенном зеленом цвете, вторит природным мотивам интерьера.

Прием: фрески, украшающие стену за изголовьем, обрамлены молдингами. Они визуально увеличивают высоту потолков и создают иллюзию «окон» с видом на деревья.

В квартире нет гардеробной, поэтому в спальне поставили шкаф. Внутри ящики, штанга и полки. фасады декорированы арками, как и стена над диваном в гостиной. Рядом со шкафом — подвесная консоль, выполняющая роль рабочего стола. Вертикаль зеркала сбалансировала общий вид.

Прихожая

Квартира начинается с прихожей, которая переходит в кухню-гостиную. Отсюда можно пройти в спальню и ванную по небольшому коридору. В прихожей размещен консольный столик с изогнутой ножкой в форме арки. Встроенный шкаф с арочными дверцами скрывает электрощитки.

В постирочной, спроектированной застройщиком, поставили стиральную машину с сушкой. Отдельную сушилку решили не покупать, а пространство над стиральной машиной задействовали для хранения одежды. Сбоку есть место для пылесоса и бытовых принадлежностей. На верхних полках можно хранить крупногабаритные вещи.

Обратите внимание: черное рифленое стекло скрывает содержимое постирочной. Черные вертикальные профили визуально делают потолок выше.

Санузел

Санузел был полностью отделан и укомплектован застройщиком. Установлены тумба с раковиной, смесители, душевая кабина с техническим отсеком, инсталляция с унитазом и полотенцесушитель.

🔥 Каникулы — идеальный момент для покупки, о которой вы давно мечтали! Успейте обновить интерьер по ценам 2025 года со скидками до 50% на divan.ru >>

-14

===========================

Оцените интерьер в комментариях, а если материал понравился — не забудьте поставить лайк👍

🖤divan.ru — не только блог про интерьеры, но и производитель доступной дизайнерской мебели. Ищите новые идеи и переходите на сайт, чтобы воплотить их в жизнь.

*Цены указаны на момент публикации