Найти в Дзене
DIVAN.RU

Интерьер как искусство: неординарная однушка 48 кв.м в стиле Кандинского

Профессия владельца этой квартиры лежит в сфере изобразительного искусства. Созданный интерьер отличается смелостью, яркостью и неординарностью, удовлетворяя потребность творческой личности в постоянном вдохновении. Заглянем в гости. «Вдохновением для этого проекта послужило творчество Василия Кандинского, — делится дизайнер Олеся Лещенко. — Оно нашло отражение в цветовой гамме, в формах мебели и декоративных элементах. Квартира буквально дышит светом, линиями, цветом и даже той музыкой, которую мы хотим ощущать в этом пространстве». В типовой однокомнатной квартире провели перепланировку: объединили ванную и туалет, создав просторный совмещенный санузел с постирочной. В спальне обустроили гардеробную, а на кухне сформировали ниши для встроенной мебели. «В кухне-гостиной доминирует небесный синий — любимый цвет художника, — отмечает дизайнер. — Кандинский считал этот цвет триумфальным. Он верил, что цвета выражают звуки. Для него синий был подобен тихой виолончели. В палитру также вклю
Оглавление

Профессия владельца этой квартиры лежит в сфере изобразительного искусства. Созданный интерьер отличается смелостью, яркостью и неординарностью, удовлетворяя потребность творческой личности в постоянном вдохновении. Заглянем в гости.

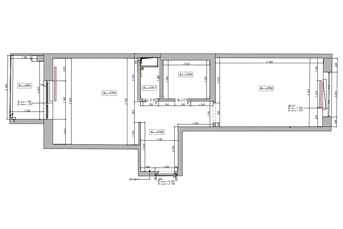
  • Объект: однокомнатная квартира 47,9 кв.м в ЖК «Новый Лесснер», г. Санкт-Петербург (потолки 2,75 м)
  • Автор проекта: дизайнер-декоратор Олеся Лещенко, автор фото Андрей Шишов

«Вдохновением для этого проекта послужило творчество Василия Кандинского, — делится дизайнер Олеся Лещенко. — Оно нашло отражение в цветовой гамме, в формах мебели и декоративных элементах. Квартира буквально дышит светом, линиями, цветом и даже той музыкой, которую мы хотим ощущать в этом пространстве».

Пожелания заказчика

  • Интерьер, отражающий индивидуальность.
  • Использование работ современных художников в дизайн-проекте.
  • Отдельная гардеробная и продуманное хранение.

Планировочное решение

В типовой однокомнатной квартире провели перепланировку: объединили ванную и туалет, создав просторный совмещенный санузел с постирочной. В спальне обустроили гардеробную, а на кухне сформировали ниши для встроенной мебели.

Кухня-гостиная

«В кухне-гостиной доминирует небесный синий — любимый цвет художника, — отмечает дизайнер. — Кандинский считал этот цвет триумфальным. Он верил, что цвета выражают звуки. Для него синий был подобен тихой виолончели. В палитру также включены песочные и терракотовые тона. Эти цвета вместе с голубым создают образ «земли и неба»».

Кухонный гарнитур играет на контрастах: основная линейная часть в серо-бежевых тонах с рабочей зоной дополнена двумя черными колоннами по бокам (в них скрыты холодильник и система хранения). Акцент смещен с функциональных элементов на выразительные формы асимметричных верхних шкафов и дверного проема.

Обратите внимание: обеденный стол сделали по индивидуальному заказу. Он отличается столешницей в форме палитры и шестью ножками вместо привычных четырех. «Ножки, расположенные под разными углами, напоминают элементы картины Кандинского “Пейзаж”», — рассказывает автор проекта.

Диван Рейли от бренда divan.ru выбрали за лаконичный дизайн и отсутствие подлокотников. Функциональную нагрузку подлокотников выполняют авторские подушки сферической формы.
-6

➡️Товары бренда divan.ru

«Абстрактная композиция “Любовь” становится видимой, когда включается подвес, — отмечает дизайнер. — Тень от него образует силуэт сердца, а фигуры на картине обнимаются. Этот изящный дизайнерский ход привел к неожиданному результату: владелец квартиры, долгое время одинокий, встретил свою любовь после ремонта. Дом наконец обрел хозяйку».

Интересная деталь: придиванный столик сделали по индивидуальному проекту. Он многофункционален. Благодаря прочному каркасу может служить как для игры в шахматы и шашки, так и в качестве табурета.

Лоджия

Из просторной лоджии получился полноценный кабинет. Здесь обустроили место для работы с письменным столом и креслом, а также установили высокий шкаф с продуманными системами хранения.

Обратите внимание: картина на стене напротив, освещенная спотами, выглядит как домашний музейный экспонат.

Спальня

«Согласно теории Кандинского, горчичный оттенок способствует креативности, — рассказывает дизайнер. — Белый цвет для художника — это как передышка. Поэтому в спальне использовали белый. Рельеф стены с подсветкой создает иллюзию стекающих дождевых капель. Это добавляет романтики. Несмотря на яркие цвета, в комнате ощущается умиротворение».

Кровать Лайтси 160 тоже заказали у бернда divan.ru. Ее сдержанный дизайн прекрасно сочетается с продуманной функциональностью: подъемный механизм обеспечивает дополнительное место для хранения, что всегда актуально в спальне.

➡️Товары бренда divan.ru

По обеим сторонам от кровати расположены тумбы: слева — напольная, справа — подвесная с авторским светильником. На стене напротив окна размещена ценная фамильная картина заказчика. Для полотна скромного размера приобрели массивное обрамление придает, которое придало картине визуальной значимости. Завершающий штрих — ковер ручной работы — его оттенки гармонично «собирают» все цвета интерьера.

Гардеробная

Благодаря внушительным размерам спальни здесь удалось обустроить отдельную гардеробную. Вход в гардеробную выполнен в виде арки с синей отделкой и прикрыт фактурной шторой, что обеспечивает хорошую вентиляцию помещения.

Санузел

В объединенном санузле разместили ванну, большое зеркало с подсветкой, тумбу с раковиной, унитаз с гигиеническим душем и инсталляцией. Вместо полотенцесушителя — теплая стена с декоративной лестницей для сушки вещей.

Прием: синий потолочный плинтус санузла «объединяет» интерьер с другими комнатами.

Прихожая

Прихожая имеет много мест для хранения: серо-бежевые фасады шкафов незаметны, а синие акценты поддерживают общую концепцию.

🔥 Каникулы — идеальный момент для покупки, о которой вы давно мечтали! Успейте обновить интерьер по ценам 2025 года со скидками до 50% на divan.ru >>

-13

============================

Оцените интерьер в комментариях, а если материал понравился — не забудьте поставить лайк👍

🖤divan.ru — не только блог про интерьеры, но и производитель доступной дизайнерской мебели. Ищите новые идеи и переходите на сайт, чтобы воплотить их в жизнь.

*Цены указаны на момент публикации