Найти в Дзене

Современный 2-этажный дом 139 м², Сочи, Лазаревский район

О доме
■ Стены из керамзитобетонных блоков — в доме тепло, тихо и комфортно круглый год.
■ Надёжный фундамент и бетонные перекрытия создают ощущение прочности и спокойствия.
■ Фасад выполнен в стильном сочетании короед и клинкерного камня — дом выглядит аккуратно и дорого.
■ Высокие потолки (3,4 м на первом этаже и 3,1 м на втором) дают много света и ощущение простора. Планировка продумана для жизни.
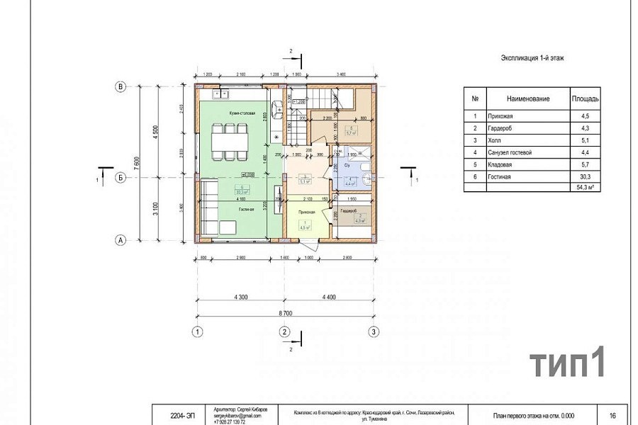
• Первый этаж — место, где собирается семья:
просторная кухня-гостиная, удобная прихожая, холл, гардеробная, санузел. кладовая. • Второй этаж — зона уюта и приватности: холл, детская, две спальни, балкон, ванная комната.
Участок 2,5 сотки.
● Ухоженная территория с ландшафтным озеленением, освещением и дренажом.
● Автоматические ворота, надёжный забор, парковка на два автомобиля.
Здесь приятно находиться и днём, и вечером. Все коммуникации подключены.
○ Центральный газ с двухконтурным котлом Baxi, вода, 15 кВт электричества, современная система очистки.
○ Без поселковых платежей — толь

О доме
■ Стены из керамзитобетонных блоков — в доме тепло, тихо и комфортно круглый год.
■ Надёжный фундамент и бетонные перекрытия создают ощущение прочности и спокойствия.
■ Фасад выполнен в стильном сочетании короед и клинкерного камня — дом выглядит аккуратно и дорого.
■ Высокие потолки (3,4 м на первом этаже и 3,1 м на втором) дают много света и ощущение простора.

-2

Планировка продумана для жизни.

• Первый этаж — место, где собирается семья:
просторная кухня-гостиная, удобная прихожая, холл, гардеробная, санузел. кладовая.

-3

• Второй этаж — зона уюта и приватности: холл, детская, две спальни, балкон, ванная комната.

-4

Участок 2,5 сотки.
● Ухоженная территория с ландшафтным озеленением, освещением и дренажом.
● Автоматические ворота, надёжный забор, парковка на два автомобиля.
Здесь приятно находиться и днём, и вечером.

-5

Все коммуникации подключены.
○ Центральный газ с двухконтурным котлом Baxi, вода, 15 кВт электричества, современная система очистки.
○ Без поселковых платежей — только реальные расходы.

-6

Локация — Коттеджный посёлок Град Парк на Батумском шоссе ЖСТ Чаевод квартал Мимоза пгт Дагомыс тер.
Тихо, зелено, чистый горный воздух и лес вокруг.
До моря — 4 км, до магазинов, школ, садов и ресторанов — около 1,53 км.
Удобный выезд на Батумское шоссе, рядом остановка и ж/д станция Дагомыс.

-7

Дом подойдёт как для жизни, так и для инвестиций.
Высокий спрос на аренду, перспективный район, стабильный рост цен.

-8

В продаже 7 домов площадью от 139 до 160 м².

-9

Свяжитесь с нами — расскажем детали и подберём оптимальный вариант.

Узнать подробнее и задать вопрос о доме можно по телефону.

+79258941888 Оксана
+79253245522 Инна
+79308515153 Анджела