Наконец готов обзор одного из самых популярных наших интерьеров 2025 года — проекта, в котором мы работали с ретро-деталями, отсылками к советскому модернизму и монументальному искусству, но при этом создавали современную, технологичную и функциональную квартиру для жизни сегодня.
Друзья, приветствую! С вами Марина Измайлова, архитектор, руководитель бюро ARCHWOOD
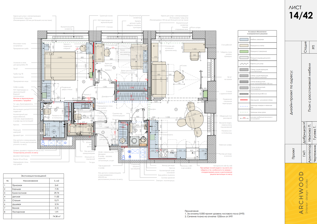
Если удобнее смотреть — то тут можете найти полный видео-обзор проекта, с планировкой, освещением и деталями.
Дано: место диктует стиль
Квартира расположена в современном жилом комплексе, при этом в историческом контексте — рядом с ВДНХ и Останкинской башней, на которую выходят два центральных окна угловой двухкомнатной квартиры.
Заказчик хотел не просто «красивый интерьер», а концептуальную новую версию старой московской квартиры с атмосферой 60–70-х годов, советского модернизма, но без прямой стилизации и без превращения пространства в музей.
Важно было не скатиться в популярный сегодня универсальный mid-century, а пойти глубже в культурный и архитектурный контекст.
Основные задачи
Квартира проектировалась для одного человека и семьи в перспективе, поэтому важно было заложить гибкость, в связи с чем требовались:
- Отдельная спальня с приватным санузлом,
- Кабинет, который в будущем может стать детской,
- Два санузла,
- Кухня-гостиная с возможностью изолировать гостиную и использовать её как гостевую комнату,
- Достаточное количество мест хранения,
- Отдельная постирочная,
- Современная инженерия:
— приточно-вытяжная вентиляция,
— сложные сценарии света,
— управление со смартфона и голосом.
С учётом всех этих требований здесь действительно пришлось бороться за эргономику, но именно такие задачи мы любим.
Заказчик хотел концепцию, а не просто красивый интерьер. Такие запросы — наша любовь.
В своей практике мы часто возвращаемся к теме диалога современности и истории. Этот проект — одна из самых тонких работ в этом направлении.
Подпишитесь на канал, чтобы не пропустить разборы других нестандартных интерьеров. В ближайших планах — статьи о том, как использовать тренды с умом и избегать навязанных штампов в дизайне. Без воды, только рабочие приёмы.
👉 Кнопка подписки — ниже.
Планировка
Как обычно, мы исследовали все законные варианты перепланировки и остановились на решении, которое позволило разместить все функции без ощущения тесноты.
Итоговая планировка:
— кухня со столовой и большим холодильником
— гостиная (изолируемая)
— два санузла
— спальня с хранением и макияжной зоной
— кабинет / будущая детская
— комфортная прихожая
— коридор с дополнительным шкафом
— постирочная
Коридор и прихожая: первый эмоциональный акцент
Коридор рядом с прихожей — одно из самых ярких помещений квартиры.
Главный акцент здесь — крупный графический принт, разработанный на заказ и ламинированный для износостойкости.
Самые уязвимые зоны — углы и проходы — защищены керамогранитом.
Кухонный фартук со сложным рельефом переходит за угол, защищая проходную зону — это решение и функциональное, и архитектурное.
В прихожей:
— шпонированные панели
— такая же накладка на входную дверь
— зеркальный шкаф, который отражает «деревянный угол»
Шкаф спроектирован нестандартно:
— пуф можно полностью задвинуть внутрь шкафа
— нижняя секция скрывает нишу, где обувь просто стоит на полу (это аккуратно, удобно и визуально сильно упрощает пространство).
Кухня: ретро-настроение без декоративного шума
Один из рабочих приёмов — разделить фасады кухни на 2–3 цвета и фактуры.
Здесь это:
— шпон ореха
— эмаль
— фрезеровка в верхней части
Верх кухни читается как часть стены, а не мебель.
Нижняя часть — самая функциональная — подчёркнута крупными накладными ручками.
Фартук состоит из двух типов плитки — плоской и объёмной.
Этот эффект особенно хорошо читается вблизи и усиливается подсветкой.
Окна и свет
Все откосы отделаны шпоном со встроенной подсветкой.
Так глубокие откосы визуально становятся частью интерьера и работают как вертикальные элементы — аналог классических штор.
Здесь используются рулонные шторы из двух слоёв: плотный и тюль.
Гостиная и раздвижные системы
Гостиная отделена раздвижными перегородками во всю ширину. Материал - матовое стекло в профиле.
Это позволяет:
— изолировать пространство
— использовать гостиную как гостевую комнату
Телевизор стоит на опорах. Это удобное решение, когда ТВ не является главным центром композиции, а важны и вид из окна, и гибкость пространства.
Санузлы: минимализм + культурный код
Интересная деталь — стена санузлов, которая выстроена зигзагом не только на плане, как это делают для шкафов, но и по вертикали.
Мы занизили инсталляцию и кнопку унитаза (помещение 7), чтобы с обратной стороны на этой же стене разместилась раковина второго санузла (помещение 6).
Это тонкая, но важная работа с пространством.
Основной санузел
Минималистичный, функциональный, но с одной ключевой деталью —
наборная мозаика в стиле советского монументального искусства.
Она отражается в зеркале, читается из коридора и сразу задаёт характер пространства.
Такие мозаики использовались в интерьерах НИИ, ДК и на станциях метро.
Санузел при спальне
Продолжение спальни по цвету и настроению.
Душевая - за раздвижной перегородкой, которая почти всегда открыта, пространство остаётся цельным.
Спальня
Более спокойная по цветам, ближе к джапанди.
Здесь:
— встроенный шкаф
— макияжная зона с трюмо
— хранение за изголовьем
Кабинет / будущая детская
Практически полностью залит насыщенным синим цветом — универсальным для любого возраста и пола.
Фасады с фрезеровкой, крупные накладные ручки — один из главных визуальных акцентов комнаты.
Подвесные полки намеренно сделаны похожими на советские книжные модули.
Интересная деталь — система крепления штор в откосе на липучках, благодаря чему ткань всегда плотно прилегает к стене.
Постирочная
Несмотря на компактность, здесь разместилось всё необходимое.
Основной свет смонтирован на стенах, а не на потолке — из-за низкого потолка и размещённой сверху вентиляции.
Света достаточно, пространство не перегружено.
Мы разобрали планировку, детали, свет. Но за каждым приёмом стоит опыт ошибок и побед.
Мы ведем этот канал, чтобы показывать дизайн без глянцевого флёра. Здесь нет случайных решений — только те, что проверены стройкой и жизнью заказчиков.
Подпишитесь, если вам важно:
— понимать, как устроены сложные планировки «под ключ»,
— видеть подходы к бюджету и альтернативы,
— отличать настоящий авторский дизайн от шаблонных наборов мебели.
Следующий материал - разбор современных трендов в интерьере и почему их повтор - чаще ошибка.
👉 Кнопка подписки — ниже.
Материалы и инженерия
Во всех основных помещениях — инженерная доска «французская ёлка», которая делает интерьер мягче и традиционнее.
Освещение разделено на 4 типа:
— основной
— акцентный
— подсветки
— технический
Основной свет — миниатюрные гипсовые светильники с бесшовной интеграцией в потолок.
Большую роль играют бра и подвесные светильники — они отвечают за уют и стилизацию.
Свет и часть розеток заведены в систему Aqara с интеграцией с Алисой. Управление реализуется голосом и со смартфона.
Итог
Это проект про интерьер с душой и историей, но без отказа от современных технологий и комфорта.
Здесь нет случайных решений, каждый приём работает либо на эргономику, либо на атмосферу, либо на культурный контекст места.
Если вам близок такой подход к дизайну — обязательно посмотрите видео-обзор и поделитесь им с теми, кому может быть интересна эта тема.
----------------------------------------
Мы создаём интерьеры любой сложности, ведём авторский надзор в Москве и Санкт-Петербурге, подбираем подрядчиков и полностью сопровождаем ремонт под ключ.
Оставить заявку на разработку проекта и посмотреть портфолио можно по ссылке и в Telegram канале
До встречи!
