Добавить в корзинуПозвонить
Найти в Дзене

Сколько на самом деле стоит дом мечты в 2025 году: наш расчёт. Это должен знать каждый, кто планирует строить дом...

В прошлой статье я остановилась на том, что мы вроде бы всё для себя решили: выбрали типовой проект, уложились в бюджет, не хотели продавать квартиру и планировали реализовать семейную ипотеку. Казалось, пазл сложился. Но реальность, как обычно, внесла свои коррективы. Мы столкнулись с удорожанием. Столкнулись с откровенной несправедливостью. И, если честно, окончательно добили нас реальные цены на паркинг. А паркингов нам нужно несколько — это не «хочу», это необходимость.
В какой-то момент стало понятно: цифры, которые нам озвучивали в начале, и финальная сумма — это вообще разные вселенные. Мы взяли паузу. Месяца на четыре–пять.
Много думали. И да, постоянно ругались. Если честно, тема жилья стала основной причиной всех конфликтов в нашем доме. Мы просто оба устали выбирать, считать, разочаровываться и начинать сначала. При этом оставаться в нашей маленькой квартире мы уже физически не могли. Там не было места ни нам, ни нашим увлечениям, ни вещам. Всё давило. И тогда мы приняли реш
Оглавление
дом мечты
дом мечты

В прошлой статье я остановилась на том, что мы вроде бы всё для себя решили: выбрали типовой проект, уложились в бюджет, не хотели продавать квартиру и планировали реализовать семейную ипотеку. Казалось, пазл сложился.

Но реальность, как обычно, внесла свои коррективы.

Мы столкнулись с удорожанием. Столкнулись с откровенной несправедливостью. И, если честно, окончательно добили нас реальные цены на паркинг. А паркингов нам нужно несколько — это не «хочу», это необходимость.
В какой-то момент стало понятно: цифры, которые нам озвучивали в начале, и финальная сумма — это вообще разные вселенные.

Мы взяли паузу. Месяца на четыре–пять.
Много думали. И да, постоянно ругались. Если честно, тема жилья стала основной причиной всех конфликтов в нашем доме. Мы просто оба устали выбирать, считать, разочаровываться и начинать сначала.

При этом оставаться в нашей маленькой квартире мы уже физически не могли. Там не было места ни нам, ни нашим увлечениям, ни вещам. Всё давило.

И тогда мы приняли решение, которое раньше даже не хотели рассматривать: продать квартиру, в которой живём, и использовать эти деньги как первоначальный капитал.

Это решение резко меняет всё.
Наш бюджет увеличивается кратно. В итоге получается следующая схема: объект стоимостью около
11–12 млн без доплат, из них 6 млн — семейная ипотека под 6%, и ещё примерно 6 млн — живые деньги от продажи квартиры.

И вот тут начинается второй виток истории.

Раз бюджет стал нормальным, увеличивать площадь дома мы не захотели. Нам важнее было качество, планировка и ощущение «дома мечты». А мечта у нас всегда была одна — деревянный дом.

Мы начинаем обзвон компаний. И это, пожалуй, одно из самых больших разочарований.


Моё главное открытие: если ты покупаешь в ипотеку — во многих компаниях тебя просто не считают человеком. Хамство, надменность, разговор сквозь зубы. Как будто ты просишь одолжение, а не несёшь им деньги.

В итоге мы останавливаемся на компании из Перми. И, по сути, это единственная компания, которая нормально общалась, отвечала по делу и не делала вид, что мы им мешаем.

Мы выбираем типовой проект деревянного дома, но сразу понимаем, что он нам не подходит полностью.
Изначально в проекте было всего две спальни — нам нужно три.
Также в проекте не было отдельной комнаты под газовое оборудование, а это обязательное требование.
Мы добавляем котельную, корректируем планировку. За переделку проекта платим
30 000 рублей.

СТОИМОСТЬ ДОМА.

Отдельно хочу зафиксировать цифры по дому, потому что именно они в какой-то момент начинают отрезвлять сильнее любых эмоций.

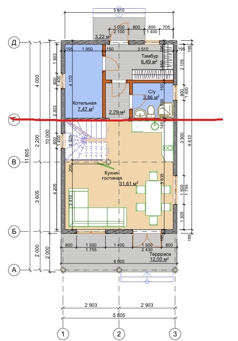
Мы считаем дом 130 квадратных метров, два этажа.
Планировка — ровно та, о которой мы мечтали:
три спальни, гардеробная, одна из спален —
мастер-спальня, большая кухня-гостиная 35 квадратов.

По расчётам застройщика такой дом выходит нам в 10 600 000 рублей.
И это вроде бы звучит нормально. Но, как всегда, есть «но».

В эту сумму входит стандартная разводка электричества.
И когда я говорю «стандартная», это не значит «дёшево» —
она стоит 700 000 рублей.
Причём стандарт — это когда розетки и свет ровно там, где «положено по проекту», а не там, где тебе удобно жить.

Хочешь добавить розетки?
Хочешь дополнительный свет?
Хочешь нормальные сценарии освещения, а не одну люстру на комнату?

Будь готов доплачивать.
Не сразу, а потихоньку. И именно так смета начинает
ползти вверх.

В какой-то момент мы понимаем, что наша смета разрастается до 12 000 000 рублей.
И важно:
это без напольных покрытий, без межкомнатных дверей и без ремонта.

Да, это не «черновой бетон», это покраска стен, а не капитальный ремонт.
Но это всё равно:

  • покраска стен,
  • отделка потолков,
  • пол,
  • мебель,
  • кухня.

И тут становится очевидно:
мы
не укладываемся даже в 15 000 000 рублей.
Ну либо укладываемся, но
очень-очень впритык, без запаса, без воздуха.

Плюс сроки.
Строительство коробки дома —
от пяти месяцев.
А дальше — неизвестность. Мы все знаем, что стройка — это такая история, которая почти никогда не заканчивается ровно в срок.

Добавляем сюда:

  • ремонт большого дома,
  • ожидание,
  • и главный вопрос — а где мы вообще живём всё это время?

И как будто этого мало, есть ещё один пункт, который многие почему-то не считают.
Участок.

У нас участок 12 соток, и его тоже нужно привести в порядок: выравнивание, заезд, дорожки, элементарное благоустройство.
Мы закладывали на это
1 000 000 рублей — и если честно, это очень дешёвая оценка.
Вероятность, что мы бы в эту сумму уложились, — процентов
десять. Не больше.

И вот в этот момент ты понимаешь:
дом — это не только стены и крыша.
Это бесконечная цепочка решений, денег и ожиданий, к которым морально готов далеко не каждый.

Нам всё перерабатывают, мы получаем разрешение на строительство — отдельная история, но если коротко: без утверждённого проекта, градплана участка и соблюдения всех отступов никто вам его не даст.

И вот когда, казалось бы, всё решено…

Мой муж случайно заходит на сайт застройщика, где раньше нам нравилась квартира. Та самая — около 100 квадратов, трёхкомнатная, с кухней-гостиной, кладовой, паркингом. Раньше она стоила 12 млн и не вписывалась.
А тут —
скидка. И внезапно мы понимаем, что мы снова полностью укладываемся в бюджет.

мы взяли ещё дешевле к октябре 2025 года, просто не могу найти скрины
мы взяли ещё дешевле к октябре 2025 года, просто не могу найти скрины

И в этот момент появляется зерно сомнения. Опять.

Отдельно хочу сказать важный момент для тех, кто рассматривает дом в семейную ипотеку.
Аккредитованные застройщики действительно имеют право строить дом по семейной ипотеке, но есть жёсткое условие:
дом должен быть завершён
как минимум до “тёплого контура” — коробка, крыша, окна, двери, коммуникации. То есть в нём уже потенциально можно жить. Просто «фундамент и обещание» банк не примет.

Плюс есть строгие требования к газовому оборудованию: отдельное помещение, объём, вентиляция, окно, дверь — всё регламентировано, и на этом этапе многие проекты «сыпятся».

И вот мы стоим между двумя вариантами:
реализовать мечту о деревянном доме или снова вернуться к квартире, где всё уже готово.

Но об этом — в следующей статье.