Найти в Дзене
VOLDOMA

Красивый дом из клееного бруса по проекту БД-123

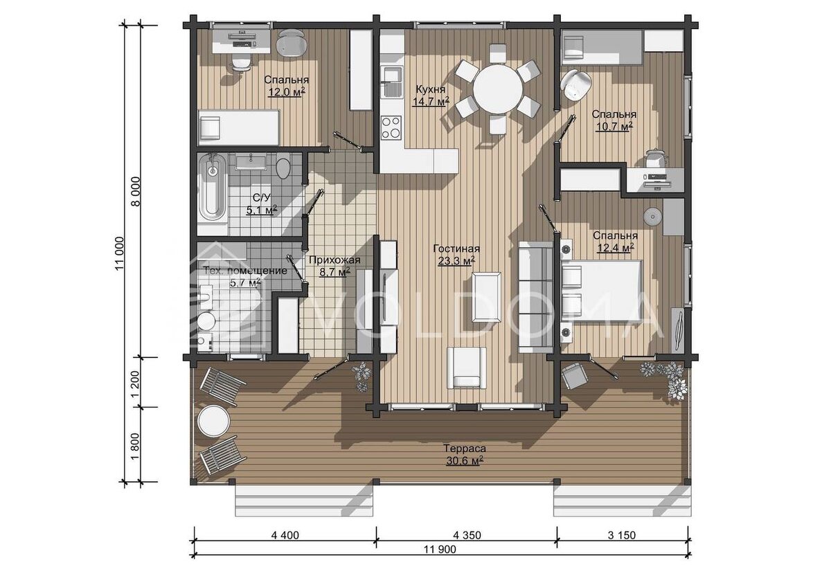
Если мечтаете о загородном современном доме, то этот пост для вас, БД-123 – это воплощение современной загородной жизни. Характеристики: • Площадь: 123 м² • Размер: 11х12 м • Этажность: 1 • Материал стен: клееный брус камерной сушки 160x180 мм (производство АО «Сокольский ДОК», Сегежа Групп) • Фундамент: железобетонные сваи • Кровля: металлочерепица GrandLine 0,5 мм Проект БД-123. Что делает его особенным? • Просторная кухня-гостиная 38 м² – место для сбора семьи с уютным диваном, обеденной и кухонной зонами. Пространство наполнено светом и теплом, создавая атмосферу гармонии; • Три спальни,12,4 м², 12,0 м² и 10,7 м² – одна для родителей, две для детей или гостей; • Огромная терраса 30,6 м² – место для садовых кресел или мини-сада, идеально подходит для семейных посиделок; • Вместительная прихожая 8,7 м²; • Техническое помещение 5,7 м²для оборудования и хранения вещей, поддерживающее порядок в доме. • Санузел 5,1 м². У проекта есть еще один вариант планировки - с двумя спальнями, эт

Красивый дом из клееного бруса по проекту БД-123.

Если мечтаете о загородном современном доме, то этот пост для вас, БД-123 – это воплощение современной загородной жизни.

Характеристики:

• Площадь: 123 м²

• Размер: 11х12 м

• Этажность: 1

• Материал стен: клееный брус камерной сушки 160x180 мм (производство АО «Сокольский ДОК», Сегежа Групп)

• Фундамент: железобетонные сваи

• Кровля: металлочерепица GrandLine 0,5 мм

Проект БД-123. Что делает его особенным?

• Просторная кухня-гостиная 38 м² – место для сбора семьи с уютным диваном, обеденной и кухонной зонами. Пространство наполнено светом и теплом, создавая атмосферу гармонии;

• Три спальни,12,4 м², 12,0 м² и 10,7 м² – одна для родителей, две для детей или гостей;

• Огромная терраса 30,6 м² – место для садовых кресел или мини-сада, идеально подходит для семейных посиделок;

• Вместительная прихожая 8,7 м²;

• Техническое помещение 5,7 м²для оборудования и хранения вещей, поддерживающее порядок в доме.

• Санузел 5,1 м².

У проекта есть еще один вариант планировки - с двумя спальнями, это проект БД–123/1.

Две спальни, просторная входная группа с гардеробом, гостевым санузлом и полноценным хозяйственным помещением. Гостиная и кухня остаются светлыми и просторными, приватная зона спокойная и камерная.

Преимущества обоих проектов:

1. Открытая общая зона и приватные спальни – комфорт и тишина.

2. Большая терраса как продолжение гостиной – идеальна для семьи и летних вечеров.

3. Рациональная планировка без лишних коридоров – экономия в эксплуатации.

4. Одноэтажность – безопасно для детей и родителей.

5. Красивый внешний вид.

Кому что подойдёт:

• Проект БД – 123 (3 спальни) подходит семье с двумя детьми или тем, кто хочет кабинет/гостевую.

• Проект БД – 123/1 (2 спальни) идеально для пары или семьи с одним ребёнком, любящей принимать гостей.

В обоих случаях вы получаете не просто дом, а пространство для счастливой жизни, наполненное светом, воздухом и теплом.

Вам нужен загородный дом?

Обращайтесь в VOLDOMA — сейчас самое время действовать. Мы поможем подобрать проект, оформить ипотеку. Услуги штатного ипотечного менеджера - бесплатно.

• 8(800)222-82-44;

• Андрей Данилов 8 (921) 250-60-66;

• Юлия Тиханова 8 (921) 534-54-44;

• Алексей Автамонов 8 (921) 064-74-44.

Офис: г. Вологда, ул. Ярославская, д. 25, оф. 26. voldoma@yandex.ru

-2
-3
-4
-5
-6
-7