Найти в Дзене

✅Современный интерьер однушки-хрущёвки 30 м²: реальные затраты на ремонт и рабочие решения

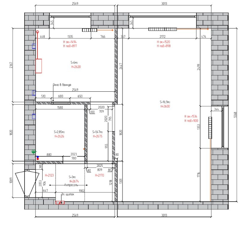
На старте кажется, что 30 квадратов вообще невозможно превратить во что-то удобное и красивое. На практике всё иначе: при продуманном проекте даже такая типовая планировка становится нормальной современной квартирой, а не «жильём по остаточному принципу». Разберём реальный пример: угловая однушка площадью 30 м², без перепланировки, но с продуманным дизайном. Покажу, как можно обойтись бюджетными решениями и чем отличается подход «попроще» от полноценного дизайнерского ремонта. Вот как выглядит планировка квартиры.👇 Подписывайтесь на канал Domeo: здесь подробно разбираются проекты, озвучиваются честные бюджеты и показывается, как сделать обычную хрущёвку местом, где действительно хочется жить, а не просто терпеть обстоятельства. Точную стоимость всего ремонта, вы можете получить в этом калькуляторе Domeo -> https://domeo.ru/remont В старых хрущёвках ванная почти всегда идёт полностью под переделку: старый кафель, сантехника на честном слове, кривые трубы. Разумнее один раз всё демонтир
Оглавление

На старте кажется, что 30 квадратов вообще невозможно превратить во что-то удобное и красивое. На практике всё иначе: при продуманном проекте даже такая типовая планировка становится нормальной современной квартирой, а не «жильём по остаточному принципу».

Текст помогла составить дизайнер компании Domeo
Текст помогла составить дизайнер компании Domeo

Разберём реальный пример: угловая однушка площадью 30 м², без перепланировки, но с продуманным дизайном. Покажу, как можно обойтись бюджетными решениями и чем отличается подход «попроще» от полноценного дизайнерского ремонта. Вот как выглядит планировка квартиры.👇

Планировка квартиры
Планировка квартиры
Подписывайтесь на канал Domeo: здесь подробно разбираются проекты, озвучиваются честные бюджеты и показывается, как сделать обычную хрущёвку местом, где действительно хочется жить, а не просто терпеть обстоятельства.

Планируете ремонт квартиры?👇

-3

Точную стоимость всего ремонта, вы можете получить в этом калькуляторе Domeo -> https://domeo.ru/remont

КАЛЬКУЛЯТОР

Санузел: компактно и без лишнего

В старых хрущёвках ванная почти всегда идёт полностью под переделку: старый кафель, сантехника на честном слове, кривые трубы. Разумнее один раз всё демонтировать и собрать заново: новая плитка, окрашенный потолок, свежая сантехника, нормальная разводка воды. Посмотрите планировку и интерьер санузла.👇

Спокойная гамма — белый, синий, светло-серый — визуально освежает и не надоедает.

Сколько стоит:👇

Бюджетный вариант ~107 000 ₽

  • Плитка и монтаж — 35 000 ₽
  • Ванна с душевой системой — 22 000 ₽
  • Стеклянная перегородка — 8 000 ₽
  • Мебель и зеркало — 15 000 ₽
  • Полотенцесушитель — 7 000 ₽
  • Разводка воды, канализация — 20 000 ₽

Дизайнерский вариант ~260 000 ₽

  • Керамогранит с монтажом — 60 000 ₽
  • Ванна с душевой системой премиум — 65 000 ₽
  • Закалённое стекло с креплениями — 25 000 ₽
  • Мебель под заказ, зеркало с LED — 60 000 ₽
  • Электрический полотенцесушитель — 15 000 ₽
  • Новая разводка, скрытый монтаж — 35 000 ₽

Гостиная-спальня: три функции в одной комнате

Главная комната работает сразу как зона отдыха, рабочий угол и место для сна. При двух окнах удобно разделить её на три части: рабочий стол у одного окна, диван с ТВ по центру, условная спальня у второго окна, отделённая лёгкой перегородкой.

Одна стена делается акцентной, остальные — спокойными. На пол кладут ламинат под дерево, чтобы визуально собрать комнату. Вот как выглядит планировка и интерьер.👇

Сколько стоит:👇

Бюджетный вариант ~250 000 ₽

  • Отделочные материалы: обои, фотообои, ламинат с работами — 85 000 ₽
  • Мебель: диван-кровать, кровать, стол, тумба под ТВ, шкаф — 85 000 ₽
  • Перегородка-экран — 15 000 ₽
  • Освещение, розетки с монтажом — 40 000 ₽
  • Шторы, аксессуары — 25 000 ₽

Дизайнерский вариант ~490 000 ₽

  • Подготовка стен, покраска, фотообои под заказ — 75 000 ₽
  • Ламинат с укладкой — 35 000 ₽
  • Мебель на заказ: шкаф-купе, диван, кровать, стол, подвесная тумба — 200 000 ₽
  • Деревянная перегородка с доставкой и монтажом — 45 000 ₽
  • Свет, розетки, работа электрика — 60 000 ₽
  • Текстиль, декор — 75 000 ₽

А если хочется, чтобы всё сделали за вас — закажите ремонт у DOMEO, где как раз умеют совмещать эстетику и практичность.👇

Точную стоимость всего ремонта, вы можете получить в этом калькуляторе Domeo -> https://domeo.ru/remont

КАЛЬКУЛЯТОР

Кухня 6 м²: максимум функций на минимуме площади

На шести квадратах важно не потерять ни сантиметра. Рабочая схема: линейный или Г-образный гарнитур, максимум верхних шкафов, встроенная техника, небольшой обеденный угол.

Фасады — матовые, под дерево или в спокойном цвете. Глубокая мойка, смеситель с возможностью подключения фильтра, варочная панель, духовка, вытяжка, холодильник. Фартук под дерево или камень, плитка на пол. Над столом — пара аккуратных подвесов для локального света.

Сколько стоит:👇

Бюджетный вариант ~210 000 ₽

  • Готовая кухня, обеденный стол со стульями — 75 000 ₽
  • Плитка на фартук и пол с укладкой — 25 000 ₽
  • Мойка и смеситель — 15 000 ₽
  • Холодильник — 30 000 ₽
  • Варочная панель и вытяжка — 25 000 ₽
  • Отделка с материалами, светильники, розетки — 40 000 ₽

Дизайнерский вариант ~525 000 ₽

  • Кухня по проекту под встроенную технику с качественной фурнитурой — 220 000 ₽
  • Столовая группа — 85 000 ₽
  • Керамогранит с укладкой — 35 000 ₽
  • Мойка Franke, смеситель Grohe с фильтром — 25 000 ₽
  • Встраиваемый холодильник — 40 000 ₽
  • Техника премиум — 45 000 ₽
  • Отделка с материалами, освещение, фурнитура, электрика — 75 000 ₽

Прихожая: узкая, но рабочая

Прихожая в хрущёвке почти всегда узкая, но её можно сделать удобной. Светлые стены с интересным оттенком, например, зелёно-голубым, встроенный шкаф до потолка и нормальное посадочное место уже меняют ощущение. Зеркало в полный рост с подсветкой облегчает жизнь. Важны мелочи: розетка рядом с зеркалом, крючки на нужной высоте. Смотрите, как это выглядит в проекте.👇

Сколько стоит:👇

Бюджетный вариант ~60 000 ₽

  • Отделка и освещение: работа и материалы — 35 000 ₽
  • Готовый шкаф из Леруа или ИКЕА — 18 000 ₽
  • Пуфик, зеркало — 7 000 ₽

Дизайнерский вариант ~160 000 ₽

  • Подготовка и окраска с идеальным выравниванием, укладка напольного покрытия, монтаж потолка, освещение — 75 000 ₽
  • Шкаф под заказ с доводчиками и встроенным освещением — 60 000 ₽
  • Пуфик от мебельщика, зеркало с LED-подсветкой — 25 000 ₽

Итоговый бюджет

Если брать доступные материалы, готовую мебель и технику массового сегмента, общий ремонт однушки-хрущёвки 30 м² укладывается примерно в 600–900 тысяч рублей. Это без излишних «понтов», но с нормальным качеством.

При ставке на индивидуальные решения, мебель под заказ, брендовую сантехнику и технику, сложный свет и хорошую подготовку оснований итог выходит в диапазон 1,2–1,5 миллиона рублей.

Если у вас возникают сложности с планированием, то Domeo советует начать с двух простых шагов:👇

-9

Domeo советует начать свой ремонт с 2-х простых шагов:

1. Заранее узнайте стоимость вашего ремонта в 3-х вариантах. Бесплатно рассчитайте тут: ✅ domeo.ru/remont
2. Выбрать подходящего дизайнера для визуализации своих идей! Бесплатно выберите своего дизайнера здесь: ✅ domeo.ru/design
-10

Важно понимать: даже типовая однушка с советской планировкой может стать нормальной современной квартирой. Для этого не нужно ломать все стены и устраивать перепланировку любой ценой. Достаточно продумать функции каждой зоны, не экономить на базовых вещах вроде электрики и коммуникаций и не гнаться за модными решениями, которые не переживут даже один ремонт.

ПОДПИШИТЕСЬ на канал и смотрите больше интересных и полезных статей.👇