Найти в Дзене
DIVAN.RU

ДО/ПОСЛЕ: капитальный ремонт московской двушки 65 кв.м

Ключевая идея проекта — единство интерьера, достигаемое за счет использования глубоких природных оттенков и темного дерева во всех помещениях. Высокие потолки подчеркивают масштаб и архитектуру, а элементы современной классики создают ощущение спокойствия и благородства. Заглянем в гости. «Изначально объект обладал хорошим потенциалом, — делится автор проекта. — Престижный район, развитая инфраструктура, зеленый двор. Просторная, светлая квартира с высокими потолками, двумя комнатами, отдельной кухней, балконом и гардеробной. Но ремонта здесь не было больше 15 лет, поэтому квартира нуждалась в обновлении. Масштабной перепланировки не было. Внесли лишь пару функциональных корректировок: балкон стал зоной отдыха, а в спальне появилось рабочее место. По референсам от владельцев мы выбрали глубокие природные оттенки (изумруд, терракота, дерево). Теплое темное дерево и высокие потолки добавили пространству глубины и выразительности. Этот интерьер — эклектика с современной классикой: спокой
Оглавление

Ключевая идея проекта — единство интерьера, достигаемое за счет использования глубоких природных оттенков и темного дерева во всех помещениях. Высокие потолки подчеркивают масштаб и архитектуру, а элементы современной классики создают ощущение спокойствия и благородства. Заглянем в гости.

  • Объект: двухкомнатная квартира 65 кв.м, г. Москва, район Куркино (потолки 3 м)
  • Автор проекта: хоумстейджер Ася Фатахова, автор фото Егор Воробьев

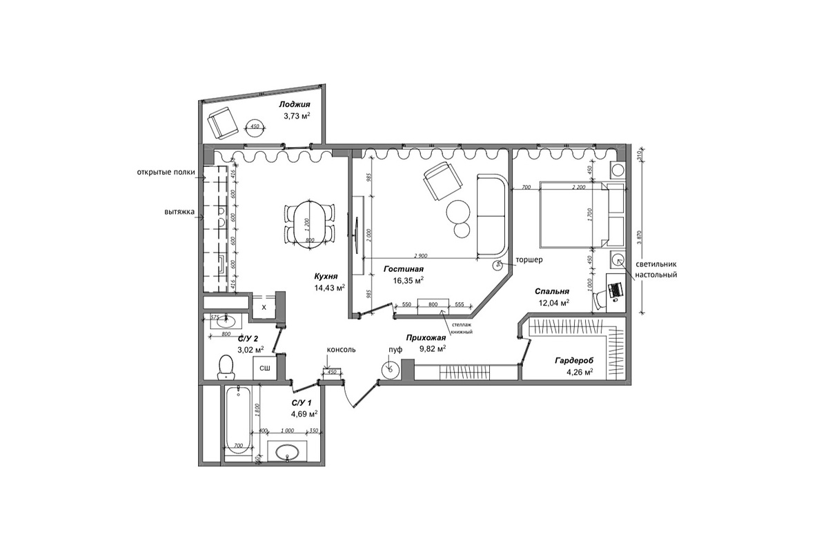
Планировочное решение

«Изначально объект обладал хорошим потенциалом, — делится автор проекта. — Престижный район, развитая инфраструктура, зеленый двор. Просторная, светлая квартира с высокими потолками, двумя комнатами, отдельной кухней, балконом и гардеробной. Но ремонта здесь не было больше 15 лет, поэтому квартира нуждалась в обновлении. Масштабной перепланировки не было. Внесли лишь пару функциональных корректировок: балкон стал зоной отдыха, а в спальне появилось рабочее место.

Планировочное решение и расстановка мебели
Планировочное решение и расстановка мебели

По референсам от владельцев мы выбрали глубокие природные оттенки (изумруд, терракота, дерево). Теплое темное дерево и высокие потолки добавили пространству глубины и выразительности. Этот интерьер — эклектика с современной классикой: спокойный, благородный, уютный. Название проекта “Цветы” было навеяно плиткой из новой коллекции Kerama Marazzi в санузле».

На чем сэкономили: изначально заказчики хотели полностью обновить квартиру, включая замену полов и шкафа-купе. Однако дизайнер убедила их сохранить некоторые элементы. Полы оказались в отличном состоянии и гармонично вписались в новый интерьер, а прочный шкаф-купе потребовал лишь замены дверей. Такой подход позволил значительно сэкономить время и деньги на ремонте.

Гостиная

Гостиная ДО ремонта
Гостиная ДО ремонта

Гостиная обрела свой стиль благодаря нейтральному бежевому фону и декоративным аркам из молдингов. Центральным элементом здесь стал раскладной диван Клаймар от divan.ru в насыщенном изумрудном цвете Ultra Oliva.

Наш выбор пал на диван Клаймар, который превзошел ожидания по качеству и функциональности. Завершающими штрихами стали кресло Орхет от divan.ru в цвете Velvet Light, изящные столики и бельгийский ковер с цветочным узором.
-5

➡️Товары бренда divan.ru

Тумба и стеллаж из темного дерева поддерживают баланс современности и классики.

-6

Спальня

Спальня ДО ремонта
Спальня ДО ремонта

Гибкие молдинги нашли свое применение и в спальне, где акцентная стена за изголовьем выделена аркой с итальянскими обоями с цветочным узором.

Светлые шторы с изумрудным бархатным кантом обрамляют большое окно. Композицию завершают прикроватные тумбы и консольный стол темного дерева, над которым размещено декоративное зеркало.

Прием: тумбы оснастили латунными ручками в виде цветов вместо стандартных.

В центре комнаты располагается кровать Льери от divan.ru, чья элегантность подчеркнута декоративными подушками и покрывалом.

➡️Товары бренда divan.ru

Отсутствие шкафа в спальне компенсируется наличием прилегающей гардеробной комнаты. Гардеробную обновили: сделали ремонт, заменили освещение на современное, доработали систему хранения и добавили комод с зеркалом.

Кухня

Кухня получилась по-настоящему выразительной благодаря гарнитуру, изготовленному на заказ. Его особенность в комбинации двух видов фасадов: нижние — в нежном оттенке «пастель сливки», а верхние — в изумрудном.

Благодаря подсветке, стеклянные витрины смягчают визуальную тяжесть крупногабаритной мебели. Темная деревянная столешница служит связующим звеном между кухней и остальными помещениями.

Благодаря антресольным шкафам на этой кухне масса мест для хранения. Вся бытовая техника встроена. Холодильник спрятан в нише у входа на кухню (на фото он не попал, но можно вернутся к планировке выше). Центральным элементом декора выступает люстра в виде цветка, дополненная декоративной розеткой.

Столовая зона выделена аркой и обоями с рифленым узором, а обеденный стол гармонично сочетается со стульями Эван от divan.ru.

-12

Прихожая

Для отделки стен в прихожей использовали обои под покраску. Шкаф-купе сохранили, обновив двери и внутреннее наполнение, что позволило сэкономить.

Напротив шкафа, на стене, повесили два зеркала в форме арок. Они отражают свет и делают пространство шире. Справа от двери обустроили удобную зону с декоративными панелями, крючками и пуфиком.

-13

Совмещенный санузел и туалет

Совмещенный санузел и отдельный туалет выполнены в едином стиле с одинаковой базовой бежевой плиткой. Акцентные стены оформлены разными, но сочетающимися плитками. Санузел украшает цветочное панно «Риккарди» от Kerama Marazzi, тумба Itana цвета авокадо, круглое зеркало с подсветкой и подвесной светильник с ракушками. В туалете акцентная стена отделана мелкой изумрудной плиткой.

Лоджия

С лоджии открывается вид на зеленый сквер. Здесь организовали зону отдыха и чтения с мягким креслом и журнальным столом. Панно на стене Ася сделала из оставшегося рулона декоративных обоев, оформив его в тонкую рамку. На пол положили коврик молочного цвета, на окнах — бежевый тюль под лен. Благодаря этим простым приемам балкон получился «теплым» и «живым».

Лоджия ДО и ПОСЛЕ ремонта
Лоджия ДО и ПОСЛЕ ремонта

💥Покупайте в divan.ru со скидкой 50% и на всю сумму применяйте промокод: -5000₽ на заказ от 75 000₽ с DARIM5 | -15 000₽ на заказ от 150 000₽ с DARIM15

-17

============================

Оцените интерьер в комментариях, а если материал понравился — не забудьте поставить лайк👍

🖤divan.ru — не только блог про интерьеры, но и производитель доступной дизайнерской мебели. Ищите новые идеи и переходите на сайт, чтобы воплотить их в жизнь.

*Цены указаны на момент публикации