Найти в Дзене
Формула Ремонта

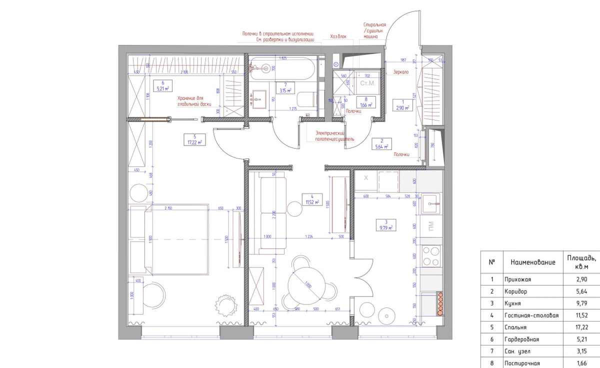
60 м² и ни права на ошибку! Разбор проекта с инженерией и визуализацией

Это проект квартиры 60 м² для девушки в стиле неоклассика. Небольшая площадь изначально задала высокий уровень требований: здесь нельзя закрыть непродуманность метражом. Каждый метр должен быть осмысленным, а каждое решение — работать на комфорт и долговечность. Мы создаем эту квартиру, как функционально насыщенное пространство, где важны не только визуальные приёмы, но и инженерная база. Большая часть реального комфорта в этой квартире заложена не в отделке, а в инженерных решениях. Отдельного внимания заслуживает звукоизоляция. Она заложена по всему периметру квартиры — по стенам, потолку и полу. В итоге пространство будет не просто стильным, но и комфортным — без фонового шума и постоянного ощущения духоты. Основной объём хранения — закрытый. Это позволяет поддерживать порядок без усилий. При этом остаются открытыми ниши и полки для деталей, которые хочется оставить на виду. Орнаментальная плитка на полу задаёт характер с первых шагов, но работает деликатно: она не конфликтует с о
Оглавление

Это проект квартиры 60 м² для девушки в стиле неоклассика. Небольшая площадь изначально задала высокий уровень требований: здесь нельзя закрыть непродуманность метражом.

Каждый метр должен быть осмысленным, а каждое решение — работать на комфорт и долговечность.

Мы создаем эту квартиру, как функционально насыщенное пространство, где важны не только визуальные приёмы, но и инженерная база.

  • Такой подход особенно критичен именно для компактных квартир: чем меньше площадь, тем выше цена каждой ошибки.

Инженерия и акустический комфорт

Большая часть реального комфорта в этой квартире заложена не в отделке, а в инженерных решениях.

  • В проекте предусмотрена приточно-вытяжная система, которая обеспечивает постоянный приток свежего воздуха без необходимости открывать окна и подстраиваться под шум или погоду за ними.

Отдельного внимания заслуживает звукоизоляция. Она заложена по всему периметру квартиры — по стенам, потолку и полу.

В итоге пространство будет не просто стильным, но и комфортным — без фонового шума и постоянного ощущения духоты.

Прихожая

Основной объём хранения — закрытый. Это позволяет поддерживать порядок без усилий.

При этом остаются открытыми ниши и полки для деталей, которые хочется оставить на виду.

Орнаментальная плитка на полу задаёт характер с первых шагов, но работает деликатно: она не конфликтует с остальными помещениями, а лишь намечает общее настроение квартиры.

Проблема стоимости ремонта в 2025-2026 является одной из наиболее популярных в последнее время. Мы долго думали и решили сформировать ПАМЯТКУ, в которой расписали:

  • во сколько обойдется базовый ремонт под сдачу при ограниченном бюджете;
  • сколько сейчас тратят те, кто хочет сделать дизайнерский ремонт;
  • на что обратить внимание, если вам озвучили стоимость работ ниже рыночной.

Чтобы получить ПАМЯТКУ, достаточно перейти в Телеграм и нажать кнопку «НАЧАТЬ». Специально для читателей Дзена мы сделали ответы автоматическими, никакие данные оставлять не нужно.

Кухня-гостиная

Кухня-гостиная объединена в одно пространство, но при этом чётко разделена по функциям. Это важно для повседневной жизни: кухня не должна визуально и акустически вмешиваться в зону отдыха.

Гостиная спокойнее и мягче. Диванная группа, обеденный стол и свет формируют понятные сценарии отдыха и общения.

  • Разделение зон выполнено стеклянной перегородкой с классическими переплётами: она физически отделяет кухню, но сохраняет свет, визуальную связь и целостность пространства.

Кухонная часть собрана в аккуратный, структурный объём. Высокие фасады формируют ровный ритм, а узорная плитка добавляет характер, не перегружая интерьер. Рабочая зона читается ясно, но не доминирует в пространстве.

Спальня

Спальню в этом проекте мы сразу определяем, как самое спокойное и приватное пространство квартиры.

  • Здесь не хочется резких контрастов и заметных приёмов — важнее ощущение тишины и защищённости, когда интерьер не требует внимания и не отвлекает от отдыха.

Кровать здесь становится естественным центром комнаты — не акцентом ради картинки, а точкой, вокруг которой выстраивается вся логика спальни.

Свет, хранение и расстояния между предметами подбираются так, чтобы в комнате было легко дышать, и не возникало ощущения перегруженности.

Мы сознательно убираем всё лишнее: спальня нужна не для того, чтобы её рассматривать, а для того, чтобы в ней отдыхать и восстанавливаться.

Ванная

Ванная комната задумывается как место, где можно спокойно остаться наедине с собой. Здесь нет стремления произвести ВАУ эффект.

Спокойные базовые поверхности дополняются акцентами, которые добавляют характер, но не перегружают пространство и не утомляют со временем.

Цвет и орнамент используются аккуратно, а освещение подбирается так, чтобы пространство оставалось комфортным в любое время суток.

Эта ванная — место, где действительно приятно начинать и заканчивать день.

Гардеробная и прачечная

В этой квартире мы закладываем отдельную гардеробную и полноценную прачечную — для площади около 60 м² это редкое, но очень осмысленное решение.

Хранение и бытовые процессы выносятся за пределы жилых комнат.

Гардеробная позволяет отказаться от шкафов в спальне и гостиной, а прачечная берёт на себя технику и хозяйственные мелочи.

  • В результате, быт не «расползается» по квартире и не вмешивается в жилые зоны.

Этот проект наглядно показывает: дизайн нужен не только для квартир с большой площадью. Напротив, именно в малых пространствах он становится особенно важным.

Когда метраж ограничен, нельзя действовать интуитивно или «на глаз» — каждый сантиметр должен быть продуман.

Ставьте лайк и подписывайтесь на канал!