Добавить в корзинуПозвонить
Найти в Дзене

Кейс: дизайнерский ремонт квартиры-студии — фото до/после

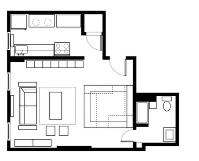
«Хочу, чтобы было все: и спальня, и гостиная, и кабинет, и много света» — с такой задачей к нам обратилась клиентка Анастасия, владелица студии 38 м² в ЖК «Серебряный фонтан». Всего за 3 месяца мы создали пространство, которое визуально кажется больше, функционально насыщеннее и стилистически безупречным. Сегодня показываем и рассказываем, как это было.
Было: вызовы и ограничения
Площадь: 38 м², включая санузел и прихожую
Исходное состояние: новостройка с черновой отделкой, не ровные стены
Задачи от клиентки:
Место для работы из дома (постоянно)
Отдельную спальную зону
Гостиную для приема друзей
Много систем хранения, но без ощущения загромождения
Светлую, воздушную атмосферу Дизайн-концепция: Светлый японский минимализм
Мы выбрали направление, идеально подходящее для малых площадей:
Цветовая палитра: белый, бежевый, натуральное дерево, акценты терракотового
Материалы: матовая краска, микроцемент, шпонированные панели, матовый металл
Освещение: многоуровневое — трековые светильники, с

«Хочу, чтобы было все: и спальня, и гостиная, и кабинет, и много света» — с такой задачей к нам обратилась клиентка Анастасия, владелица студии 38 м² в ЖК «Серебряный фонтан». Всего за 3 месяца мы создали пространство, которое визуально кажется больше, функционально насыщеннее и стилистически безупречным. Сегодня показываем и рассказываем, как это было.

Было: вызовы и ограничения
Площадь: 38 м², включая санузел и прихожую
Исходное состояние: новостройка с черновой отделкой, не ровные стены
Задачи от клиентки:
Место для работы из дома (постоянно)
Отдельную спальную зону
Гостиную для приема друзей
Много систем хранения, но без ощущения загромождения
Светлую, воздушную атмосферу

Дизайн-концепция: Светлый японский минимализм
Мы выбрали направление, идеально подходящее для малых площадей:
Цветовая палитра: белый, бежевый, натуральное дерево, акценты терракотового
Материалы: матовая краска, микроцемент, шпонированные панели, матовый металл
Освещение: многоуровневое — трековые светильники, скрытая подсветка, торшер

-2

Мебель: трансформируемая и модульная
Решения, которые преобразили пространство:
1. Зонирование светом и уровнем
Рабочая зона: выделена подвесным потолком со встроенными светильниками
Спальня: подиум высотой 15 см с подсветкой по периметру
Гостиная: центральная группа трековых светильников
2. Невидимые системы хранения
Встроенные шкафы-купе в нишах
Кровать с выдвижными ящиками
Стол-трансформер с потайными отделениями
Сиденье у окна с откидными крышками
3. Визуальные приемы для расширения пространства
Зеркальная панель во всю стену в прихожей
Панорамные шторы под потолок
Межкомнатная стеклянная перегородка между санузлом и прихожей
Напольное покрытие уложенное единым полотном

-3

Сложности и их преодоление
Проблема: Низкие потолки (2.55 м) и множество технических коробов.
Решение: Мы:
Организовали венткороба в геометрию потолка
Использовали вертикальную подсветку для зрительного увеличения высоты
Покрасили потолок в тон стенам
Проблема: Отсутствие места для гардеробной.

Решение:
Создали гардеробную зону в нише глубиной 60 см
Установили раздвижную систему с зеркальными фасадами

-4

Что получилось в итоге
Функциональные зоны:
Рабочий кабинет: эргономичный стол на 2 монитора, система хранения для документов
Спальня: кровать 160x200 см, скрытое освещение, прикроватные полки
Гостиная: компактный диван на 3 человек, откидной столик, медиазона
Прихожая: полноценная гардеробная система, зеркало во всю стену
Кухня: линейная планировка, встроенная техника, барная стойка на 2 персоны
Бюджет и сроки:
Срок выполнения: 3.5 месяца
Бюджет: 2.8 млн рублей (включая мебель и технику)
Окупаемость: клиентка сдает аналогичную студию в своем доме на 40% дороже соседей

Даже 38 м² могут стать идеальным пространством для жизни, работы и отдыха, если подойти к планированию профессионально. Главное — не бояться сложных задач и доверять экспертам.


Хотите такой же продуманный ремонт? Записывайтесь на консультацию — обсудим ваш проект! Также подписывайтесь на наш
Телеграмм, там еще больше полезной информации.