Найти в Дзене
Inremonte.ru

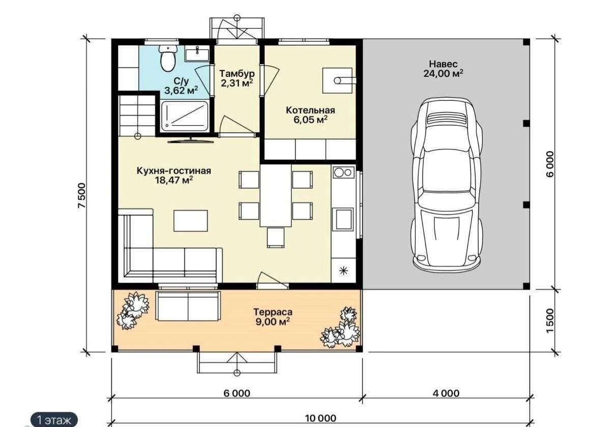
Одноэтажные дома удобнее, но иногда бывают такие участки где не разместить одноэтажный дом

В частных домах делают навес, а не гараж . Навес распологают максимально близко от въезда. Балкон спорное решение особенно в снежных регионах - будет снег лежать. Но бывают что может быть участок с хорошим видом с уровня балкона, тогда его можно оправдать. В реальности никто на балконы не ходит на своем участке.

Одноэтажные дома удобнее, но иногда бывают такие участки где не разместить одноэтажный дом. В частных домах делают навес, а не гараж . Навес распологают максимально близко от въезда. Балкон спорное решение особенно в снежных регионах - будет снег лежать. Но бывают что может быть участок с хорошим видом с уровня балкона, тогда его можно оправдать. В реальности никто на балконы не ходит на своем участке.

-2
-3