Найти в Дзене

Компактный модульный дом с сауной

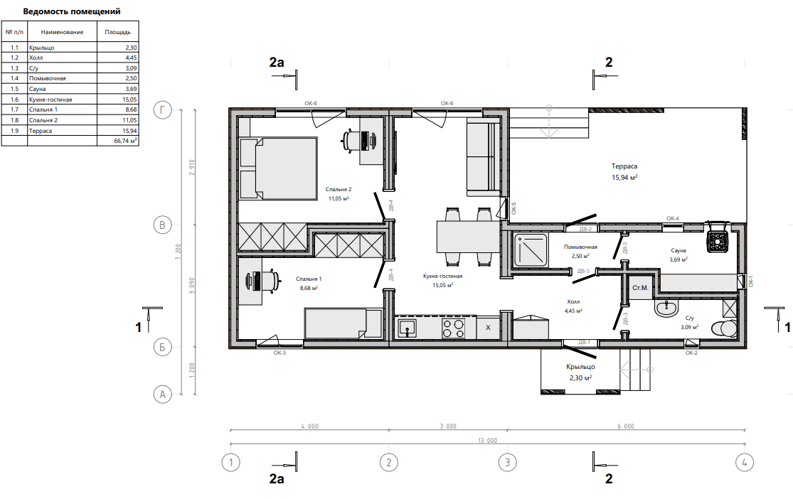
Это готовый проект одноэтажного модульного каркасного дома с интегрированной сауной. Его главная особенность — модульность: весь дом состоит из 6 отдельных модулей-блоков, которые собираются на участке. Это упрощает и ускоряет строительство. Основные параметры: Идеального загородного убежища мы часто мечтаем о двух вещах: о безмятежном единении с природой и о личном пространстве для расслабления, воплощением которого традиционно является баня. Современные архитектурные решения позволяют не выбирать, а гармонично объединить оба желания. Именно таким симбиозом функциональности и комфорта стал проект модульного дома-сауны — не просто строение, а готовая концепция жизни на природе. Концепция: Архитектура, подчиненная ритуалу отдыха Этот проект — больше, чем дом. Это тщательно продуманный сценарий загородной жизни. Его сердце — не гостиная, а приватная сауна, окруженная необходимыми атрибутами: просторной помывочной и санузлом. Такой блок превращает обычный дачный визит в полноценный сп
Оглавление

Это готовый проект одноэтажного модульного каркасного дома с интегрированной сауной. Его главная особенность — модульность: весь дом состоит из 6 отдельных модулей-блоков, которые собираются на участке. Это упрощает и ускоряет строительство.

Основные параметры:

  • Общая площадь застройки: 93.6 м²
  • Жилая площадь: 48.5 м² + терраса (17.46 м²) и крыльцо (2.4 м²)
  • Ключевая функция: В составе есть собственная сауна, помывочная и санузел.
  • Планировка: Включает две спальни (8.68 и 11.05 м²), кухню-гостиную (15.05 м²), холл и сауну с зоной отдыха.
  • Конструктив: Каркасная технология, утепление до 200 мм, фундамент на винтовых сваях.
-2

  1. Эскизный проект (ЭП): Планы, фасады, 3D-виды, разрезы — чтобы представить дом.
  2. Конструктивный раздел (КР): Подробнейшие инструкции по сборке. Это сердце проекта: схемы фундамента, поэтапные чертежи сборки каждого из 6 модулей (стены, перекрытия, крыша), спецификации.
  3. Файл распиловки: Детальный расчет необходимого объема пиломатериалов (14.42 м³ на каркас), что минимизирует отходы.
  4. 3D-модель дома: Файл для программы SketchUp, позволяющий детально изучить конструкцию.

Посмотреть проект на сайте Домокея

-3

В поисках

Идеального загородного убежища мы часто мечтаем о двух вещах: о безмятежном единении с природой и о личном пространстве для расслабления, воплощением которого традиционно является баня. Современные архитектурные решения позволяют не выбирать, а гармонично объединить оба желания. Именно таким симбиозом функциональности и комфорта стал проект модульного дома-сауны — не просто строение, а готовая концепция жизни на природе.

кликайте, чтобы увеличить
кликайте, чтобы увеличить

Концепция: Архитектура, подчиненная ритуалу отдыха

Этот проект — больше, чем дом. Это тщательно продуманный сценарий загородной жизни. Его сердце — не гостиная, а приватная сауна, окруженная необходимыми атрибутами: просторной помывочной и санузлом. Такой блок превращает обычный дачный визит в полноценный спа-ритуал, доступный в любую погоду и в любое время года. После жаркого пара гости естественным образом перемещаются на уютную крытую террасу площадью более 15 м² — идеальное место для неспешных бесед за чаем или созерцания вечернего заката.

-5

Планировка: Практичная геометрия комфорта

При общей площади застройки около 94 м², архитекторам удалось создать лаконичное и предельно рациональное пространство жилой площадью 48,5 м². Планировка следует принципу четкого зонирования:

  • Публичная зона: объединенное пространство кухни-гостиной (15 м²) встречает гостей светом и свободой.
  • Приватная зона: две отдельные спальни (8,7 и 11 м²) обеспечивают комфортное размещение семьи или гостей.
  • Рекреационная зона: сауна, помывочная и санузел сгруппированы в отдельный блок, что упрощает коммуникации и изолирует влажность.
    Маленькое, но важное архитектурное решение — отдельное
    крыльцо при входе — создает необходимый буфер между улицей и домом, сохраняя чистоту и формируя эстетичный первый акцент.
-6

Технология: Искусство современной сборки

Ключевая особенность, определяющая не только скорость строительства, но и чистоту процесса на участке, — модульная каркасная технология. Дом состоит из шести готовых модулей, что превращает его сборку в своеобразный «конструктор» высшего уровня. Эта методология минимизирует «мокрые» процессы и строительный хаос, позволяет вести работы поэтапно и дает редкое для заказчика чувство контроля и предсказуемости. В основе — надежный каркас с усиленным утеплением (до 200 мм в кровле), который обеспечит тепло и уют даже в межсезонье.

-7

Дизайн и атмосфера: Чистые линии и натуральные материалы

Архитектура дома, с его почти плоской кровлей (угол ската всего 0,5°) и четкими линиями, отсылает к современным минималистичным тенденциям. Такой дизайн является идеальным нейтральным фоном для авторского оформления. Он буквально создан для натуральных материалов: обшивка из лиственницы или термодревесины на фасаде, плинтусы из плитняка по периметру, деревянная решетка для затенения террасы. В интерьере сауны царят традиционная вагонка и мягкий приглушенный свет, а в жилых комнатах — светлые стены, контрастирующие с фактурой деревянных балок или ламината под массив дуба.

-8

Для кого этот дом?

Этот проект — блестящее решение для тех, кто ценит:

  1. Готовую концепцию: Не нужно ломать голову, как «вписать» баню в участок. Все уже решено.
  2. Скорость и четкость: Модульный принцип — это быстрый путь от идеи к новоселью.
  3. Эффективный бюджет: Стоимость строительства «под ключ» прогнозируема и начинается ориентировочно от 2 млн рублей, а цена готового проекта составляет всего 11 700 рублей, что является экономически выгодным стартом.
  4. Качество жизни: Это дом, спроектированный не просто для проживания, а для полноценного отдыха и восстановления сил в кругу близких.
-9

В итоге, этот модульный дом-сауна предлагает не квадратные метры, а готовый, стильный и очень личный ритм загородной жизни — где каждая деталь работает на создание атмосферы покоя и неспешного удовольствия от общения с природой и собой.

-10

Реальная стоимость строительства модульного дома-сауны 48.5 м² (2025-2026)

Что учтено в расчете:

  • Только основные материалы из спецификации (пиломатериал, крепеж, сваи, утеплитель, пленки, плиты).
  • Среднерыночные оптовые/розничные цены на конец 2024 - начало 2025 гг.
  • Запас по стоимости в 10% на инфляцию и колебания цен до 2026 года.
  • НЕ учтены: работа, доставка, окна/двери, отделочные материалы (сайдинг, кровля), инженерка (электрика, сантехника), внутренняя отделка, мебель, сауна (печь, полоки).
-11

Что нужно докупить ОБЯЗАТЕЛЬНО (базовая комплектация)

Без этого списка дом не будет защищен и не станет "домом".

-12

Итоговая вилка стоимости

Сводный расчет "коробки" с материалами:

  • Базовый комплект материалов (п.1): ~ 803 000 руб.
  • Обшивка и кровля (п.2): ~ 218 000 руб.
  • = Предварительная стоимость материалов: ~ 1 021 000 руб.

Важно! Это НЕ окончательная цена. Нужно добавить:

  1. Работа (50-80% от стоимости материалов). Если делать не самому, прибавьте еще ~500 000 – 800 000 руб. за работу бригады на все, от свай до кровли.
  2. Инженерные системы. Электрика, сантехника, вентиляция — это еще ~200 000 – 400 000 руб. с материалами и работой.
  3. Внутренняя отделка. Гипсокартон, штукатурка, покраска, полы — сильно зависит от выбора, но минимум ~300 000 руб.
  4. Печь для сауны и полоки. Хорошая каменка + отделка вагонкой — от 150 000 руб.

Реальный прогноз на 2025-2026 год:

  • Минимум (работа своими руками): ~ 1.7 – 2.0 млн руб. (материалы + инженерка + отделка + сауна).

примерно от 40 000 руб за м2

  • Средний вариант (часть работ бригадой): ~ 2.5 – 3.0 млн руб.

примерно от 55 000 руб за м2

  • Под ключ (силами подрядчика): ~ 3.5 – 4.0 млн руб. и выше.

примерно от 80 000 руб за м2

-13

Проект уже готов и можно купить на сайте Домокея: https://domokea.ru/product/proekt-odnoetazhnogo-modulnogo-doma-sauny-6-modulej-7-2-h-13-s-kryltsom-terrasoj-i-zhiloj-ploshhadyu-48-5-m2/

Заказать индивидуальный: https://t.me/viktor_melnik

Стройка-чат: https://t.me/domokea_chat