Найти в Дзене

3д обзор вариантов планировки квартиры 66.4 кв

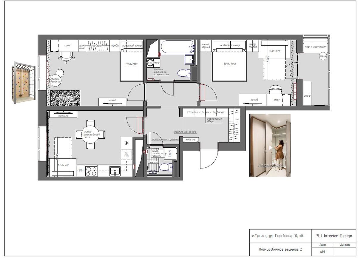
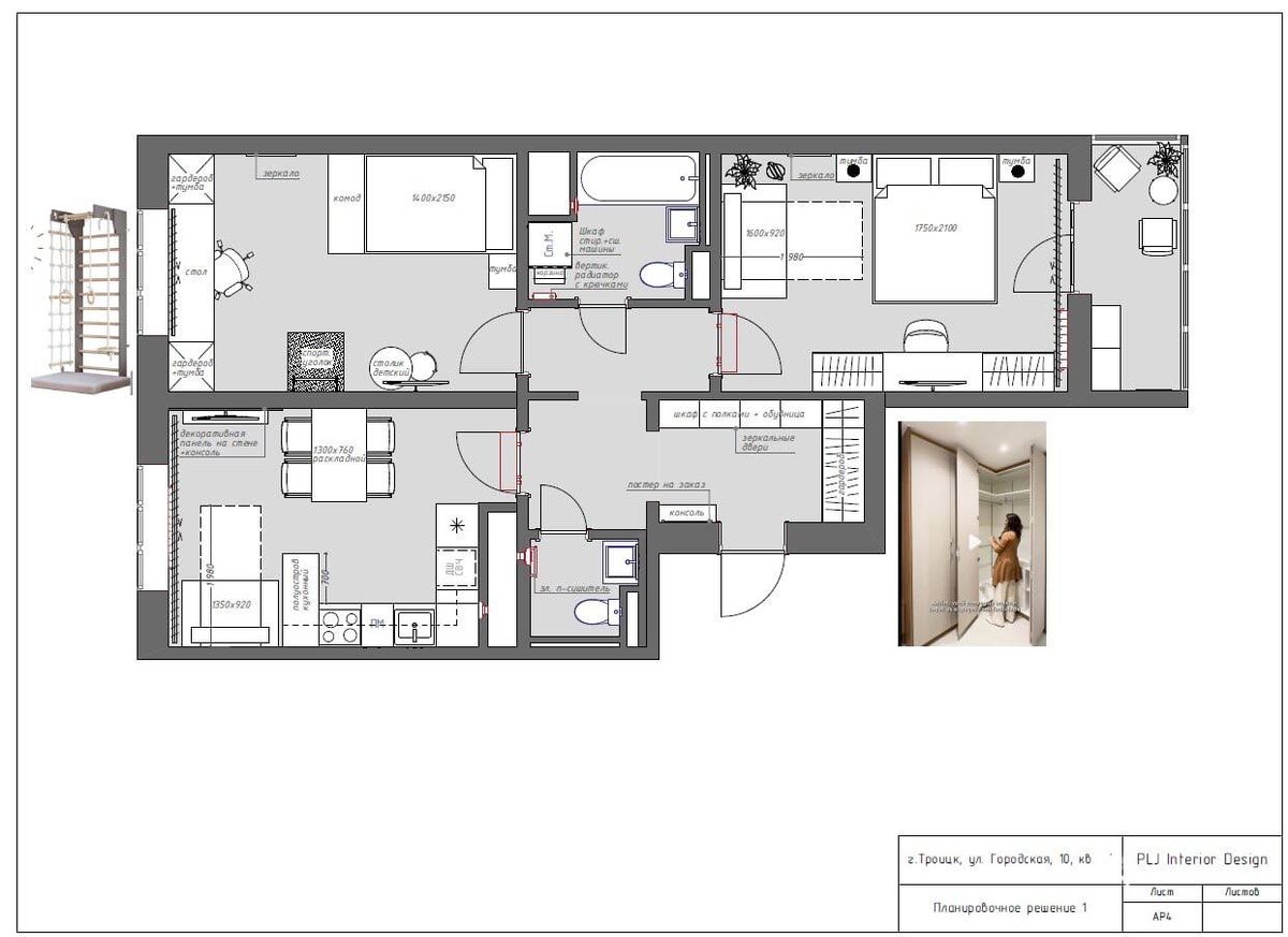
м. Поскольку большинство проголосовало «за», делюсь🤗 Что требовалось: ✅ Много места хранения в прихожей ✅ Обязательно спальное место в кухне (на случай гостей) ✅ Спортивный уголок в детской ✅ В спальне на 16 кв.м. разместить: двуспальную кровать, хранение, рабочее место, диван (на случай гостей) ✅ Хозяйственный шкаф и зона постирочной с стиральной и сушильной машиной, доп. место для сушки вещей Что получилось? Смотрите на планах или в видеообзоре в 3д 😌 Какой вариант понравился больше? Вариант 1 - ❤️ Вариант 2 - 👍🏼 Вариант 3 - 🔥 Мой фаворит - вариант 1 ☺️

3д обзор вариантов планировки квартиры 66.4 кв.м.

Поскольку большинство проголосовало «за», делюсь🤗

Что требовалось:

✅ Много места хранения в прихожей

✅ Обязательно спальное место в кухне (на случай гостей)

✅ Спортивный уголок в детской

✅ В спальне на 16 кв.м. разместить: двуспальную кровать, хранение, рабочее место, диван (на случай гостей)

✅ Хозяйственный шкаф и зона постирочной с стиральной и сушильной машиной, доп. место для сушки вещей

Что получилось? Смотрите на планах или в видеообзоре в 3д 😌

Какой вариант понравился больше?

Вариант 1 - ❤️

Вариант 2 - 👍🏼

Вариант 3 - 🔥

Мой фаворит - вариант 1 ☺️

-2
-3