Добавить в корзинуПозвонить
Найти в Дзене

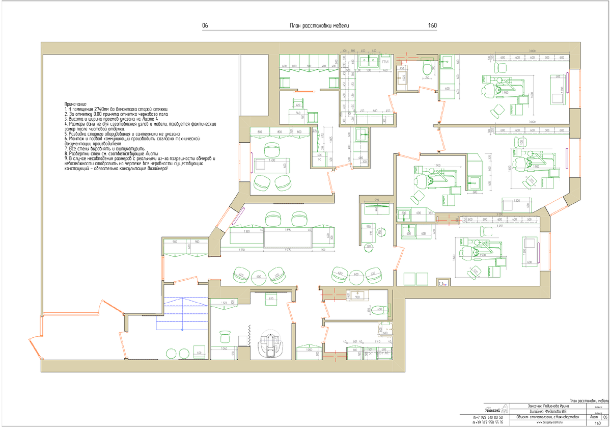
«Культура улыбки»: Кабинет терапевта

Когда мы проектировали стоматологию «Культура улыбки», у каждого кабинета была своя история. Например, Кабинет №1 — терапевтический. Изначально мы решили разделить его на две части: в основной зоне должен был работать врач-терапевт, а в закутке — разместиться кабинетик для гигиениста. На чертежах всё выглядело аккуратно: компактно, рационально, функционально. Но на практике оказалось, что такое решение слишком тесное. Пространство, которое задумывалось для гигиениста, оказалось неудобным и с точки зрения эргономики, и по ощущениям. В стоматологии важен каждый метр — он должен давать чувство воздуха, а не замкнутости. Поэтому мы пересмотрели концепцию. Сегодня этот кабинет работает как полноценный терапевтический, а небольшая зона, которую планировали отдать под гигиениста, используется иначе: здесь пациент может спокойно побыть до или после процедуры, отдохнуть, подождать пока пройдёт действие анестезии. Это оказалось куда полезнее для клиники и пациентов, чем изначальная идея. Визуаль

Когда мы проектировали стоматологию «Культура улыбки», у каждого кабинета была своя история. Например, Кабинет №1 — терапевтический.

Изначально мы решили разделить его на две части: в основной зоне должен был работать врач-терапевт, а в закутке — разместиться кабинетик для гигиениста. На чертежах всё выглядело аккуратно: компактно, рационально, функционально.

-3

Но на практике оказалось, что такое решение слишком тесное. Пространство, которое задумывалось для гигиениста, оказалось неудобным и с точки зрения эргономики, и по ощущениям. В стоматологии важен каждый метр — он должен давать чувство воздуха, а не замкнутости.

-4

Поэтому мы пересмотрели концепцию. Сегодня этот кабинет работает как полноценный терапевтический, а небольшая зона, которую планировали отдать под гигиениста, используется иначе: здесь пациент может спокойно побыть до или после процедуры, отдохнуть, подождать пока пройдёт действие анестезии. Это оказалось куда полезнее для клиники и пациентов, чем изначальная идея.

-5

Визуально кабинет сохранил общий стиль «Культуры улыбки»: много белого, акцентные глубокие синие кресла, тёплые деревянные вставки. Чтобы пространство не было «стерильно-холодным», добавлены детали, которые создают ощущение жизни: часы необычной формы, графичное панно с улыбающимися лицами на стене. Такие штрихи работают на психологию — помогают пациенту расслабиться и почувствовать доверие.

✨ Итог: Кабинет терапевта показывает, как важно быть гибким. Дизайн не существует сам по себе, он подстраивается под реальную работу клиники. И иногда лучше отказаться от «идеального» планировочного решения ради того, чтобы пространство жило и помогало людям.

📌 Напомню: УЖЕ СЕГОДНЯ я проведу бесплатный вебинар для практикующих дизайнеров — «Дизайн коммерческих помещений». Там я как раз разберу подобные примеры: когда проект трансформируется вместе с бизнесом и почему умение пересмотреть решение — это навык профессионала.

🚀 На вебинаре также состоится презентация моего нового курса HORECA (рестораны, отели, SPA, клиники). Первый поток стартует 1 февраля, вести группу буду лично. Уже можно встать в лист ожидания.

👉 Регистрируйтесь по ссылке и до встречи!