Найти в Дзене
Войти
Александр Графов. Дизайнер среды. Архитектурное проектирование.
24 подписчика
Подписаться
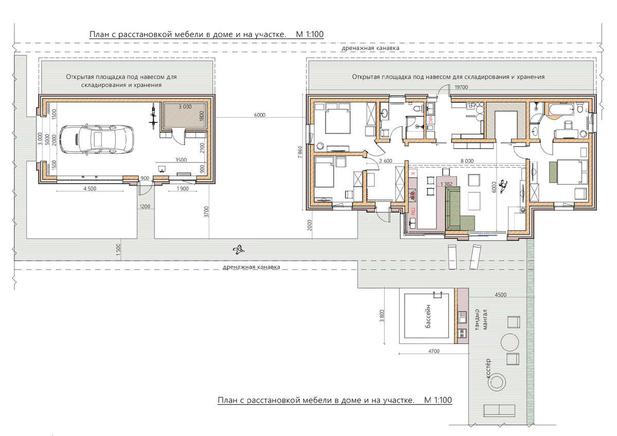
Из чего состоит проект.
23 декабря 2025
23 дек 2025
3
~1 мин
На примере проекта "Домик в Коломне" Ценообразование
На примере проекта "Домик в Коломне" Ценообразование
...
Читать далее
Оглавление
1. Архитектурные решения (А.Р.)
2. Конструктивные решения (К.Р.)
3. Интерьерные решения.
На примере проекта "Домик в Коломне"
Ценообразование
1. Архитектурные решения (А.Р.)
2. Конструктивные решения (К.Р.)
3. Интерьерные решения.
1