Найти в Дзене

Строй отчёт: модульный дом Ковчег своими руками за 8 дней

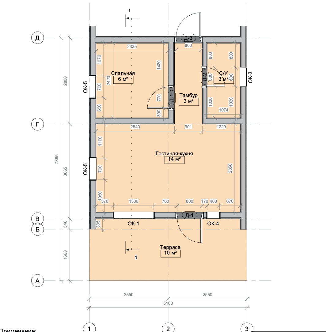
5,9х5,1=26м2+терраса 10м2 Дом подходит для постоянного проживания. Высота передней стенки 3,4м, высота задней стенки 2,6м.
Проект с сайта Домокея
Стройка-чат в телеграм для бесплатных (и платных) консультаций и общения Сегодня доделали обвязку фундамента. Обработали ее антисептиком. Сделали обрешетку, постелили сетку от мышей и мембрану. Собрали перекрытие со всеми лагами и бриджингами. Поставили первую стену. Сегодня за день собрали все стены и перегородки. Все укосины врезаны. По каркасу осталась только стропильная система. Большой оконный проем без хедера. Там хитрая система кровли. Будет по другому нагрузка распределяться. Сегодня выставили в уровень весь каркас и зафиксировали укосины. Скрепили каркас второй верхней обвязкой. Поставили 3 подстропильные стены с ригелями. Смонтировали все стропила с бриджингами. Почти все работы по каркасу сделаны, осталось немного мелочей. Доделали разные мелочи по каркасу. Напилили обрешетки на фасад, кровлю и внутрь дома. Из остатков 50 доски н
Оглавление

5,9х5,1=26м2+терраса 10м2 Дом подходит для постоянного проживания. Высота передней стенки 3,4м, высота задней стенки 2,6м.
Проект с сайта Домокея
Стройка-чат в телеграм для бесплатных (и платных) консультаций и общения

-2
-3

День 1.

Сегодня доделали обвязку фундамента. Обработали ее антисептиком. Сделали обрешетку, постелили сетку от мышей и мембрану. Собрали перекрытие со всеми лагами и бриджингами. Поставили первую стену.

-4
-5
-6

День 2.

Сегодня за день собрали все стены и перегородки. Все укосины врезаны. По каркасу осталась только стропильная система.

-7
-8
-9
-10

Большой оконный проем без хедера. Там хитрая система кровли. Будет по другому нагрузка распределяться.

День 3.

Сегодня выставили в уровень весь каркас и зафиксировали укосины. Скрепили каркас второй верхней обвязкой. Поставили 3 подстропильные стены с ригелями. Смонтировали все стропила с бриджингами. Почти все работы по каркасу сделаны, осталось немного мелочей.

-11
-12
-13
-14
-15

День 4.

Доделали разные мелочи по каркасу. Напилили обрешетки на фасад, кровлю и внутрь дома. Из остатков 50 доски напилили брусков для вентзазора. Сегодня привезли утеплитель, пленки и металл. На бруски смонтировали мягкую ленту. Утеплили кровлю и сделали обрешетку. Успели до дождя все закрыть и проклеить.

-16
-17
-18
-19
-20

Проект модульный. Но ребята профи: Там внизу два модуля и сверху две части крыши перевозные. Мы его перекроили во многих местах под стационарную сборку.

Поэтому собирают медленно. думать приходится.

День 5.

кровля на месте, цвет матовый Муар

-21
-22

День 6.

Сегодня ещё завернули каркас в мембрану. На передний фасад набили ОСБ 12 мм для жёсткости, т.к. там корректно укосины не врезать.

-23

День 7.

Сегодня привезли утеплитель и Квик дек. Утеплили пол, закрыли его пароизоляцией с проклейкой швов, сделали обрешетку и прикрутили плиты.

-24

и потом будет линолеум сверху

День 8.

Дом внутри утеплили и закрыли пароизоляцией с проклейкой скотчем. Тепловой контур завершён, пока небольшой перерыв будет перед отделкой.

-25
-26

Отделка в следующей статье. Подписывайтесь

Проект с сайта Домокея
Стройка-чат в телеграм